+7
zdjęć
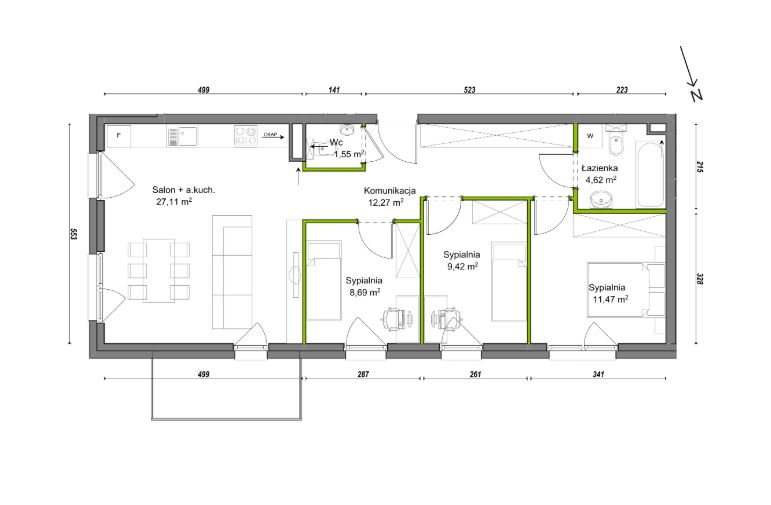
Nowe mieszkanie 4-pokojowe o powierzchni 75,13 m² w inwestycji Orawska Vita dewelopera DEVELIA, na 2 piętrze w budynku 73 pod adresem ul. Orawska 73, Wrocław Ołtaszyn. Planowany termin oddania to IV kwartał 2026 roku.
Oferta
Z myślą o komforcie mieszkańców dla każdego lokalu została przewidziana dodatkowa, otwarta przestrzeń w postaci balkonu, loggii lub obszernego ogródka. W części z nich powstaną także ogrody zimowe. W kameralnych budynkach nie zabraknie podziemnej hali garażowej. Znajdzie się w niej 213 szerokich miejsc postojowych, w tym boksy zamykane dodatkową bramą, 156 komórek lokatorskich i 24 sekcji rowerowych.
Goście mieszkańców będą mogli zaparkować przy ul. Orawskiej na miejscach postojow... więcej >
Oferta
Z myślą o komforcie mieszkańców dla każdego lokalu została przewidziana dodatkowa, otwarta przestrzeń w postaci balkonu, loggii lub obszernego ogródka. W części z nich powstaną także ogrody zimowe. W kameralnych budynkach nie zabraknie podziemnej hali garażowej. Znajdzie się w niej 213 szerokich miejsc postojowych, w tym boksy zamykane dodatkową bramą, 156 komórek lokatorskich i 24 sekcji rowerowych.
Goście mieszkańców będą mogli zaparkować przy ul. Orawskiej na miejscach postojowych ogólnodostępnych. Cała inwestycja dostosowana będzie do potrzeb osób z niepełnosprawnościami. W budynkach zostaną zainstalowane cichobieżne windy. Dzięki zamontowanym na dachu panelom fotowoltaicznym nabywcy będą płacić niższe rachunki za eksploatację części wspólnych. Pakiet udogodnień uzupełni również skrytkomat, w którym kurier będzie mógł pozostawić paczkę pod nieobecność mieszkańców.
Lokalizacja
Ołtaszyn to dzielnica uznawana za idealne miejsce do życia, pracy i rekreacji. Inwestycja Orawska Vita zlokalizowana jest w sąsiedztwie domów jednorodzinnych, w niedalekiej odległości od Parku Skowroniego (1 km) oraz Parku Południowego (1,7 km).
Bogata infrastruktura lokalna Ołtaszyna zapewnia wszystko, co jest potrzebne do wygodnego życia każdego dnia. Działają tu liczne przedszkola i szkoły publiczne. Około 5 km od inwestycji znajduje się jedno z największych w Europie centrum handlowych – Aleja Bielany. W sąsiedztwie można znaleźć sklepy sieci Lidl (700 m) oraz Biedronka (800 m). W okolicy znajduje się również ul. Zwycięska, przy której nie brakuje cenionych restauracji, salonów spa, lokali usługowych i sklepików z regionalną żywnością. Dużą zaletą jest także bliskość znanego na całą Polskę Toru Wyścigów Konnych – Partynice, z którego atrakcji będzie można korzystać w ciągu 25-minutowego spaceru.
Atuty:
- Kameralna, dwupiętrowa zabudowa
- Strefa rekreacyjna oraz dwa place zabaw
- Mieszkania z ogrodami zimowymi
- Atrakcyjna lokalizacja w prestiżowej części miasta
- Rozbudowana infrastruktura lokalna
- Wysokie mieszkania z dużymi oknami
- Duże ogródki
- Rolety w mieszkaniach na parterze
- Cichobieżne windy
- Mała liczba mieszkań na piętrze
Niniejszy materiał nie stanowi oferty w rozumieniu Kodeksu cywilnego i ma charakter wyłącznie informacyjny.
Szczegóły inwestycji dostępne są na stronie internetowej develia.pl
Podobne mieszkania w inwestycji Orawska Vita:
4 pok.
68.07 m²
parter
zapytaj
4 pok.
68.34 m²
1 piętro
zapytaj
4 pok.
68.33 m²
2 piętro
zapytaj
4 pok.
68.09 m²
parter
zapytaj
4 pok.
68.35 m²
2 piętro
zapytaj
4 pok.
68.35 m²
1 piętro
zapytaj
4 pok.
68.07 m²
parter
zapytaj
4 pok.
68.33 m²
1 piętro
zapytaj
4 pok.
74.69 m²
1 piętro
zapytaj
4 pok.
75.63 m²
2 piętro
zapytaj
4 pok.
73.09 m²
parter
zapytaj
4 pok.
68.09 m²
parter
zapytaj
4 pok.
68.35 m²
1 piętro
zapytaj
4 pok.
68.35 m²
2 piętro
zapytaj
4 pok.
68.07 m²
parter
zapytaj
4 pok.
68.33 m²
1 piętro
zapytaj
4 pok.
68.33 m²
2 piętro
zapytaj
4 pok.
85.45 m²
parter
zapytaj
4 pok.
85.20 m²
1 piętro
zapytaj
4 pok.
85.28 m²
2 piętro
zapytaj
4 pok.
68.07 m²
parter
zapytaj
4 pok.
68.34 m²
1 piętro
zapytaj
4 pok.
68.33 m²
2 piętro
zapytaj
4 pok.
68.09 m²
parter
zapytaj
4 pok.
73.08 m²
parter
zapytaj
4 pok.
68.35 m²
1 piętro
zapytaj
4 pok.
68.35 m²
2 piętro
zapytaj
4 pok.
71.35 m²
parter
zapytaj
4 pok.
68.09 m²
parter
zapytaj
4 pok.
68.35 m²
1 piętro
zapytaj
4 pok.
66.35 m²
parter
zapytaj
4 pok.
68.33 m²
1 piętro
zapytaj
4 pok.
66.78 m²
1 piętro
zapytaj
4 pok.
68.33 m²
2 piętro
zapytaj
4 pok.
75.31 m²
parter
zapytaj
4 pok.
77.25 m²
1 piętro
zapytaj
4 pok.
85.25 m²
1 piętro
zapytaj
4 pok.
85.30 m²
2 piętro
zapytaj
4 pok.
74.69 m²
1 piętro
zapytaj
4 pok.
74.70 m²
2 piętro
zapytaj
4 pok.
75.63 m²
2 piętro
zapytaj
4 pok.
73.09 m²
parter
zapytaj
4 pok.
71.34 m²
parter
zapytaj
4 pok.
68.09 m²
parter
zapytaj
4 pok.
68.35 m²
1 piętro
zapytaj
4 pok.
68.35 m²
2 piętro
zapytaj
4 pok.
68.07 m²
parter
zapytaj
4 pok.
68.33 m²
1 piętro
zapytaj
4 pok.
75.13 m²
1 piętro
zapytaj
4 pok.
68.33 m²
2 piętro
zapytaj
4 pok.
85.14 m²
parter
zapytaj
Pozostałe nieruchomości tego dewelopera:
Mieszkania DEVELIA Wrocław
Mieszkania DEVELIA Orawska Vita Wrocław
Mieszkania 4-pokojowe DEVELIA Orawska Vita Wrocław