+4
zdjęć
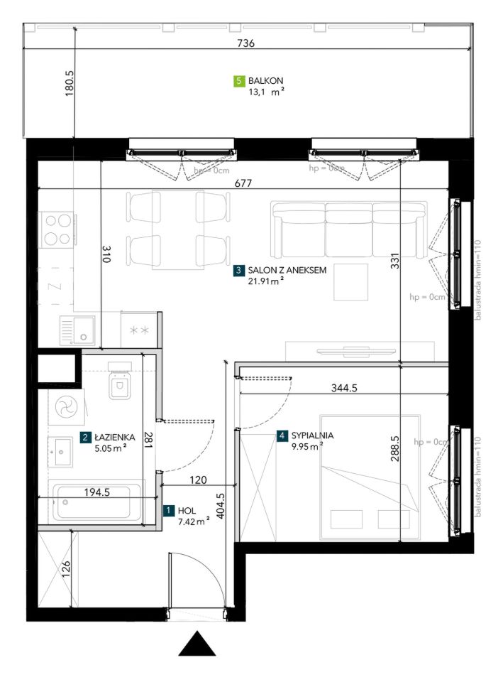
Nowe mieszkanie 2-pokojowe o powierzchni 44,33 m² w inwestycji Vivre dewelopera DEVELIA, na 1 piętrze w budynku 75A pod adresem ul. Świeradowska 75A, Wrocław Krzyki. Planowany termin oddania to I kwartał 2027 roku.
Opis inwestycji
Vivre to wyjątkowa inwestycja mieszkaniowa zlokalizowana w jednej z najbardziej cenionych dzielnic Wrocławia – Krzykach, tuż przy malowniczym Wzgórzu Gajowym. Projekt cechuje się elegancką, nowoczesną architekturą oraz starannie zaprojektowanymi częściami wspólnymi w stonowanej kolorystyce brązów i przełamanej bieli z subtelnymi złotymi akcentami.
W ramach inwestycji powstanie pięciokondygnacyjny budynek oferujący 52
komfortowe mieszkania o zróżnicowanych układach – od ... więcej >
Opis inwestycji
Vivre to wyjątkowa inwestycja mieszkaniowa zlokalizowana w jednej z najbardziej cenionych dzielnic Wrocławia – Krzykach, tuż przy malowniczym Wzgórzu Gajowym. Projekt cechuje się elegancką, nowoczesną architekturą oraz starannie zaprojektowanymi częściami wspólnymi w stonowanej kolorystyce brązów i przełamanej bieli z subtelnymi złotymi akcentami.
W ramach inwestycji powstanie pięciokondygnacyjny budynek oferujący 52
komfortowe mieszkania o zróżnicowanych układach – od 1- do 4-pokojowych, o powierzchni od 30 do 94 m². Każde z mieszkań posiada balkon, taras lub
przydomowy ogródek, co zwiększa komfort codziennego życia. Na parterze
przewidziano również lokale usługowe, które ułatwią mieszkańcom codzienne
funkcjonowanie.
Dla wygody przyszłych mieszkańców zaplanowano podziemną halę garażową oraz udogodnienia dla miłośników jednośladów – stojaki na rowery oraz stanowisko do ich mycia i naprawy. Cała inwestycja będzie objęta monitoringiem.
Wszystkie mieszkania zostaną wyposażone w nowoczesny system smart home j Appartme. Umożliwia on m.in. zdalne sterowanie temperaturą, automatyczne wyłączanie oświetlenia po opuszczeniu mieszkania oraz odcięcie dopływu wody i prądu, co znacząco podnosi poziom bezpieczeństwa.
Lokalizacja
Inwestycja Vivre powstaje przy ul. Wandy Rutkiewicz, na wrocławskich Krzykach – w bezpośrednim sąsiedztwie Wzgórza Gajowego i otaczających je terenów zielonych. To idealne miejsce dla osób ceniących sobie połączenie bliskości natury z dostępem do miejskiej infrastruktury.
Dzielnica Krzyki to jeden z najbardziej pożądanych rejonów Wrocławia – zarówno przez rodziny z dziećmi, jak i osoby aktywne zawodowo. W okolicy znajdują się liczne sklepy, szkoły, przedszkola, restauracje, a także placówki medyczne. Rozbudowana sieć komunikacyjna umożliwia szybki dojazd do centrum miasta oraz innych dzielnic Wrocławia – zarówno samochodem, jak i komunikacją miejską.
Atuty
• Prestiżowa lokalizacja – Krzyki, tuż przy Wzgórzu Gajowym
• Blisko natury i szybki dojazd do centrum
• Tylko 52 mieszkania – kameralny budynek
• Każde mieszkanie z balkonem, tarasem lub ogródkiem
• Metraże od 30 do 94 m² – od kawalerek po 4 pokoje
• System smart home Appartme w standardzie
• Monitoring całej inwestycji
• Podziemny garaż + stacja naprawy i mycia rowerów
• Lokale usługowe na parterze – wygoda na co dzień
• Nowoczesna architektura i eleganckie wnętrza
Niniejszy materiał nie stanowi oferty w rozumieniu Kodeksu cywilnego i ma charakter wyłącznie informacyjny.
Szczegóły inwestycji dostępne są na stronie internetowej develia.pl
Podobne mieszkania w inwestycji Vivre:
2 pok.
33.84 m²
1 piętro
zapytaj
2 pok.
33.89 m²
2 piętro
zapytaj
2 pok.
42.22 m²
1 piętro
zapytaj
2 pok.
42.22 m²
1 piętro
zapytaj
2 pok.
42.25 m²
2 piętro
zapytaj
2 pok.
42.49 m²
1 piętro
zapytaj
2 pok.
42.53 m²
2 piętro
zapytaj
2 pok.
44.52 m²
1 piętro
zapytaj
2 pok.
44.52 m²
2 piętro
zapytaj
2 pok.
44.92 m²
1 piętro
zapytaj
2 pok.
44.98 m²
2 piętro
zapytaj
2 pok.
45.26 m²
parter
zapytaj
2 pok.
45.26 m²
1 piętro
zapytaj
2 pok.
45.26 m²
3 piętro
zapytaj
2 pok.
45.29 m²
2 piętro
zapytaj
2 pok.
45.48 m²
parter
zapytaj
2 pok.
45.56 m²
1 piętro
zapytaj
2 pok.
45.57 m²
2 piętro
zapytaj
2 pok.
45.58 m²
3 piętro
zapytaj
Pozostałe nieruchomości tego dewelopera:
Mieszkania DEVELIA Wrocław
Mieszkania DEVELIA Vivre Wrocław
Mieszkania 2-pokojowe DEVELIA Vivre Wrocław