Mieszkanie na sprzedaż bez pośredników
ul. Władysława Broniewskiego Warszawa Żoliborz

Mieszkanie 3-pokojowe Warszawa Żoliborz, ul. Władysława Broniewskiego. Zdjęcie 1

Mieszkanie na sprzedaż bez pośredników Warszawa Żoliborz ul. Władysława Broniewskiego · parter

849 000
15 027 zł/m²
56
3 pok.
Warszawa Żoliborz, Władysława Broniewskiego - lokalizacja przybliżona
Bezpośrednio od właściciela

Jeśli nie potrzebujesz pośrednika, zaoszczędzisz około 25 500 zł. Potrzebujesz wsparcia? Skorzystaj z pomocy agenta.

BEZPOŚREDNIO

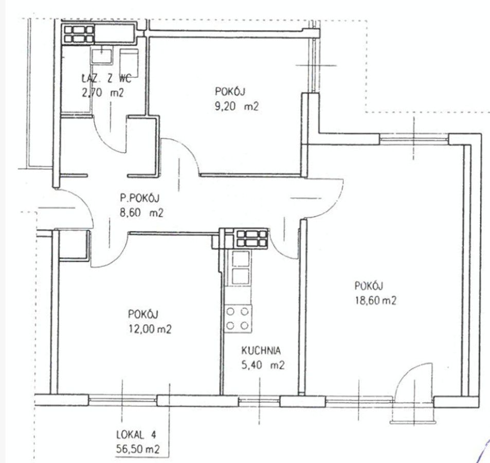
Metraż: 56,5 m2
Liczba pokoi: 3
Piętro: wysoki parter
Budynek: 4-piętrowy bez windy
Forma własności: spółdzielcze własnościowe
Rok budowy: 1967
Dodatkowo: komórka lokatorska (3,9m2)
Czynsz ok. 920 zł.

Na sprzedaż funkcjonalne mieszkanie z dużym potencjałem aranżacyjnym, położone na wysokim parterze w niskim, czteropiętrowym budynku.
Lokal składa się z:
- jasnego salonu z wyjściem na balkonik
- 2 pokoi (sypialni/gabinetu)
- oddzielnej kuchni
- łazienki
- przedpokoju

Do mieszkania przynależy komórka lokatorska o powierzchni 3,9m2.

Mieszkanie jest dwustronne, dobrze doświetlone. Nowo wymienione wszystkie okna.
Z okien rozpościera się widok na zieleń, drzewa i roślinność, co zapewnia prywatność i spokój. Bezpośrednio przed budynkiem znajduje się plac z piaskownicą.

Stan: do remontu - idealne dla osób, które chcą urządzić wnętrze według własnego gustu lub pod inwestycję. W załączniku wizualizacja pomieszczeń.

Odległości i komunikacja (pieszo / komunikacją):
- Sady Żoliborskie - ok. 8 minut pieszo
- Szkoła podstawowa - ok. 5-7 minut pieszo
- Przedszkole - ok. 5 minut pieszo
- Sklepy spożywcze (Auchan, Żabka, Biedronka, lokalne sklepy) - ok. 3-5 minut pieszo
- Park Olszyna - ok. 10 minut pieszo
- Przystanek tramwajowy / autobusowy (ul. Broniewskiego) - ok. 2-3 minuty pieszo
- Centrum Warszawy (Śródmieście) - ok. 15-20 minut komunikacją miejską

Linie tramwajowe - W bezpośredniej okolicy kursują m.in. tramwaje: 1, 1.7, 2.2, 2.7, 2.8, 3.3.
Zapewniają szybkie połączenia m.in. z:
- Centrum
- Żoliborzem
- Wolą
- Bielanami
- Bemowem

  • Na sprzedaż mieszkanie 3-pokojowe o powierzchni 56,50 m² balkon, piwnica, osobna kuchnia
  • Parter w 4-piętrowym bloku z płyty bez windy, rok budowy 1967
  • Warszawa, Żoliborz ul. Władysława Broniewskiego
  • Mieszkanie w stanie do remontu  
  • Spółdzielcze własnościowe  
  • Oferta bezpośrednio od właściciela dodana ponad miesiąc temu
Ta nieruchomość może być Twoja od.. sprawdź
170000 zł (20%) Okres spłaty: 30 lat

Podobne mieszkania na sprzedaż

12
Mieszkanie 3-pokojowe Warszawa Żoliborz, ul. Władysława Broniewskiego

839 000

47

3 pok.

Wyjątkowe, jasne i ustawne mieszkanie na Żoliborzu Rozkład: -2 sypialnie + salon z aneksem kuchennym -łazienka z wanną -balkon z widokiem na zieleń -piwnica -dwustronne, bardzo jasne umeblowane (możliwość demontażu) wszystkie ściany działowe - pełna swoboda aranżacji Budynek: Kameralny, z wyjątkow...

Zobacz ogłoszenie
8
Mieszkanie 3-pokojowe Warszawa Żoliborz, ul. Włościańska

850 000

59

3 pok.

Sprzedam bezpośrednio 3 pokojowe mieszkanie przy metrze (agencjom dziękuję). Stan prawny: Uregulowane grunty, założona księga wieczysta, hipoteka czysta. Spółdzielczo własnościowe prawo do lokalu, bez problemu można przekształcić w pełną własność (złożone dokumenty). Lokalizacja Budynek zlokalizowan...

Zobacz ogłoszenie
13
Mieszkanie 3-pokojowe Warszawa Żoliborz, ul. Słodowiec

790 000

48

3 pok.

OGŁOSZENIE BEZPOŚREDNIE - BEZ PROWIZJI Mieszkanie w dobrej lokalizacji idealnie dla dzieci i do pracy

Zobacz ogłoszenie
20
Mieszkanie 2-pokojowe Warszawa Żoliborz, ul. Włościańska

879 999

37

2 pok.

Na sprzedaż 2-pokojowe mieszkanie 37 m² na Żoliborzu, ul. Włościańska. Pełna własność, księga wieczysta. Lokalizacja: Metro ok. 8 min, tramwaje i autobusy 3-4 min. Blisko wjazdu na S8 - trasa niesłyszalna, mieszkanie świetnie wyciszone. Doskonale skomunikowane. Park bezpośrednio pod blokiem, w pobl...

Zobacz ogłoszenie
15
Mieszkanie 2-pokojowe Warszawa Żoliborz, ul. Adama Mickiewicza

888 000

37

2 pok.

Mieszkanie w przedwojennej kamienicy między Placem Inwalidów a Placem Wilsona na Starym Żoliborzu. Przedstawiam Państwu propozycję mieszkania do kupienia o powierzchni 37 m2. Lokal znajduje się w idealnej lokalizacji na Starym Żoliborzu, niemal na przeciwko Parku Żeromskiego (widok na park) i w odl...

Zobacz ogłoszenie
9
Mieszkanie 3-pokojowe Warszawa Żoliborz, ul. Władysława Broniewskiego

860 000

57

3 pok.

Na sprzedaż 3-pokojowe mieszkanie – Żoliborz, ul. Broniewskiego Jasne mieszkanie o powierzchni 57 m², położone na 3. piętrze w bloku z windą. W mieszkaniu wymienione panele, odmalowane ściany. Stan do lekkiego odświeżenia. Nieumeblowane. Kuchnia na wymiar z wyposażeniem. Układ: 2 sypialnie + sal...

Zobacz ogłoszenie