Ogłoszenie usunięte

Mieszkanie na sprzedaż bez pośredników
ul. płk. Witolda Łokuciewskiego Warszawa Bemowo

Mieszkanie 3-pokojowe Warszawa Bemowo, ul. płk. Witolda Łokuciewskiego. Zdjęcie 1

Mieszkanie na sprzedaż bez pośredników Warszawa Bemowo ul. płk. Witolda Łokuciewskiego · parter

-
-
61
3 pok.
Bezpośrednio od właściciela

Jeśli nie potrzebujesz pośrednika, zaoszczędzisz prowizję. Potrzebujesz wsparcia? Skorzystaj z pomocy agenta.

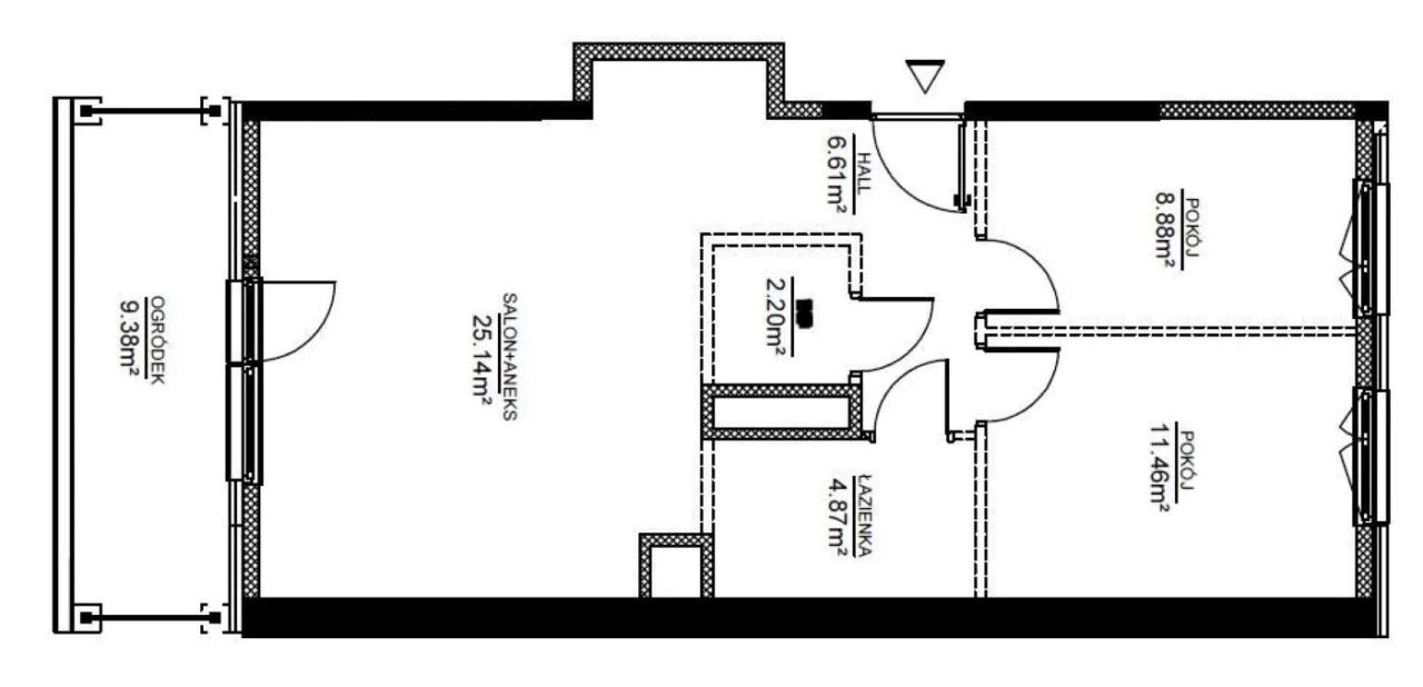
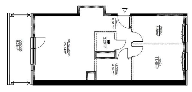
Sprzedam bezpośrednio przestronne mieszkanie 61,5 m² przy ul. Łokuciewskiego 4a, zlokalizowane w zielonej okolicy Bemowa. Mieszkanie jest dwustronne, z oknami na wschód i zachód, co zapewnia dobry dostęp do naturalnego światła przez cały dzień.
Szczegóły mieszkania:
• Powierzchnia: 61,5 m²
• Układ pomieszczeń: 3 pokoje:
• Salon z aneksem kuchennym (25,14 m²)
• Pokój (11,46 m²)
• Pokój (8,88 m²)
• Stan mieszkania: bardzo dobry, do wprowadzenia
• Kuchnia: w pełni wyposażona w sprzęt AGD
• Łazienka: z wanną (4,87 m²)
• Garderoba: (2,20 m²)
• Hol: z wanną (6,61 m²)
• Ogródek/taras: (9,38 m²)
• Mieszkanie puste – do aranżacji według własnych potrzeb
Dodatkowe atuty:
• Miejsce postojowe w garażu (dodatkowo 40 000 zł)
• Komórka lokatorska (dodatkowo 20 000 zł)
• Strefa rekreacji na terenie osiedla: siłownia oraz miejsce dla dzieci
• Budynek: nowoczesny, z 2018 roku, z całodobową ochroną
Lokalizacja:
• 100 m od przystanku autobusowego i tramwajowego
• W bliskim sąsiedztwie planowana stacja II linii metra (8 minut pieszo). otwarcie 2026.
• Osiedle z dużą ilością terenów zielonych, dobrze skomunikowane z resztą miasta.
• Czynsz:
• mieszkanie 675,24 zł
• komórka 41,20 zł
• miejsce postojowe 164,80 zł
Dodatkowe informacje:
• Mieszkanie znajduje się na nowoczesnym osiedlu z ochroną, zapewniającym komfort i bezpieczeństwo.
• Okolica charakteryzuje się spokojem i bliskością do natury, co czyni to miejsce idealnym do życia.
Zainteresowane osoby proszę o kontakt bezpośredni.

  • Na sprzedaż mieszkanie 3-pokojowe o powierzchni 61,50 m² taras, piwnica, garaż, aneks kuchenny
  • Parter w 5-piętrowym apartamentowcu z windą, rok budowy 2018
  • Warszawa, Bemowo ul. płk. Witolda Łokuciewskiego
  • Mieszkanie w dobrym stanie okna plastikowe
  • Odrębna własność z księgą wieczystą  
  • Wyposażenie internet, kuchenka, piekarnik, zmywarka

Aktualne mieszkania na sprzedaż

8
Mieszkanie 2-pokojowe Warszawa Bemowo, ul. gen. Meriana C. Coopera

990 000

55

2 pok.

Sprzedam lub zamienię na 4 pokoje. Ogłoszenie bezpośrednie, agencję zapraszam tylko z konkretnym klientem. Mieszkanie znajduje się na ogrodzonym osiedlu przy ul. Coopera, w trzypiętrowym bloku z 2009r, z windą z poziomu garażu. Jest zadbane, czyste, ciche, ciepłe i przestronne. Składa się z: salonu ...

Zobacz ogłoszenie
20
Mieszkanie 4-pokojowe Warszawa Bemowo, ul. Lajosa Kossutha

950 000

72

4 pok.

Oferuję na sprzedaż przestronne, jasne mieszkanie o powierzchni 72,59 m² w Warszawie, w cichej, zielonej okolicy dzielnicy Bemowo. Mieszkanie znajduje się na drugim piętrze w 8-piętrowym bloku z wielkiej płyty z 1978 roku. Wnętrze jest w dobrym stanie, gotowe do zamieszkania, w zależności od prefer...

Zobacz ogłoszenie
17
Mieszkanie 3-pokojowe Warszawa Bemowo, ul. Pirenejska

999 770

64

3 pok.

Serdecznie zapraszam do zapoznania się z ofertą bezpośredniej sprzedaży mieszkania 3-pokojowego z doskonałym widokiem na osiedlu Bemowo III przy ulicy Pirenejskiej 22. W pobliżu mieszkania znajduje się tramwaj, autobus oraz stacja metra przy Urzędzie Dzielnicy Bemowo, czyli w odległości trzech przy...

Zobacz ogłoszenie
9
Mieszkanie 4-pokojowe Warszawa Bemowo, ul. Bolesława Szareckiego

960 000

73

4 pok.

Na sprzedaż oferuję przestronne i bardzo ustawne mieszkanie o powierzchni 73,5 m², położone na 7. piętrze w spokojnej i świetnie skomunikowanej części miasta. To idealna propozycja dla rodziny lub osób ceniących funkcjonalny układ pomieszczeń oraz wygodę codziennego życia. ✨ Najważniejsze atuty mies...

Zobacz ogłoszenie
16
Mieszkanie 3-pokojowe Warszawa Bemowo, ul. Człuchowska

998 000

63

3 pok.

Mam przyjemność zaprezentować Państwu przestronne 3-pokojowe mieszkanie o powierzchni 63 m2 zlokalizowane przy ul. Człuchowskiej na warszawskim Bemowie-Jelonki. Mieszkanie znajduje się na 4 piętrze, w budynku z 2013 roku.  Człuchowska 74 - 62,8 m2, - 2 sypialnie, - 4 piętro, -  wysokość 270 cm, -  b...

Zobacz ogłoszenie
8
Mieszkanie 3-pokojowe Warszawa Bemowo, ul. Zenona Klemensiewicza

970 500

64

3 pok.

3-pokojowe mieszkanie zlokalizowane na Bemowie przy ul. Klemensiewicza BUDYNEK/OSIEDLE Mieszkanie znajduje się na wysokim parterze w 3 piętrowym budynku. Rok budowy: 1976 NIERUCHOMOŚĆ Mieszkanie o powierzchni 64,7m2 składa się z: -trzech pokoi, -oddzielnej kuchni, -łazienki, -WC, -przedpokoju...

Zobacz ogłoszenie