Mieszkanie na sprzedaż bez pośredników
ul. Krzysztofa Kamila Baczyńskiego Płock

Mieszkanie 3-pokojowe Płock, ul. Krzysztofa Kamila Baczyńskiego. Zdjęcie 1

Mieszkanie na sprzedaż bez pośredników Płock ul. Krzysztofa Kamila Baczyńskiego · 2 piętro

480 000
8 000 zł/m²
60
3 pok.
Płock, Krzysztofa Kamila Baczyńskiego - lokalizacja przybliżona
Bezpośrednio od właściciela

Jeśli nie potrzebujesz pośrednika, zaoszczędzisz około 14 400 zł. Potrzebujesz wsparcia? Skorzystaj z pomocy agenta.

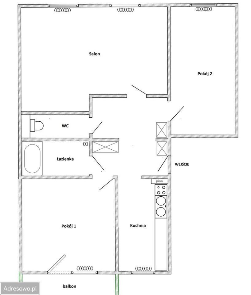
Sprzedam mieszkanie 3-pokojowe + kuchnia, łazienka i oddzielne WC. 59 m2 + piwnica.

Mieszkanie przestronne, widne, okna na dwie strony świata (wschód-zachód). Gotowe do zamieszkania/wynajęcia. Wymaga odświeżenia/przemalowania.

Media: prąd, woda, gaz. Ogrzewanie w czynszu, gaz-ryczałt.

W kuchni pełne szafki dolne i górne, kuchnia i piekarnik gazowa. W pokojach regały, łóżka. Okna wymieniono na plastikowe.

Mieszkanie zlokalizowane na 2 p. z 4, środkowe, ciepłe, w dobrej i spokojnej okolicy.

Blisko szkoła podstawowa nr 23, przedszkole, żłobek, liceum, przy parku. W okolicy centrum handlowe Mazovia/Wisła, Auchan, Media-Expert i inne. Bardzo dobra komunikacja miejska z miastem. Spokojni sąsiedzi.

Ostatnia klatka, ślepa ulica - nieprzejezdna. Miejsce parkingowe. Bezpiecznie dla dzieci.

W klatce dostępna również suszarnia, wózkownia na rowery, sanki itp.

Jeśli jesteś zainteresowany bliższymi informacjami, obejrzeniem mieszkania - napisz, zadzwoń.

Cena do negocjacji.

  • Na sprzedaż mieszkanie 3-pokojowe o powierzchni 60 m² balkon, piwnica, osobna kuchnia
  • 2 piętro w 4-piętrowym bloku  
  • Płock ul. Krzysztofa Kamila Baczyńskiego
  • Wyposażenie piekarnik
  • Oferta bezpośrednio od właściciela dodana ponad miesiąc temu i zaktualizowana ponad tydzień temu
Ta nieruchomość może być Twoja od.. sprawdź
96000 zł (20%) Okres spłaty: 30 lat

Podobne mieszkania na sprzedaż

8
Mieszkanie 3-pokojowe Płock, ul. Fryderyka Chopina

510 000

60

3 pok.

Dwustronne, słoneczne M4 + Garaż Sprzedam bezpośrednio 60-metrowe, trzypokojowe, funkcjonalne mieszkanie z oddzielną, widną kuchnią i łazienką, mieszczące się na 8. piętrze 11-piętrowego bloku (z windą), na ul. Chopina 67 w Płocku. Mieszkanie posiada dwustronną ekspozycję (wschód i zachód). Duże o...

Zobacz ogłoszenie
7
Mieszkanie 2-pokojowe Płock, ul. 3 Maja

499 000

46

2 pok.

Sprzedam lub zamienię na dom mieszkanie w centrum Płocka znajdujące się w apartamentowcu oddanym do użytkowania pod koniec 2019 roku. Apartamentowiec położony jest w bardzo dobrej lokalizacji. Budynek jest przystosowany do potrzeb osób niepełnosprawnych - znajduje się w nim winda. Do mieszkania przy...

Zobacz ogłoszenie
8
Mieszkanie 3-pokojowe Płock, ul. Narodowych Sił Zbrojnych

446 000

48

3 pok.

Sprzedam mieszkanie o powierzchni 48,20 m² przy ulicy Narodowych Sił Zbrojnych 15 w Płocku. Mieszkanie położone na parterze, składa się z 3 pokoi, przedpokoju, kuchni oraz łazienki. Do mieszkania należy balkon, piwnica i pomieszczenie gospodarcze wspólne. Mieszkanie w doskonałej lokalizacji. Cicha...

Zobacz ogłoszenie
19
Mieszkanie 4-pokojowe Płock, ul. Wacława Lachmana

500 000

73

4 pok.

Na sprzedaż 4-pokojowe mieszkanie o powierzchni 73 m², znajdujące się na 4. piętrze w bloku z windą. Nieruchomość posiada: - balkon, - pomieszczenie użytkowe, - dużą piwnicę. Czynsz wynosi 900 PLN. Mieszkanie dostępne od zaraz. Lokalizacja jest bardzo dogodna. W pobliżu znajdzie się szkoła, przed...

Zobacz ogłoszenie
12
Mieszkanie 3-pokojowe Płock, ul. Haliny i Stefana Rutskich

515 000

48

3 pok.

Na sprzedaż funkcjonalne i zadbane mieszkanie o powierzchni 48 m², położone na 2. piętrze w spokojnym i zielonym otoczeniu. Układ mieszkania: - 3 pokoje - kuchnia - łazienka - osobna toaleta Do mieszkania przynależy również piwnica. Dużym atutem jest przestronny balkon (ok. 5 m² - 5m długości i 1 ...

Zobacz ogłoszenie
5
Mieszkanie 4-pokojowe Płock, ul. Konstantego Ildefonsa Gałczyńskiego

429 000

64

4 pok.

Sprzedam czteropokojowe mieszkanie w Płocku ul. Gałczyńskiego Mieszkanie o pow. 64,55 m2, położone na czwartym piętrze w bloku czteropiętrowym - cztery pokoje, - widna kuchnia - łazienka i WC - balkon - przedpokój Cena 429 000 zł Zapraszam do współpracy Pasja Nieruchomości T...

Zobacz ogłoszenie