Mieszkanie na sprzedaż bez pośredników
ul. Lubelska Kraśnik

Mieszkanie 2-pokojowe Kraśnik, ul. Lubelska. Zdjęcie 1

Mieszkanie na sprzedaż bez pośredników Kraśnik ul. Lubelska · parter

480 000
7 619 zł/m²
63
2 pok.
Kraśnik, Lubelska - lokalizacja przybliżona
Bezpośrednio od właściciela

Jeśli nie potrzebujesz pośrednika, zaoszczędzisz około 14 400 zł. Potrzebujesz wsparcia? Skorzystaj z pomocy agenta.

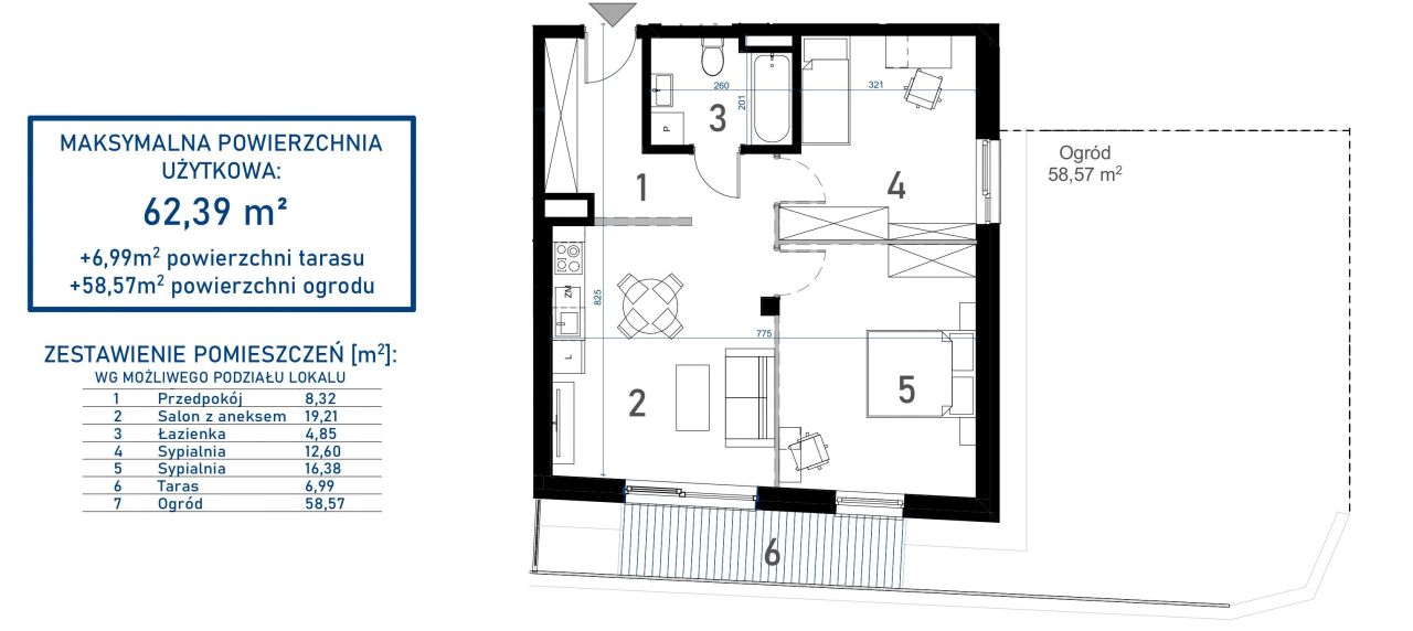
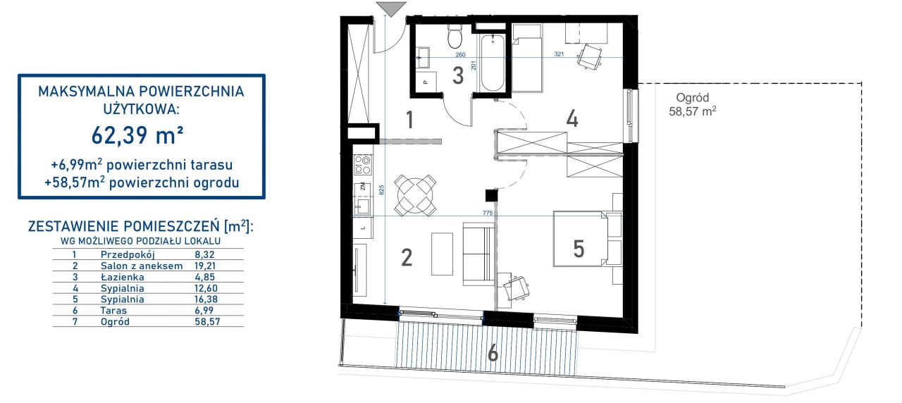
Na sprzedaż nowoczesny apartament w stanie deweloperskim o powierzchni ok. 63 m² z prywatnym ogródkiem w Kraśniku.

To propozycja dla osób, które cenią przestrzeń, światło i możliwość stworzenia wnętrza idealnie dopasowanego do własnego stylu.

Przemyślany układ: 2 komfortowe sypialnie oraz przestronny salon z aneksem kuchennym tworzą harmonijną i funkcjonalną przestrzeń do życia.

Duże przeszklenia otwierają wnętrze na prywatny ogródek, który staje się naturalnym przedłużeniem strefy dziennej – idealnym miejscem na poranną kawę, letnie kolacje i relaks po pracy.

Najważniejsze informacje:
• powierzchnia: ok. 60 m²
• układ: 2 sypialnie + salon z kuchnią
• stan: deweloperski – pełna swoboda aranżacji
• ogródek na wyłączność
• parter
• możliwość dokupienia miejsca w garażu podziemnym

Atuty, które wyróżniają tę ofertę:

• apartamentowy charakter
• prywatna strefa zieleni
• jasne, nowoczesne wnętrza
• funkcjonalny rozkład
• komfort parkowania w garażu
• spokojna lokalizacja
• idealne również jako inwestycja pod wynajem premium

Zapraszam do kontaktu i na prezentację. To nieruchomość, która robi wrażenie na żywo.

  • Oferta z rynku pierwotnego
  • Na sprzedaż mieszkanie 2-pokojowe o powierzchni 63 m²  
  • Parter w 7-piętrowym bloku z windą, rok budowy 2025
  • Kraśnik ul. Lubelska
  • Mieszkanie do wykończenia  
  • Odrębna własność z księgą wieczystą  
  • Świadectwo Energetyczne  
  • Oferta bezpośrednio od właściciela dodana ponad miesiąc temu i zaktualizowana ponad tydzień temu
Ta nieruchomość może być Twoja od.. sprawdź
96000 zł (20%) Okres spłaty: 30 lat

Podobne mieszkania na sprzedaż

1
Mieszkanie 3-pokojowe Kraśnik, ul. Adama Mickiewicza

397 800

78

3 pok.

Sprzedam mieszkanie o powierzchni 78 m2 przy ul. Mickiewicza. Mieszkanie składa się: - 3 pokoi + duży balkon - kuchni - łazienka z wanną - oddzielne WC - korytarz Mieszkanie znajduje się na 2. piętrze, przy parku. Dużo zielonej przestrzeni, plac zabaw, fontanna. W bliskiej odległości przystanek i ...

Zobacz ogłoszenie
8
Mieszkanie 3-pokojowe Kraśnik

365 000

59

3 pok.

Mieszkanie jest po remoncie, nowa instalacja elektryczna, gazowa, wodno-kanalizacyjna. Nowe podłogi, nowe drzwi wewnętrzne. W łazience nowe: kabina prysznicowa, umywalka z szafką, lustro, sedes oraz Junkers. Ściany pomalowane są na biało. W pokoju oraz na korytarzu są szafy wnękowe. Do mieszkania pr...

Zobacz ogłoszenie
11
Mieszkanie 2-pokojowe Kraśnik, ul. gen. Władysława Sikorskiego

419 000

61

2 pok.

Sprzedaż bez pośredników - komfortowe mieszkanie gotowe do zamieszkania w Kraśniku (ul. Sikorskiego). Na sprzedaż przytulne i funkcjonalne mieszkanie o powierzchni 61,33 m², położone na parterze kameralnego, dwukondygnacyjnego budynku z czasów Centralnego Okręgu Przemysłowego. To idealna propozycja...

Zobacz ogłoszenie
14
Mieszkanie 3-pokojowe Kraśnik, ul. Koszarowa

370 000

51

3 pok.

Mieszkanie o powierzchni 51 m² na trzecim piętrze. Trzy niezależne od siebie pokoje. Mieszkanie posiada duży balkon i osobną kuchnię. Wnętrza są wykończone do zamieszkania. Znajdziesz tu pełne wyposażenie: • lodówka, • piekarnik, • zmywarka, • pralka. Lokalizacja jest świetnie skomunikowana w cent...

Zobacz ogłoszenie
1
Mieszkanie 2-pokojowe Kraśnik, al. Niepodległości

340 000

50

2 pok.

Sprzedam Mieszkanie - 50m², Kraśnik Fabryczny Na sprzedaż mieszkanie o powierzchni 50 m², zlokalizowane na drugim piętrze w Kraśniku Fabrycznym. Lokal położony w świetnej lokalizacji - w pobliżu znajduje się przedszkole, szkoła oraz basen, co czyni to miejsce idealnym dla rodzin. Opis mieszkania: Mi...

Zobacz ogłoszenie
7
Mieszkanie 4-pokojowe Kraśnik

450 000

72

4 pok.

Na sprzedaż przestronne mieszkanie 72 m2, idealne dla rodziny lub jako inwestycja pod wynajem. Lokal składa się z 4 ustawnych pokoi, które zapewniają idealne warunki do życia, pracy i wypoczynku. Dużym atutem mieszkania jest duży przedpokój oraz dwie łazienki, gdzie jedna posiada dodatkowo wannę rel...

Zobacz ogłoszenie