Mieszkanie na sprzedaż bez pośredników
ul. Laurowa Grójec

Mieszkanie 2-pokojowe Grójec, ul. Laurowa. Zdjęcie 1

Mieszkanie na sprzedaż bez pośredników Grójec ul. Laurowa · 5 piętro

450 000
10 076 zł/m²
44
2 pok.
Grójec, Laurowa - lokalizacja przybliżona
Bezpośrednio od właściciela

Jeśli nie potrzebujesz pośrednika, zaoszczędzisz około 13 500 zł. Potrzebujesz wsparcia? Skorzystaj z pomocy agenta.

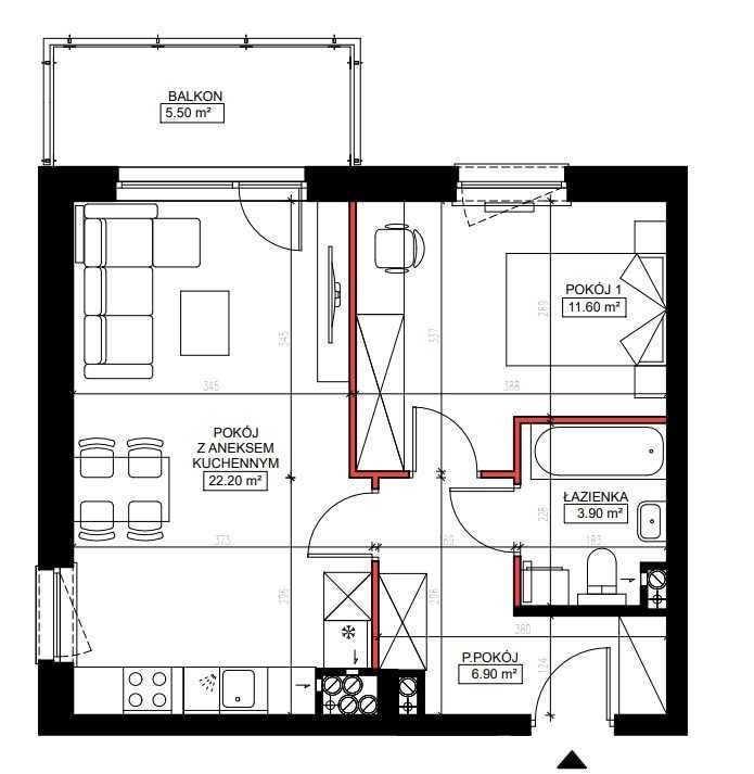
Sprzedam mieszkanie o powierzchni 44,66m2 w stanie deweloperskim przy ulicy Laurowej 2.

W skład mieszkania wchodzi:
- salon z aneksem kuchennym,
- oddzielny pokój,
- łazienka,
- przedpokój,
- balkon.

Mieszkanie znajduje się na ostatnim, 5. piętrze.
Ekspozycja wschodnia.

Nowoczesne osiedle, szybki dojazd do Warszawy.
Termin oddania od dewelopera: maj 2026 r.

Do mieszkania przynależy komórka lokatorska oraz miejsce postojowe w garażu podziemnym (dodatkowo płatne 40 000 zł).

Tel: 

  • Oferta z rynku pierwotnego
  • Na sprzedaż mieszkanie 2-pokojowe o powierzchni 44,66 m² balkon, piwnica, miejsce w hali garażowej, aneks kuchenny
  • 5 piętro w 5-piętrowym apartamentowcu  
  • Grójec ul. Laurowa
  • Oferta bezpośrednio od właściciela dodana przedwczoraj
Ta nieruchomość może być Twoja od.. sprawdź
90000 zł (20%) Okres spłaty: 30 lat

Podobne mieszkania na sprzedaż

8
Mieszkanie 2-pokojowe Grójec

395 000

50

2 pok.

Na sprzedaż funkcjonalne mieszkanie o powierzchni 50,30 m² (PU), położone na 3. piętrze w bloku z 2000 roku (bez windy). *** Układ i wnętrze Mieszkanie jest dwustronne i dobrze doświetlone, z praktycznym rozkładem: - przestronny salon z aneksem kuchennym i jadalnią - otwarta przestrzeń, duże możliw...

Zobacz ogłoszenie
5
Mieszkanie 2-pokojowe Grójec, ul. Kardynała Stefana Wyszyńskiego

380 000

38

2 pok.

Sprzedam 2 nowe mieszkania dwupokojowe na ul. Wyszyńskiego 5. - Lokale usytuowane są obok siebie i mają 38 m² i 37 m². - Numery mieszkań: 98 i 99. - Do tych mieszkań są miejsca postojowe w parkingu podziemnym (miejsca również są obok siebie). - Przynależą również dwie komórki lokatorskie. - Stan de...

Zobacz ogłoszenie
12
Mieszkanie 2-pokojowe Grójec

459 000

48

2 pok.

Na sprzedaż funkcjonalne i dobrze rozplanowane mieszkanie o powierzchni 48 m², zlokalizowane w samym centrum Grójca. Lokal składa się z przestronnego salonu, oddzielnej sypialni, oddzielnej ustawnej kuchni, łazienki oraz przedpokoju. Dzięki przemyślanemu układowi mieszkanie jest wygodne zarówno dla...

Zobacz ogłoszenie
8
Mieszkanie 3-pokojowe Grójec, ul. Mszczonowska

395 000

57

3 pok.

Przestronne mieszkanie 57,48 m² z balkonem i piwnicą - Grójec, ul. Mszczonowska. Na sprzedaż jasne i przestronne mieszkanie o powierzchni 57,48 m², położone w Grójcu przy ul. Mszczonowskiej 27 (4 piętro bez windy). Do mieszkania przynależy również piwnica. Mieszkanie jest bardzo ustawne i dobrze d...

Zobacz ogłoszenie
8
Mieszkanie 3-pokojowe Grójec

569 000

58

3 pok.

Sprzedam duże mieszkanie w nowym budownictwie, w skład którego wchodzą: - kuchnia z aneksem, - dwa pokoje, - przedpokój, - oraz łazienka. Mieszkanie położone na parterze. Dużym atutem mieszkania jest osobne wejście, jak do domu jednorodzinnego. Do mieszkania przynależy komórka lokatorska i miejsc...

Zobacz ogłoszenie
11
Mieszkanie 3-pokojowe Grójec, ul. Laskowa

520 000

49

3 pok.

Osiedle pod Kasztanami Sprzedam 3-pokojowe mieszkanie z aneksem kuchennym, usytuowane na 4. piętrze nowoczesnego bloku z windą, położonego w centrum Grójca, przy ulicy Laskowej, na Osiedlu pod Kasztanami. Opis mieszkania: • Powierzchnia: 48,5 m² • Stan: deweloperski - idealny do własnej aranżacji •...

Zobacz ogłoszenie