Mieszkanie na sprzedaż bez pośredników
ul. adm. J. Unruga Gdynia Obłuże

Mieszkanie 2-pokojowe Gdynia Obłuże, ul. adm. J. Unruga. Zdjęcie 1

Mieszkanie na sprzedaż bez pośredników Gdynia Obłuże ul. adm. J. Unruga · 1 piętro

400 000
12 308 zł/m²
32
2 pok.
Gdynia Obłuże, adm. J. Unruga - lokalizacja przybliżona
Bezpośrednio od właściciela

Jeśli nie potrzebujesz pośrednika, zaoszczędzisz około 12 000 zł. Potrzebujesz wsparcia? Skorzystaj z pomocy agenta.

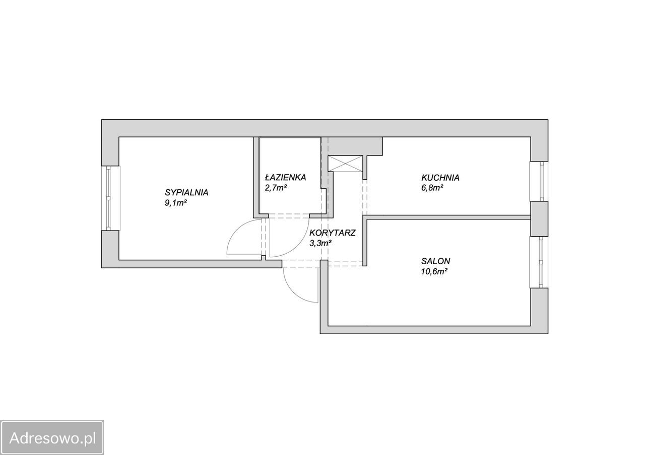
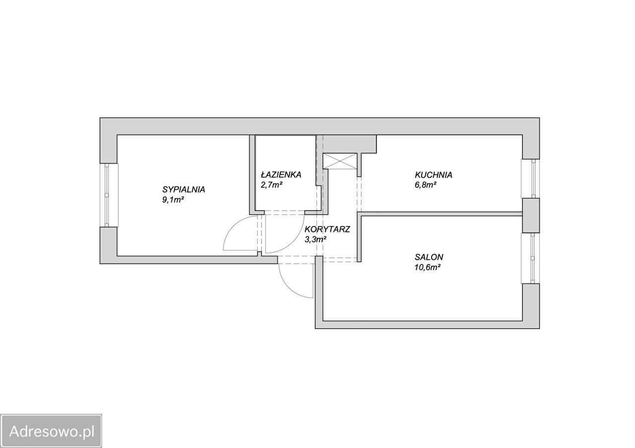
MIESZKANIE 2 POKOJOWE

Na sprzedaż mieszkanie na 1. piętrze, 2-pokojowe, z piwnicą i oddzielną kuchnią. Powierzchnia: 32,5 m² plus piwnica 4,14 m².

Latem 2022 roku przeprowadzono remont kapitalny łazienki pod kątem przystosowania dla osób z niepełnosprawnością.

W pokojach parkiet.

Pokoje mogą wymagać odświeżenia/odmalowania.

Kuchnia i większy pokój bardzo jasne, ekspozycja południowo-zachodnia.

Przy bloku dostępne miejsca parkingowe.

Koszty eksploatacyjne: ok. 300 zł latem i ok. 530 zł zimą.

Mieszkanie dostępne od zaraz.

LOKALIZACJA

Spokojna okolica i sąsiedztwo.

W pobliżu: przystanek autobusowy, przedszkole, szkoła podstawowa z basenem, przychodnia, pawilon handlowy oraz las ze ścieżką zdrowia.

Doskonała komunikacja, ok. 10-15 min. samochodem lub autobusem do centrum Gdyni.

ATUTY MIESZKANIA:

- Doskonale skomunikowane z centrum miasta.
- Spokojna okolica.
- Zabezpieczenie domofonem.
- 1. piętro.
- Duża piwnica ponad 4 m².
- Łazienka po remoncie, przystosowana dla osób z niepełnosprawnością.
- Oddzielna kuchnia.
- Niskie koszty eksploatacyjne.
- Bardzo ciepłe (po dociepleniu budynku).
- Dostępne od zaraz.
- Bez opłat i prowizji za udział pośrednika.

Dziękujemy za oferty pośredników - sprzedaż wyłącznie dla osób bezpośrednio zainteresowanych.

  • Na sprzedaż mieszkanie 2-pokojowe o powierzchni 32,50 m² piwnica, osobna kuchnia
  • 1 piętro w 4-piętrowym bloku  
  • Gdynia, Obłuże ul. adm. J. Unruga
  • Mieszkanie w stanie do odświeżenia okna plastikowe
  • Oferta bezpośrednio od właściciela dodana ponad miesiąc temu i zaktualizowana 5 dni temu
Ta nieruchomość może być Twoja od.. sprawdź
80000 zł (20%) Okres spłaty: 30 lat

Podobne mieszkania na sprzedaż

8
Mieszkanie 2-pokojowe Gdynia Chylonia, ul. Ludwika Zamenhofa

390 000

37

2 pok.

Na sprzedaż przytulne mieszkanie położone na 3. piętrze w 4-piętrowym budynku, w doskonale skomunikowanej części dzielnicy Chylonia. Mieszkanie składa się z: • przestronnego salonu - ok 15,5 m² • oddzielnej, jasnej kuchni - ok 4,5m² • sypialni - ok 10,5m² • łazienki - ok 3m² • korytarz – ok 3,7m² ...

Zobacz ogłoszenie
17
Mieszkanie 2-pokojowe Gdynia Działki Leśne, ul. Śląska

399 500

40

2 pok.

Świetna inwestycja! 2 pokoje po remoncie - Gdynia Działki Leśne | 40,5 m² To 2-pokojowe, świeżo wyremontowane mieszkanie w centrum Gdyni to idealna propozycja zarówno dla inwestora, jak i osoby szukającej gotowego lokum do zamieszkania. Podstawowe informacje: - Lokalizacja: Gdynia - Działki Leśne - ...

Zobacz ogłoszenie
8
Mieszkanie 2-pokojowe Gdynia Obłuże

469 000

37

2 pok.

Sprzedam mieszkanie w Gdyni Obłuże. Usytuowane na IV piętrze czteropiętrowego budynku. Nieruchomość o powierzchni 37 m, po podłodze 42 m. Lokal składa się z 2 pokoi, dużego przedpokoju, kuchni i łazienki. Ma bardzo funkcjonalny układ oraz jest bardzo dobrze oświetlone światłem naturalnym. Skosy w p...

Zobacz ogłoszenie
9
Mieszkanie 2-pokojowe Gdynia Obłuże, ul. Stolarska

385 000

33

2 pok.

Sprzedam małe dwupokojowe mieszkanie w bloku z „wielkiej płyty”. Mieszkanko jest ustawne i słoneczne. Składa się z dwóch niezależnych pokojów, kuchni, łazienki i WC. Zdjęcia mieszkania są sprzed kilku lat. Obecnie prezentuje się lepiej, zostały wymienione okna i odświeżone. Opłaty latem wynoszą 500 ...

Zobacz ogłoszenie
10
Mieszkanie 2-pokojowe Gdynia Karwiny, ul. Buraczana

399 000

36

2 pok.

Słoneczne mieszkanie z widokiem na morze – Gdynia Karwiny, ul. Buraczana Zapraszam do zapoznania się z ofertą wyjątkowego 2-pokojowego mieszkania o powierzchni 36,40 m², położonego w spokojnej i doskonale skomunikowanej części Gdyni. Lokal znajduje się na 4. piętrze kameralnego, 4-piętrowego budynk...

Zobacz ogłoszenie
1
Mieszkanie 3-pokojowe Gdynia Witomino, ul. Nauczycielska

410 000

43

3 pok.

Na sprzedaż 3 pokojowe mieszkanie. Stan do odświeżenia Opis mieszkania: - Powierzchnia: 43 m2 - 3 pokoje w tym jeden z aneksem kuchennym - Łazienka z WC - Przedpokój z miejscem na zabudowę - Do mieszkania przynależy piwnica Zapraszam do oglądania. Przedstawiona oferta ma charakter informacyj...

Zobacz ogłoszenie