Mieszkanie na sprzedaż bez pośredników
ul. Galileusza Gdańsk Osowa

Mieszkanie 3-pokojowe Gdańsk Osowa, ul. Galileusza. Zdjęcie 1

Mieszkanie na sprzedaż bez pośredników Gdańsk Osowa ul. Galileusza · 1 piętro

699 000
10 352 zł/m²
67
3 pok.
Gdańsk Osowa, Galileusza - lokalizacja przybliżona
Bezpośrednio od właściciela

Jeśli nie potrzebujesz pośrednika, zaoszczędzisz około 21 000 zł. Potrzebujesz wsparcia? Skorzystaj z pomocy agenta.

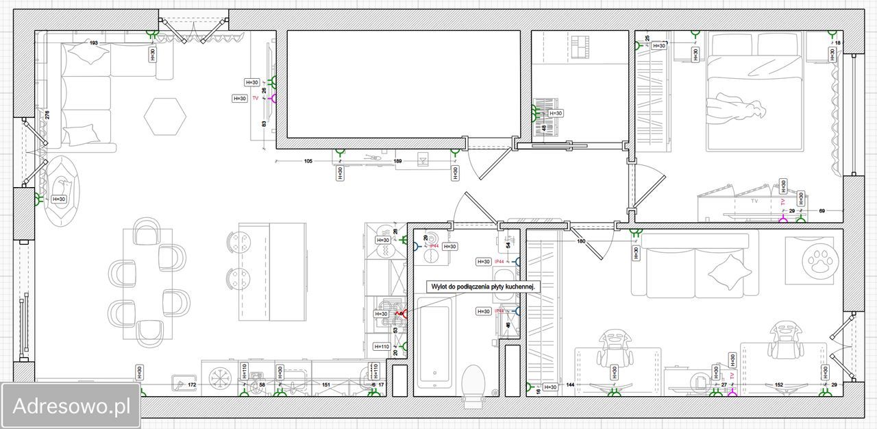
Na sprzedaż przestronne, funkcjonalne mieszkanie w stanie deweloperskim, położone na 1 piętrze nowoczesnego budynku wśród zieleni i ciszy. Idealne dla osób szukających komfortu, świetnego układu pomieszczeń oraz możliwości wykończenia wnętrza według własnego stylu.

Najważniejsze informacje:
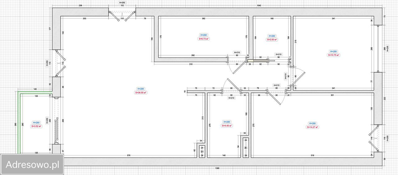
- Powierzchnia: około 67,52 m²
- Piętro: 1
- Ekspozycja: północ-południe
- Cena mieszkania: 699 000 zł
- Termin wydania: do 30.04.2026
- Stan: deweloperski

Atuty mieszkania:
- Ogrzewanie podłogowe - komfort cieplny w całym mieszkaniu.
- Wyprowadzone okablowanie pod system alarmowy.
- Dodatkowe gniazdka oraz okablowanie internetowe - idealne pod pracę zdalną lub inteligentny dom.
- Duże możliwości aranżacyjne dzięki przemyślanemu układowi.
- Możliwość wydzielenia dodatkowego pokoju - układ mieszkania pozwala na stworzenie 4-go funkcjonalnego pomieszczenia.
- Szybki dojazd do obwodnicy Gdańska.
- Pełna infrastruktura w dzielnicy Osowa - pasaże handlowe, szkoły, przedszkola, przychodnia.

Zakup obligatoryjny:
- Miejsce w hali garażowej: 30 000 zł brutto.
- Miejsce naziemne: 10 000 zł brutto.

Dodatkowe informacje:
Zrzut mieszkania ma charakter poglądowy. Metraż może ulec niewielkiej korekcie po pomiarach powykonawczych.

  • Oferta z rynku pierwotnego
  • Na sprzedaż mieszkanie 3-pokojowe o powierzchni 67,52 m² balkon, garaż/miejsce parkingowe
  • 1 piętro w 1-piętrowym domu wielorodzinnym rok budowy 2026
  • Gdańsk, Osowa ul. Galileusza
  • Mieszkanie do wykończenia okna plastikowe
  • Odrębna własność z księgą wieczystą  
  • Oferta bezpośrednio od właściciela dodana ponad tydzień temu
Ta nieruchomość może być Twoja od.. sprawdź
140000 zł (20%) Okres spłaty: 30 lat

Podobne mieszkania na sprzedaż

14
Mieszkanie 3-pokojowe Gdańsk Osowa, ul. Eurydyki

830 000

65

3 pok.

MIESZKANIE na sprzedaż w Gdańsku - dzielnica Osowa. Mieszkanie mieści się na podwyższonym parterze 2-piętrowego bloku, wychodzące na trzy strony świata (Wschód, Południe, Zachód). Mieszkanie jest jasne, przestronne oraz bardzo ustawne. Mieszkanie o powierzchni 65,6m2 + piwnica 6,5m2. Łączna powierzc...

Zobacz ogłoszenie
16
Mieszkanie 2-pokojowe Gdańsk Osowa, ul. Galaktyczna

649 000

44

2 pok.

Oferta biura The House Nieruchomości. Zapraszamy na spotkanie w nieruchomości przy ul. Galaktycznej - w prestiżowej inwestycji „Luna” na gdańskiej Osowej. W tym mieszkaniu pierwsze skrzypce gra przestrzeń, wysokość i światło. Ponad czterometrowa wysokość pokoju dziennego i duże przeszklenia sprawiaj...

Zobacz ogłoszenie
20
Mieszkanie 3-pokojowe Gdańsk Osowa, ul. Galaktyczna

674 000

55

3 pok.

Okazja: nowe 3-pokojowe mieszkanie, dostępne od ręki na podstawie notarialnej cesji umowy (bez 2% podatku PCC, bez prowizji). Słoneczne i ustawne 3-pokojowe mieszkanie z balkonem, zlokalizowane na I piętrze za cenę 669 tys. PLN, z miejscem postojowym na 1 samochód pod oknami (parking za szlabanem) ...

Zobacz ogłoszenie
13
Mieszkanie 3-pokojowe Gdańsk Osowa, ul. Zeusa

685 580

58

3 pok.

Mieszkanie 3 pokojowe, słoneczne, dwustronne (od wschodu i południowego zachodu). Lokalizacja: Kameralne osiedle zamknięte, w dogodnej lokalizacji. - Ok. 5 minut pieszo do przystanku kolei metropolitalnej (w stronę Gdańska Głównego i Gdyni). - W zasięgu spaceru: sklep Biedronka, kościół, park Chiro...

Zobacz ogłoszenie
12
Mieszkanie 2-pokojowe Gdańsk Osowa, ul. Marsa

630 000

45

2 pok.

Na sprzedaż funkcjonalne i zadbane mieszkanie o powierzchni 45,12 m², położone na parterze w spokojnej i zielonej części Gdańska – Osowa, ul. Marsa 20D. Mieszkanie jest odświeżone, gotowe do zamieszkania bez ponoszenia dodatkowych nakładów finansowych. Dużym atutem jest piękny Ogródek, który sprawd...

Zobacz ogłoszenie
16
Mieszkanie 2-pokojowe Gdańsk Osowa, ul. Marsa

620 000

45

2 pok.

Oferta prywatna - bez prowizji. Pośrednikom nieruchomości dziękujemy, prosimy nie kontaktować się. Gdańsk Osowa | 45,98 m² | 2 pokoje | ul. Marsa | oferta prywatna Są mieszkania, które się tylko ogląda. I są takie, do których wchodzisz… i od razu wiesz, że to Twoje miejsce na ziemi. To jedno z nic...

Zobacz ogłoszenie