Ogłoszenie usunięte

Gdańsk Chełm
ul. Ptasia
2-pokojowe mieszkanie na sprzedaż Bez pośrednika

Gdańsk Chełm · 564 900 zł

Ogłoszenie właściciela - bez pośredników

Mieszkanie 2-pokojowe Gdańsk Chełm, ul. Ptasia. Zdjęcie 1
Mieszkanie 2-pokojowe Gdańsk Chełm, ul. Ptasia. Zdjęcie 1

Bez pośrednika. Oszczędzasz 16 900 zł na prowizji pośrednika!

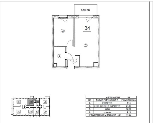
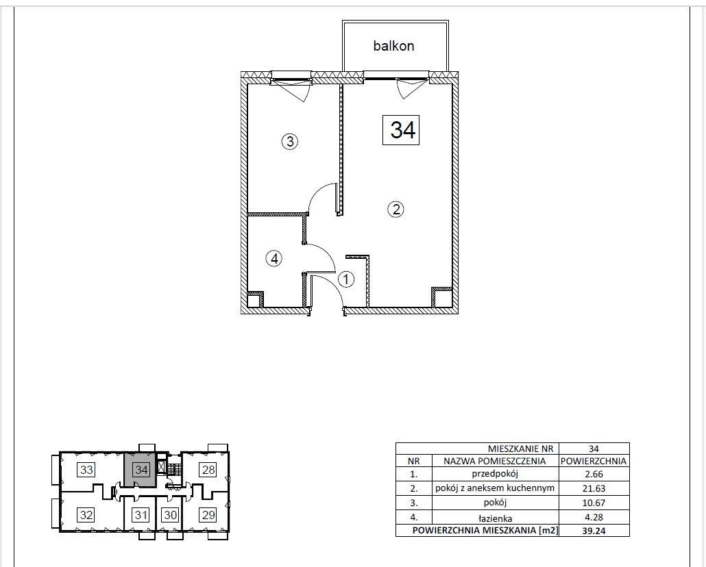
Dwupokojowe mieszkanie w Gdańsku, przy ul. Ptasia 57, na Osiedlu VIA FLORA wybudowane przez dewelopera DEVELIA. Mieszkanie jest dostępne od ręki, posiada już założoną Księgę Wieczystą.

Mieszkanie jest w stanie deweloperskim zlokalizowane jest na IV piętrze i ma ekspozycję zachodnią. Dzięki temu mieszkanie jest jasne i ciepłe. Widok z okien bezpośrednio na osiedle domów w zabudowie szeregowej dzięki czemu nie ma bliskiej odległości innych budynków i okien na tej wysokości. W dalszej odległości widok na osiedla z niską zabudową.

Mieszkanie ma powierzchnię 39,24 m2 i składa się z:
- salon z aneksem kuchennym o łącznej powierzchni 21,63 m2
- pokój o powierzchni 10,67 m2
- łazienka o powierzchni 4,28 m2,
- przedpokój o powierzchni 2,66 m2,
- balkon o powierzchni ok. 4 m2 o ekspozycji zachodniej.

Na terenie osiedla znajdują się ogólnodostępne miejsca parkingowe co jest rzadkością w nowym budownictwie. Zagospodarowanie terenu obejmuje ładnie urządzony plac zabaw, stojaki na rowery zadaszone i odsłonięte oraz w pełni zabudowane wiaty śmietnikowe. Teren zielony urządzony i zadbany.

Lokalizacja osiedla na granicy dzielnic Chełm oraz Orunia Górna pozwala na bezpośredni dostęp do pełnej infrastruktury usługowo-handlowej. Dodatkowo w najbliższych latach zaplanowane są inwestycje infrastrukturalne w linię tramwajową oraz linię kolejki sieci PKM (w biegu ul. Świętokrzyskiej).

Przykładowe odległości:
Pasaż Chełmski – 700 m
Biedronka, Żabka – 700 m
Lidl – 1 000 m
Przedszkole Publiczne – 850 m
Przedszkole Niepubliczne – 1 000 m
Szkoła podstawowa – 900 m
Przystanek autobusowy – 500 m
Przystanek tramwajowy – 1 000 m

Pośrednikom oraz biurom nieruchomości za kontakt dziękujemy - nie jesteśmy zainteresowani współpracą.

Na sprzedaż mieszkanie 2-pokojowe o powierzchni 39,24 m²
4 piętro w 4-piętrowym domu wielorodzinnym z windą z 2023 roku
Gdańsk, Chełm, ul. Ptasia
Balkon, aneks kuchenny
Mieszkanie do wykończenia, okna plastikowe
Odrębna własność z księgą wieczystą
Ogłoszenie bezpośrednio od właściciela
Mieszkanie dostępne od ręki

  • Na sprzedaż mieszkanie 2-pokojowe o powierzchni 39,24 m²
  • 4 piętro w 4-piętrowym bloku z windą z 2023 roku
  • Gdańsk, Chełm, ul. Ptasia
  • Balkon, aneks kuchenny
  • Mieszkanie do wykończenia, okna plastikowe
  • Odrębna własność z księgą wieczystą
  • Cena do negocjacji
  • Świadectwo Energetyczne
wczoraj
nowe
14
Mieszkanie 2-pokojowe Gdańsk Chełm, ul. Nieborowska

Gdańsk Chełm ul. Nieborowska Mieszkanie na sprzedaż

2 pokoje 37 parter Bez pośrednika
595 000
15 913 zł / m²
5 dni temu
8
Mieszkanie 2-pokojowe Gdańsk Chełm, ul. Zbigniewa Podleckiego

Gdańsk Chełm ul. Zbigniewa Podleckiego Mieszkanie na sprzedaż

2 pokoje 49 2 piętro Bez pośrednika
590 000
12 041 zł / m²
ponad miesiąc temu
9
Mieszkanie 2-pokojowe Gdańsk Chełm, ul. Ptasia

Gdańsk Chełm ul. Ptasia Mieszkanie na sprzedaż

2 pokoje 39 4 piętro Bez pośrednika
564 900
14 396 zł / m²
ponad miesiąc temu
5
Mieszkanie 2-pokojowe Gdańsk Chełm, ul. Olimpijska

Gdańsk Chełm ul. Olimpijska Mieszkanie na sprzedaż

2 pokoje 50 parter Bez pośrednika
569 000
11 380 zł / m²
ponad miesiąc temu
1
Mieszkanie 2-pokojowe Gdańsk Chełm, ul. Ptasia

Gdańsk Chełm ul. Ptasia Mieszkanie na sprzedaż

2 pokoje 33 4 piętro Bez pośrednika
570 000
17 273 zł / m²
ponad miesiąc temu
8
Mieszkanie 2-pokojowe Gdańsk Chełm, ul. Kazimierza Porębskiego

Gdańsk Chełm ul. Kazimierza Porębskiego Mieszkanie na sprzedaż

2 pokoje 51 1 piętro Bez pośrednika
599 000
11 745 zł / m²