Nieruchomość komercyjna na sprzedaż bez pośredników
ul. Wąwozowa Warszawa Kabaty

Lokal Warszawa Kabaty, ul. Wąwozowa. Zdjęcie 1

Nieruchomość komercyjna na sprzedaż bez pośredników Warszawa Kabaty ul. Wąwozowa

1 980 000
27 123 zł/m²
73
Warszawa Kabaty, Wąwozowa - lokalizacja przybliżona
Bezpośrednio od właściciela

Jeśli nie potrzebujesz pośrednika, zaoszczędzisz około 59 400 zł. Potrzebujesz wsparcia? Skorzystaj z pomocy agenta.

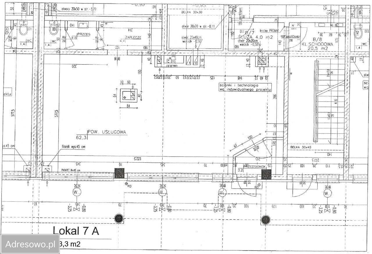
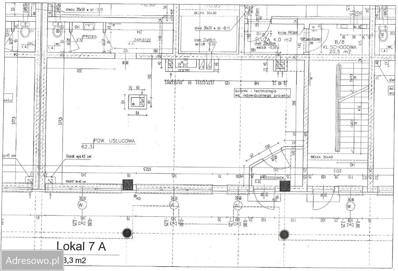
Atrakcyjny lokal, nadający się na każdą działalność, położony bezpośrednio przy głównej ulicy i ciągu handlowym o dużym natężeniu ruchu - ul. Wąwozowa 6.

- W sąsiedztwie lokale handlowo-usługowe i gastronomiczne.
- Doskonale skomunikowany: tylko 3 minuty do stacji metra Kabaty i 20 metrów do najbliższych przystanków autobusowych oraz pętli autobusowej.

- Lokal posiada 2 witryny o długości 10 m z możliwością umieszczenia szyldów i banerów reklamowych.
- Niezależne wejście do lokalu bezpośrednio z ulicy i szerokiego pasażu.
- Bezpośrednio przed lokalem duża ilość miejsc parkingowych.
- Lokal posiada wentylację mechaniczną, klimatyzację oraz palarnię (oddzielne i wentylowane pomieszczenie).

- Lokal z księgą wieczystą, odrębna własność oraz posiada Świadectwo Charakterystyki Energetycznej.

- Układ lokalu przystosowany do dowolnej aranżacji wnętrza, rozprowadzona instalacja audiowizualna, strefowe oświetlenie.
- Lokal przystosowany do działalności gastronomicznej (posiada wszelkie zgody i koncesję na alkohol).
- Możliwość zagospodarowania przestrzeni przed lokalem na potrzeby ustawienia reklam czy ogródka sezonowego.
- Możliwość zgody na sprzedaż i podawanie alkoholu.

Cena sprzedaży: 1 980 000 zł brutto.
Wynajmujący nie wystawia faktury VAT.
Czynsz administracyjny z zaliczkami na media do Spółdzielni Mieszkaniowej: 1 200 zł.

Kontakt: TYLKO TELEFONICZNY - bezpośrednio do właściciela.

  • ul. Wąwozowa, Warszawa Kabaty  
  • Na sprzedaż lokal o powierzchni 73 m²  
  • Oferta bezpośrednio od właściciela dodana ponad miesiąc temu
Ta nieruchomość może być Twoja od.. sprawdź
396000 zł (20%) Okres spłaty: 30 lat

Podobne nieruchomości komercyjne na sprzedaż

17
Biuro Warszawa Kabaty, ul. Wąwozowa

2 132 000

164

Na sprzedaż przestronny, w pełni wykończony lokal biurowy o powierzchni 164 m². Lokal usytuowany na trzecim piętrze budynku biurowo-mieszkalnego z windą przy ul. Wąwozowej 11 na warszawskim Ursynowie (Kabaty). Lokal znajduje się w części biurowej budynku (wydzielona klatka). Budynek z 1999 roku. Lo...

Zobacz ogłoszenie
2
Lokal Warszawa Mokotów, ul. Rakowiecka

zapytaj

78

Dobrze prosperujący, rodzinnie prowadzony lokal gastronomiczny sprzedam z powodu choroby. Dobra lokalizacja przy ul. Rakowieckiej, z planowaną nitką tramwajową. Różne opcje dla zainteresowanych do umówienia. Zapraszam do kontaktu, Josef

Zobacz ogłoszenie
15
Biuro Warszawa Praga-Północ, ul. Jagiellońska

zapytaj

675

Do wynajęcia Lokal biurowy – Jagiellońska 88 budynek 30U Budynek zlokalizowany jest przy jednej z głównych ulic na warszawskiej Pradze. W pobliżu znajdują się liczne przystanki autobusowe i tramwajowe, zapewniające sprawny dojazd do prawie każdej z dzielnic miasta. W pobliżu znajduje się stacja Kole...

Zobacz ogłoszenie
1
Lokal Warszawa Mokotów, ul. Jana Sebastiana Bacha

zapytaj

94

Atrakcyjna lokalizacja w bardzo ruchliwym wężle . Wspaniały standard pod usługi, handel, manufakturę. Osoby fizyczne mile widziane. Na ewentualne pytania odpowiem w korespondencji lub jeszcze lepiej przez telefon.

Zobacz ogłoszenie
10
Lokal Warszawa Wilanów, al. Wilanowska

2 050 000

101

Do sprzedaży oferujemy atrakcyjny lokal użytkowy o powierzchni 101 m², położony na parterze budynku przy al. Wilanowskiej 9 w Warszawie. Duże witryny zapewniają doskonałą ekspozycję i widoczność z ulicy. W lokalu obecnie prowadzona jest działalność fitness (siłownia). Lokal w stanie do indywidualne...

Zobacz ogłoszenie
20
Lokal Warszawa Rembertów, ul. Działyńczyków

1 999 999

290

Na sprzedaż dwupiętrowy budynek w zabudowie bliźniaczej z częścią usługowo-produkcyjną o łącznej powierzchni ok. 290 m², położony w Warszawie - Rembertowie, przy ul. Działyńczyków. Obie części są obecnie przeznaczone na wynajem, co czyni nieruchomość atrakcyjną nie tylko dla osób prywatnych, ale tak...

Zobacz ogłoszenie