Nieruchomość komercyjna na sprzedaż bez pośredników
ul. Wałuszewska Warszawa Białołęka Dworska

NOWA OFERTA
Lokal Warszawa Białołęka Dworska, ul. Wałuszewska. Zdjęcie 1

Nieruchomość komercyjna na sprzedaż bez pośredników Warszawa Białołęka Dworska ul. Wałuszewska

1 790 000
10 407 zł/m²
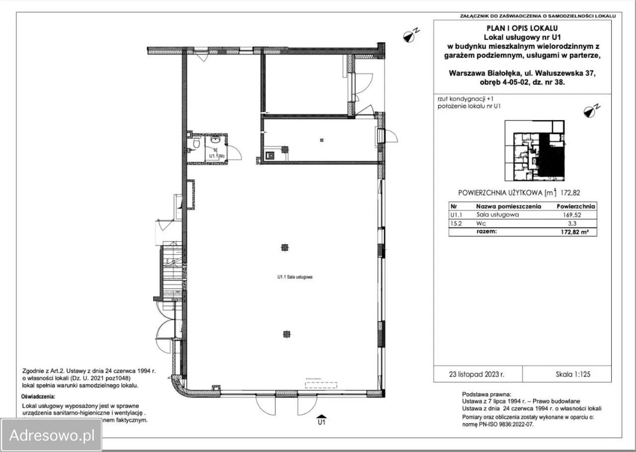
172
Warszawa Białołęka Dworska, Wałuszewska - lokalizacja przybliżona
Bezpośrednio od właściciela

Jeśli nie potrzebujesz pośrednika, zaoszczędzisz około 53 700 zł. Potrzebujesz wsparcia? Skorzystaj z pomocy agenta.

Opis nieruchomości

Na sprzedaż lokal usługowy w kameralnym budynku, położonym w zielonej i spokojnej części Warszawy - przy ul. Wałuszewskiej w dzielnicy Białołęka Dworska.

Nieruchomość znajduje się w niskiej zabudowie, charakterystycznej dla tej części miasta. Okolica zabudowana jest głównie domami jednorodzinnymi oraz niewielkimi budynkami wielorodzinnymi, co zapewnia kameralny charakter i dużą prywatność mieszkańców.

Budynek położony jest przy asfaltowej ulicy z chodnikiem i pełną infrastrukturą miejską. W pobliżu znajdują się miejsca parkingowe oraz tereny zielone, sprzyjające rekreacji i codziennemu wypoczynkowi.

Jednym z największych atutów nieruchomości jest doskonała lokalizacja, łącząca ciszę podmiejskiej zabudowy z szybkim dostępem do centrum Warszawy.

W najbliższej okolicy znajdują się:
- przystanki autobusowe z bezpośrednim dojazdem do innych części miasta
- stacja kolejowa Warszawa Płudy, umożliwiająca szybki dojazd do centrum Warszawy
- szkoły, przedszkola oraz punkty usługowe
- sklepy spożywcze i lokalna infrastruktura handlowa
- ścieżki spacerowe i rowerowe

Lokal jest w stanie deweloperskim - można go dostosować do własnych potrzeb.

Lokal spełnia wymogi budowlane do prowadzenia działalności o różnym charakterze, w tym gastronomii.

Uchwała wspólnoty przewiduje również koncesję na alkohol.

Przed lokalem jest 8 miejsc parkingowych.

Nie czekaj - zadzwoń!

Zapraszam do kontaktu
Natalia Twardziak

  • Oferta z rynku pierwotnego
  • ul. Wałuszewska, Warszawa Białołęka Dworska  
  • Na sprzedaż lokal o powierzchni 172 m²  
  • Oferta bezpośrednio od właściciela dodana dodana dzisiaj
Ta nieruchomość może być Twoja od.. sprawdź
358000 zł (20%) Okres spłaty: 30 lat

Podobne nieruchomości komercyjne na sprzedaż

9
Lokal Warszawa Śródmieście, ul. Mariensztat

1 815 000

40

Na sprzedaż lokal użytkowy, około 40 m2, w wyjątkowej okolicy, ul. Mariensztat. Usytuowany w centralnej części rynku, na parterze. Składa się z dwóch pomieszczeń z niewielką różnicą poziomów, na całej szerokości budynku. Wejście do lokalu z dwóch stron budynku: • I poziom (20 m2): od frontu z dużą ...

Zobacz ogłoszenie
9
Lokal Warszawa Śródmieście, al. Wyzwolenia

1 800 001

37

Oferuję na sprzedaż atrakcyjny lokal usługowo-handlowy położony w jednej z najbardziej prestiżowych i rozpoznawalnych lokalizacji Warszawy — przy Al. Wyzwolenia, tuż obok Placu Zbawiciela. Lokal usytuowany jest w pasażu lokali o zróżnicowanym profilu usługowym, co gwarantuje duży przepływ potencjaln...

Zobacz ogłoszenie
2
Lokal Warszawa Targówek

1 790 000

300

Do sprzedania inwestycyjny dom blisko metra Kondratowicza. Bardzo duży potencjał aranżacyjny. Wcześniej była tu: - apteka, - hostel, - biura, - mieszkania. Masz inny pomysł? Nie znajdziesz lepszego obiektu w takiej korzystnej cenie i lokalizacji! Ewentualnie rozważę wejście w kooperację, gdzie po...

Zobacz ogłoszenie
4
Lokal Warszawa Młociny, ul. Sokratesa

1 750 000

61

Sprzedam lokal usługowy na ulicy Sokratesa, 300 m od Metra Młociny w idealnym stanie, 61,5m2, klimatyzacja, pełne wykończenie wnętrza, rok budowy 2019. Możliwa działalność gastronomiczna. Do lokalu przynależą dwa miejsca parkingowe na parkingu podziemnym i dwie komórki lokatorskie, płatne dodatkowo...

Zobacz ogłoszenie
20
Biuro Warszawa Śródmieście, ul. Złota

1 818 181

93

Oferujemy na sprzedaż mieszkanie o powierzchni 93,31 m², położone na drugim piętrze budynku z 1937 roku, zlokalizowane przy ul. Złotej 7 w Warszawie. Lokal składa się z czterech pokoi, oddzielnej kuchni, łazienki oraz przedpokoju. Odrębna własność z założoną księgą wieczystą. GŁÓWNE CECHY NIERUCH...

Zobacz ogłoszenie
2
Lokal Warszawa Śródmieście, pl. Teatralny

zapytaj

310

Lokal gastronomiczny: 310 mkw przy Plac Teatralnym, w pełni wyposażony i funkcjonujący od wielu lat pod rozpoznawalną marką. Okazja wyjątkowa, bo w tej lokalizacji znalezienie lokalu na restaurację jest najtrudniej w Warszawie. Lokal bardzo dobrze prosperujący i zyskowny. Właściciele po wieloletni...

Zobacz ogłoszenie