Nieruchomość komercyjna na sprzedaż bez pośredników
ul. Pogodna Swarzędz

Lokal Swarzędz, ul. Pogodna. Zdjęcie 1

Nieruchomość komercyjna na sprzedaż bez pośredników Swarzędz ul. Pogodna

1 300 000
9 028 zł/m²
144
Swarzędz, Pogodna - lokalizacja przybliżona
Bezpośrednio od właściciela

Jeśli nie potrzebujesz pośrednika, zaoszczędzisz około 39 000 zł. Potrzebujesz wsparcia? Skorzystaj z pomocy agenta.

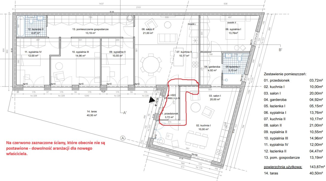
Na sprzedaż budynek parterowy wolnostojący o powierzchni 144m2 zlokalizowany w Swarzędzu przy ul. Pogodnej na działce o powierzchni 625m2. Jego układ świetnie sprawdzi się pod działalność gospodarczą.

Ogrzewanie podłogowe na całej powierzchni, pompa ciepła, fotowoltaika, izolacja termiczna dachu 40cm, izolacja termiczna ścian 25 cm - front (styropian), 15cm - pozostałe ściany (wełna mineralna), okna marki Petecki na 7 komorowym profilu Veka Voftline 82MD z 3 uszczelkami, roletami w warstwie izolacji. Budynek spełnia rygorystyczne normy energetyczne.
Zastosowane rozwiązania dają nowemu właścicielowi ogrom możliwości.

Budynek może funkcjonować jako tradycyjny dom jednorodzinny lub można w nim wydzielić dwa niezależne mieszkania. Dzięki braku przeszkód w postaci schodów oraz szerokim otworom drzwiowym (szerokość wszystkich drzwi w świetle - 90cm) świetnie sprawdzi się dla osób starszych, a także z niepełnosprawnościami. Jest to również ciekawa propozycja dla wszystkich, którzy myślą o czerpaniu pasywnego dochodu z najmu. Działalność gospodarcza - jak najbardziej.

Dom sprzedawany w stanie deweloperskim podwyższonym - na ścianach i sufitach gładzie q4, dwukrotne malowanie na biało, zamontowane gniazda elektryczne i włączniki świateł.

Okolica spokojna, pełna infrastruktura. Dojazd do Ronda Śródka od momentu wyjścia z domu zajmuje komunikacją miejską tylko 30 minut.
Na działce zdecydowaliśmy się zostawić drzewo orzecha włoskiego oraz piękną magnolię, którą możemy podziwiać z ogromnego okna w salonie :)

Zapraszam na prezentację.
Arkadiusz Kaniewski

Oferta bezpośrednia
tel. [numer]

  • ul. Pogodna, Swarzędz, powiat poznański  
  • Na sprzedaż lokal o powierzchni 144 m²  
  • Cena do negocjacji  
  • Oferta bezpośrednio od właściciela dodana ponad miesiąc temu i zaktualizowana ponad tydzień temu
Ta nieruchomość może być Twoja od.. sprawdź
260000 zł (20%) Okres spłaty: 30 lat

Podobne nieruchomości komercyjne na sprzedaż

8
Hala/magazyn Tulce, ul. Leśna

1 400 000

800

Witam, Mam do sprzedania budynek warsztatowo-magazynowy położony w miejscowości Tulce ulica Leśna 8 (powiat poznański) o powierzchni około 450 m2 na działce około 800 m2. Budynek cały czas jest eksploatowany jako zakład stolarski, został wybudowany w latach 1993-94, a w roku 2014 został przeprowad...

Zobacz ogłoszenie
5
Lokal Dymaczewo Nowe

1 000 000

3000

Sprzedam lokal handlowy w Dymaczewie Nowym + dom + zabudowania gospodarcze łącznie 3000m2 w lokalu handlowym jest możliwość rozbudowy. Więcej informacji udzielam telefonicznie 

Zobacz ogłoszenie
5
Lokal Swarzędz Nowa Wieś, os. Edwarda Raczyńskiego

999 999

112

⸻ Na sprzedaż lokal użytkowy 112 m² – Swarzędz pod Poznaniem Oferuję na sprzedaż lokal użytkowy o powierzchni 112 m², położony w spokojnej i cichej części Swarzędza, tuż pod Poznaniem. Dotychczas funkcjonowała tu apteka – układ pomieszczeń został wykonany zgodnie z obowiązującymi wytycznymi dla t...

Zobacz ogłoszenie
5
Hala/magazyn Czapury, ul. Spokojna

1 680 000

598

Sprzedam działkę przemysłową o powierzchni 3000 mkw. z halą produkcyjno-magazynową 300 mkw. biurem oraz zapleczem socjalnym 80 mkw. Na piętrach znajdują się 3 mieszkania 66 , 44 , 32 mkw. W osobnej zabudowie jest budynek mieszkalny z 2 mieszkaniami po 38 mkw. Wszystkie mieszkania są aktualnie wynajm...

Zobacz ogłoszenie
19
Lokal Mosina, ul. Sowiniecka

1 000 000

320

Budynek zlokalizowany przy ul. Sowinieckiej w Mosinie, w samym centrum miasta. Budynek został zbudowany w 2006 roku z cegły szczelinowej. Działka ma 420m² i jest w całości utwardzona kostką brukową z wydzielonymi miejscami parkingowymi. Parter budynku przez ostatnie lata był wykorzystywany jako  sk...

Zobacz ogłoszenie
1
Lokal Murowana Goślina, ul. Nowy Rynek

1 200 000

247

Sprzedam lokal usługowy w Murowanej Góśnie, zlokalizowany przy rynku na os. Zielone Wzgórze. Lokal o powierzchni 247m² z wejściem od ulicy dla klientów oraz rampą dostawczą od zaplecza. Aktualny rozkład pomieszczeń obejmuje salę sprzedaży (120m²), dwie komory chłodnicze, magazyny, biuro oraz pomiesz...

Zobacz ogłoszenie