Ogłoszenie usunięte

Oława
ul. Jana Kasprowicza
3-pokojowe mieszkanie na sprzedaż

Oława · 345 000 zł
Mieszkanie 3-pokojowe Oława, ul. Jana Kasprowicza. Zdjęcie 1
Mieszkanie 3-pokojowe Oława, ul. Jana Kasprowicza. Zdjęcie 1

FOR ENGLISH PLEASE CALL OR LEAVE AN INQUIRY
Na sprzedaż TANIE 3 pokojowe mieszkanie położone 10min pieszo od Rynku w Oławie, zaraz przy Termach Jakuba
LOKALIZACJA:
Mieszkanie położone na 1 piętrze, w ocieplonym bloku w samym centrum Oławy. W promieniu 10min pieszo:

Rynek i Ratusz,
park wodny Termy Jakuba,
liczne restauracje i bary,
sklepy i supermarkety, apteki, przychodnia - cała niezbędna infrastruktura,
dworzec PKP, dworzec PKS
Park Miejski,
szkoła, przedszkole

MIESZKANIE:

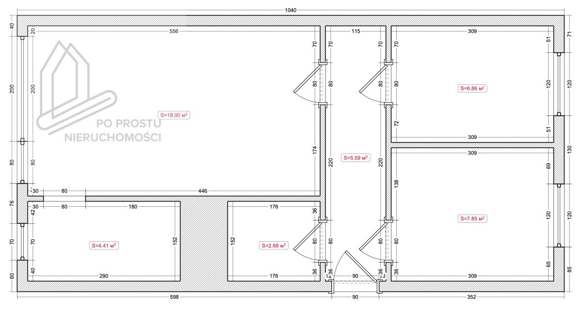
mieszkanie wymaga generalnego remontu,
wszystkie ściany wewnętrzne są działowe więc obecny układ można dowolnie zmienić,
3 osobne, rozkładowe pokoje i kuchnia z możliwością stworzenia salonu z aneksem,
mieszkanie dwustronne i słoneczne,
do mieszkania przynależy piwnica.

SZCZEGÓŁY:

media z sieci miejskiej - czynsz 300zł/msc,
oferta na wyłączność
dostępne od zaraz

Zapraszam do kontaktu celem umówienia prezentacji.
Michał Pruciak
Ekspert ds. Nieruchomości
Nr licencji: 26941
tel. [numer]
POMOC W SPRZEDAŻY NIERUCHOMOŚCI
Skutecznie pomogę w sprzedaży nieruchomości uzyskując uczciwą cenę i pozyskując pewnych, sprawdzonych kupców.
DORADZTWO KREDYTOWE
Jeśli wspomagasz się kredytem w zakupie mieszkania, służę profesjonalną pomocą doświadczonego agenta kredytowego.
WYKOŃCZENIE
Współpracuję z firmami wykończeniowymi, które wykonają dla Ciebie usługę wykończenia lokalu w dowolnym zakresie.

  • Na sprzedaż mieszkanie 3-pokojowe o powierzchni 46,80 m²
  • 1 piętro w 4-piętrowym bloku z 1970 roku
  • Oława, ul. Jana Kasprowicza
  • Odrębna własność z księgą wieczystą
  • Ogłoszenie biura nieruchomości  Właściciel postanowił powierzyć ofertę agencji nieruchomości.
ponad miesiąc temu
1
Mieszkanie 2-pokojowe Oława, ul. Bolesława Chrobrego

Oława ul. Bolesława Chrobrego Mieszkanie na sprzedaż

2 pokoje 46 4 piętro Bez pośrednika
359 000
7 804 zł / m²
wczoraj
8
Mieszkanie 2-pokojowe Oława

Oława Mieszkanie na sprzedaż

2 pokoje 35 4 piętro Bez pośrednika
356 000
10 171 zł / m²
ponad miesiąc temu
5
Mieszkanie 4-pokojowe Oława, ul. ks. Prałata Jana Janowskiego

Oława ul. ks. Prałata Jana Janowskiego Mieszkanie na sprzedaż

4 pokoje 37 parter Bez pośrednika
380 000
10 270 zł / m²
ponad miesiąc temu
9
Mieszkanie 2-pokojowe Oława

Oława Mieszkanie na sprzedaż

2 pokoje 41 2 piętro
309 000
7 592 zł / m²
ponad miesiąc temu
6
Mieszkanie 3-pokojowe Oława

Oława Mieszkanie na sprzedaż

3 pokoje 57 parter Bez pośrednika
370 000
6 491 zł / m²
ponad miesiąc temu
9
Mieszkanie 2-pokojowe Oława, ul. Brzeska

Oława ul. Brzeska Mieszkanie na sprzedaż

2 pokoje 57 2 piętro Bez pośrednika
363 000
6 368 zł / m²