Dom na sprzedaż bez pośredników
ul. Potokowa Banino

bliźniak, 4 pokoje Banino, ul. Potokowa. Zdjęcie 1

Dom na sprzedaż bez pośredników Banino ul. Potokowa

1 450 000
10 439 zł/m²
138
4 pok.
Banino, Potokowa - lokalizacja przybliżona
Bezpośrednio od właściciela

Jeśli nie potrzebujesz pośrednika, zaoszczędzisz około 43 500 zł. Potrzebujesz wsparcia? Skorzystaj z pomocy agenta.

Dom w zabudowie bliźniaczej usytuowany na działce o powietrzni 432,5m2. Powierzchnia użytkowa domu to 138,9m2, a pow. całkowita po podłodze 145,1m2. Wybudowany w 2013 r. Posesja ogrodzona z brama automatyczna na pilota, zagospodarowane są na miejsca postojowe po za garażem. Ogrzewanie gazowe - piec dwufunkcyjny De Dietrich z zasobnikiem wody, rozbudowana elektronika steruje osobna podłogówkami na parterze oraz grzejnikami w sypianiach, łazienka na piętrze wyposażona w ogrzewanie podłogowe oraz grzejnik.. Dodatkowo zamontowany jest kominek z rozprowadzeniem ciepłego powietrza do każdego pomieszczenia. Dom wyposażony jest w filtry oraz zmiękczacz wody.


PARTER

salon z aneksem kuchennym 44,58m2
toaleta 0,98m2
wiatrołap 3,79m2
garaż 17,80m2
pomieszczenie gospodarcze 5,79m2


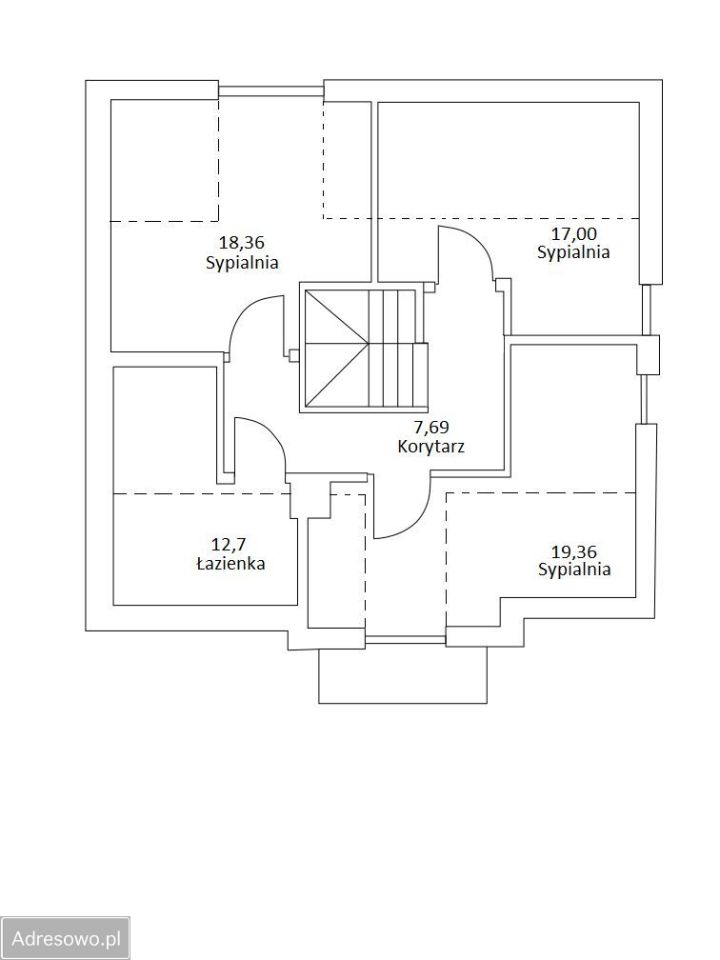
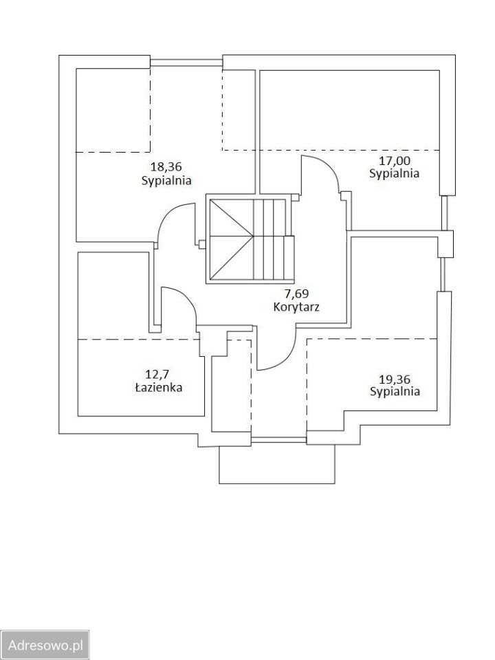
PIĘTRO

sypialnia 18,36m2
sypialnia 17,00m2
sypilania 19,36m2
łazienka 12,70m2
korytarz 7,69m2

Ponadto w domu mamy strych o powierzchni podłogi 33,8m2, wysokość do kalenicy 1,85m.


Dom w bardzo dobrym stanie wykończony wysokiej jakości materiałami, gotowy do wprowadzenia bez nakładów finansowych. Zamontowany jest system monitoringu dookoła domu z możliwością podglądu na żywo oraz system alarmowy z powiadamianiem SMS. Internet doprowadzony do domu światłowodem.

Ogród został zaaranżowany tak aby nie wymagał dużego nakładu pracy, dlatego też zamontowana została kosiarka samojezdna firmy Husqvarna. Duży taras z kostki zapewni nam miejsce do wypoczynku.

Osiedle położone w cichej, kameralnej cześci Banina. Bliskość szkoły oraz przedszkoli. Przystanek autobusu 126 oraz Z02 (którym dojedziemy do przystanku PKM) znajduje się 1km od naszego domu.
Do centrum Gdańska dojazd zajmuje 25min.


Idealna lokalizacja dla osób chcących odpocząć od miejskiego zgiełku.

Dom dostepny od zaraz. 

Oferta prywatna.


Informacja dla biur nieruchomości - mam już swojego agenta.

  • ul. Potokowa, Banino, gmina Żukowo, powiat kartuski  
  • Na sprzedaż bliźniak o powierzchni 138,90 m², 4 pokoje wybudowany w 2013 roku
  • Sizing Streamline Icon: https://streamlinehq.com
    Działka 433 m²  
  • Budynek w stanie do zamieszkania, z aneksem kuchennym  
  • Taras, garaż  
  • Ogrzewanie gazowe
  • Materiał budowy beton komórkowy
  • Dach dachówka
  • Dojazd utwardzony
  • Ogrodzenie metalowe
  • Media woda, kanalizacja, prąd, gaz
  • Świadectwo Energetyczne  
  • Oferta bezpośrednio od właściciela dodana ponad miesiąc temu i zaktualizowana ponad tydzień temu
Ta nieruchomość może być Twoja od.. sprawdź
290000 zł (20%) Okres spłaty: 30 lat

Podobne domy na sprzedaż

19
bliźniak, 5 pokoi Banino, ul. Cynamonowa

1 480 000

146

5 pok.

Szukałeś domu gotowego do zamieszkania? Na sprzedaż przestronny i funkcjonalny dom, urządzony w nowoczesnym stylu z dbałością o szczegóły, wykończony z wysokiej jakości materiałów. Powierzchnia całkowita nieruchomości to 145,6m2 + dodatkowa przestrzeń na poddaszu o powierzchni 53m2. Dom usytuowany ...

Zobacz ogłoszenie
10
dom wolnostojący, 6 pokoi Banino

1 490 000

155

6 pok.

Działka z bezpośrednim dostępem do drogi asfaltowej! Na sprzedaż wyjątkowy dom wolnostojący o powierzchni użytkowej 155 m², położony na dużej działce - 800 m² w spokojnej i zielonej części Banina. Dom został wybudowany dla siebie, nie na sprzedaż, z wysokiej jakości materiałów i nowoczesnych rozwią...

Zobacz ogłoszenie
20
bliźniak, 6 pokoi Banino, ul. Sezamkowa

1 700 000

149

6 pok.

Na sprzedaż lub najem budynek mieszkalny jednorodzinny w zabudowie bliźniaczej. Budynek jest gotowy do użytkowania od zaraz. Dom wykończono w wysokim standardzie wykończenia. Dom jest umeblowany, kuchnia z pełnym wyposażeniem.

Zobacz ogłoszenie
20
dom szeregowy, 5 pokoi Banino, ul. Imbirowa

1 290 000

138

5 pok.

Wyjątkowy dom w zabudowie szeregowej o powierzchni 138 m², położony na kameralnym Osiedlu Familijnym w Baninie, w strefie cichej. Idealny dla rodziny szukającej komfortu i spokoju. Na parterze znajduje się przestronny salon z jadalnią, kominkiem oraz wyjściem na piękny, słoneczny ogród o powierzchn...

Zobacz ogłoszenie
12
dom szeregowy, 4 pokoje Banino, ul. Halna

1 222 000

111

4 pok.

IDEALNY DOM DLA RODZINY - z Garażem, Poddaszem i Klimatyzacją, GOTOWY DO ZAMIESZKANIA! - Powierzchnia: 95 m² (Użytkowa) + 35 m² zagospodarowane Poddasze (po podłodze) + Garaż 16,2 m². - Działka: 253 m² z dużym, słonecznym ogrodem. - Stan: Gotowy do wprowadzenia (wysoki standard, nie wymaga wkładu f...

Zobacz ogłoszenie
27
bliźniak, 5 pokoi Banino, ul. Kasztanowa

1 159 000

102

5 pok.

Na sprzedaż przestronny dom z ogrodem, wiatą na samochód i dodatkowymi miejscami parkingowymi przed domem - idealny dla rodziny! Jeśli marzysz o wygodnym, nowoczesnym domu z własnym ogrodem, w spokojnej i przyjaznej okolicy, a jednocześnie blisko infrastruktury handlowo-usługowej - ta oferta jest wł...

Zobacz ogłoszenie