Dom na sprzedaż bez pośredników
ul. Imbirowa Banino

dom szeregowy, 5 pokoi Banino, ul. Imbirowa. Zdjęcie 1

Dom na sprzedaż bez pośredników Banino ul. Imbirowa

1 290 000
9 348 zł/m²
138
5 pok.
Banino, Imbirowa - lokalizacja przybliżona
Bezpośrednio od właściciela

Jeśli nie potrzebujesz pośrednika, zaoszczędzisz około 38 700 zł. Potrzebujesz wsparcia? Skorzystaj z pomocy agenta.

Wyjątkowy dom w zabudowie szeregowej o powierzchni 138 m², położony na kameralnym Osiedlu Familijnym w Baninie, w strefie cichej. Idealny dla rodziny szukającej komfortu i spokoju.

Na parterze znajduje się przestronny salon z jadalnią, kominkiem oraz wyjściem na piękny, słoneczny ogród o powierzchni 231 m². Dodatkowo na parterze znajduje się w pełni wyposażona kuchnia oraz łazienka z prysznicem. Na piętrze znajdują się aż 4 przestronne sypialnie, a także komfortowa łazienka z wanną.

Nieruchomość wyróżnia się doskonale zaprojektowanym, w pełni zagospodarowanym ogrodem, który zapewnia prywatność i relaks dzięki wysokim nasadzeniom, stylowej pergoli z winoroślą i systemowi oświetlenia. Idealna propozycja dla osób ceniących spokojną lokalizację, a jednocześnie szybki dojazd do Gdańska, Sopotu i Gdyni.

Dom dostępny do zamieszkania od 01.06.2025

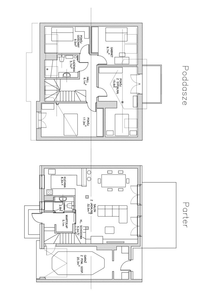
Opis pomieszczeń:

PARTER: Ogrzewanie podłogowe (na podłodze gres)

- Salon z jadalnią o pow. 32.5 m2

- wyjście na taras od strony południowo-zachodniej

- kominek opalany drewnem z grawitacyjnym rozprowadzeniem ciepła na poddasze

- dwoje podwójnych drzwi tarasowe

- Taras z pięknym ogrodem o powierzchni 231 m2

- Kuchnia o pow. 8.3 m2 (w pełni wyposażona w sprzęt AGD)

- Łazienka o pow. 2.8 m2 (kabina prysznicowa)

- Wiatrołap o pow. 5.1 m2

- Klatka schodowa 5.2 m2

- Garaż z pomieszczeniem gospodarczym o pow. 20,3 m2 (centralne ogrzewanie, gres)

- Ogród od strony wejścia do posesji 56 m2



PODDASZE: Centralne ogrzewanie (na podłodze panele)

- Korytarz o pow. 6.1 m2

- Sypialnia o pow. 15.6 m2 - z balkonem z widokiem na ogród

- Sypialnia o pow. 17.3 m2

- Sypialnia/gabinet o pow. 9.7 m2

- Sypialnia/pokój gościnny o pow. 9.5 m2

- Łazienka o pow. 5.7 m2 (wanna, terakota)


STRYCH: Dach ocieplony wełną mineralną. Dodatkowe okno dachowe.

Cały dom wyposażony jest w antywłamaniowy system ostrzegania z powiadomieniem.

Ogród został zmeliorowany i wyposażony w system monitorowania poziomu wody opadowej, dzięki czemu nie ma obaw o skutki intensywnych deszczy. W ogrodzie znajdują się liczne nasadzenia drzew (wiąz, brzoza, wierzba, metasekwoja, modrzew, cis, tuja), krzewów i kwiatów (winorośl, lawenda, azalie, róże, krwawnica, berberys, żurawki, funkie, hortensje, konwalie). Klomby wyłożone są agrowłókniną oraz grysem ozdobnym. W rogu ogrodu znajduje się kącik wypoczynkowy z pergolą obsadzoną winoroślą. Ogród wyposażony jest w system oświetlenia z iluminacją świetlną. Wysokie obsadzenia obrzeży ogrodu zapewniają pełną prywatność oraz komfort wypoczynku.

Lokalizacja domu zapewnia łatwy dojazd do obwodnicy trójmiejskiej (10 km), lotniska (ok. 12 km), Gdańska (ok. 10 km) oraz Gdyni (ok. 24 km). Dom znajduje się w strefie cichej - mimo bliskości lotniska panuje tutaj cisza.

Dom jest podłączony do miejskiej sieci kanalizacyjnej, co eliminuje potrzebę korzystania z szamba.

W Baninie znajduje się centrum handlowe Skwer Banino z restauracjami, barami, licznymi sklepami oraz punktami usługowymi. W bezpośrednim sąsiedztwie centrum zlokalizowane są sklepy: Biedronka, Lidl, Max Xavier, Polo Market, Rossmann, Pepco. W Baninie funkcjonują przychodnie lekarskie oraz dwie szkoły podstawowe.

200 m od posesji znajduje się przystanek autobusowy. Bezpłatna komunikacja autobusowa zapewnia wygodny dojazd do centrum Banina oraz na centrum przesiadkowe Gdańsk–Rębiechowo, skąd pociągami PKM można dojechać do Gdańska, Gdyni, Kartuz oraz Kościerzyny. Z Banina do Gdańska kursuje również autobus miejski ZTM Gdańsk.

Wszystkie drogi osiedlowe wyłożone są kostką brukową. Właśnie budowana jest nawierzchnia asfaltowej na drodze dojazdowa do osiedla od ulicy Pszennej.

W razie jakichkolwiek pytań zapraszam serdecznie do kontaktu.

  • ul. Imbirowa, Banino, gmina Żukowo, powiat kartuski  
  • Na sprzedaż dom szeregowy o powierzchni 138 m², 5 pokoi wybudowany w 2016 roku
  • Sizing Streamline Icon: https://streamlinehq.com
    Działka 330 m²  
  • Budynek z poddaszem użytkowym, w stanie do zamieszkania, z aneksem kuchennym  
  • Taras, bez piwnicy, garaż  
  • Ogrzewanie gazowe
  • Materiał budowy pustak
  • Dach dachówka
  • Okna plastikowe
  • Dojazd utwardzony
  • Ogrodzenie inne
  • Media woda, kanalizacja, prąd, gaz
  • Wyposażenie telewizor, internet, pralka, lodówka, kuchenka, piekarnik, zmywarka, mikrofalówka
  • Cena do negocjacji  
  • Świadectwo Energetyczne SCHE/****/***/2015 EU: 79.14, EK: 116.43, EP: 104.65, Jednostkowa wielkość emisji: 0.03
  • Oferta bezpośrednio od właściciela dodana ponad miesiąc temu i zaktualizowana ponad tydzień temu
Ta nieruchomość może być Twoja od.. sprawdź
258000 zł (20%) Okres spłaty: 30 lat

Podobne domy na sprzedaż

10
dom wolnostojący, 6 pokoi Banino

1 490 000

155

6 pok.

Działka z bezpośrednim dostępem do drogi asfaltowej! Na sprzedaż wyjątkowy dom wolnostojący o powierzchni użytkowej 155 m², położony na dużej działce - 800 m² w spokojnej i zielonej części Banina. Dom został wybudowany dla siebie, nie na sprzedaż, z wysokiej jakości materiałów i nowoczesnych rozwią...

Zobacz ogłoszenie
19
bliźniak, 4 pokoje Banino, ul. Potokowa

1 450 000

138

4 pok.

Dom w zabudowie bliźniaczej usytuowany na działce o powietrzni 432,5m2. Powierzchnia użytkowa domu to 138,9m2, a pow. całkowita po podłodze 145,1m2. Wybudowany w 2013 r. Posesja ogrodzona z brama automatyczna na pilota, zagospodarowane są na miejsca postojowe po za garażem. Ogrzewanie gazowe - piec ...

Zobacz ogłoszenie
12
dom szeregowy, 4 pokoje Banino, ul. Halna

1 222 000

111

4 pok.

IDEALNY DOM DLA RODZINY - z Garażem, Poddaszem i Klimatyzacją, GOTOWY DO ZAMIESZKANIA! - Powierzchnia: 95 m² (Użytkowa) + 35 m² zagospodarowane Poddasze (po podłodze) + Garaż 16,2 m². - Działka: 253 m² z dużym, słonecznym ogrodem. - Stan: Gotowy do wprowadzenia (wysoki standard, nie wymaga wkładu f...

Zobacz ogłoszenie
19
bliźniak, 5 pokoi Banino, ul. Cynamonowa

1 480 000

146

5 pok.

Szukałeś domu gotowego do zamieszkania? Na sprzedaż przestronny i funkcjonalny dom, urządzony w nowoczesnym stylu z dbałością o szczegóły, wykończony z wysokiej jakości materiałów. Powierzchnia całkowita nieruchomości to 145,6m2 + dodatkowa przestrzeń na poddaszu o powierzchni 53m2. Dom usytuowany ...

Zobacz ogłoszenie
27
bliźniak, 5 pokoi Banino, ul. Kasztanowa

1 159 000

102

5 pok.

Na sprzedaż przestronny dom z ogrodem, wiatą na samochód i dodatkowymi miejscami parkingowymi przed domem - idealny dla rodziny! Jeśli marzysz o wygodnym, nowoczesnym domu z własnym ogrodem, w spokojnej i przyjaznej okolicy, a jednocześnie blisko infrastruktury handlowo-usługowej - ta oferta jest wł...

Zobacz ogłoszenie
23
dom szeregowy, 4 pokoje Banino

950 000

109

4 pok.

DO SPRZEDANIA DOM W ZABUDOWIE SZEREGOWEJ 4 POKOJE Z PIĘKNYM OGRODEM I FOTOWOLTAIKĄ - BANINO! LOKALIZACJA: Nieruchomość położona jest w Baninie – dynamicznie rozwijającej się miejscowości, która oferuje pełną wygodę codziennego życia. W najbliższym otoczeniu znajduje się doskonale rozwinięta infrast...

Zobacz ogłoszenie