Przejdź do wyników wyszukiwania

Domy na sprzedaż Siedlce Najwięcej bez pośredników

Średnia 7 875 zł/m² 23 oferty
Zobacz 23 aktualnych domów na sprzedaż z Siedlec - najwięcej w Polsce bez pośredników. W marcu 2026 najtańsze domy w Siedlcach można kupić za 700 tys zł, a najdroższe za 2.9 mln zł. Średnie ceny domów w ogłoszeniach sprzedaży to 1.3 mln zł, natomiast średnia cena za m² to 7875 zł. Najpopularniejsze dzielnice w Siedlcach to Nowe Siedlce (5 ogłoszeń), Centrum (3 ogłoszenia), Rozkosz (1 ogłoszenie), Piaski Starowiejskie (1 ogłoszenie).

4
dom wolnostojący Siedlce, ul. Gajowa

790 000

190

Nowe

Dom jest częściowo wykończony. Chętnie odpowiem na dodatkowe pytania telefonicznie.

Zobacz ogłoszenie
8
dom wolnostojący Siedlce, ul. Zachodnia

1 670 000

173

Nowe

Dom jednorodzinny o powierzchni 173m2 na kameralnym osiedlu, na ul. Zachodniej w Siedlcach z zagospodarowaną działką. Parter budynku: - dwustanowiskowy garaż - wiatrołap - WC - salon z wyjściem na taras - otwarta kuchnia - pomieszczenie techniczne Piętro: - 3 sypialnie - 2 łazienki - garderoba - p...

Zobacz ogłoszenie
19
bliźniak, 2 pokoje Siedlce Nowe Siedlce, ul. Jana Henryka Dąbrowskiego

730 000

68

2 pok.

Dom - połowa bliźniaka. Podwòrko z kostką brukową. Garaż na jeden samochòd, konieczne poszerzenie wjazdu i wylanie posadzki. Dom do mniejszego lub większego remontu lub rozbudowy.

Zobacz ogłoszenie

Dodaj ogłoszenie za darmo

3 mln osób szuka z adresowo.pl

Dodaj ogłoszenie
3
dom wolnostojący Siedlce, ul. Sokołowska

2 995 000

480

Dzień dobry, sprzedam budynek usytuowany przy ulicy Sokołowskiej 51 (róg Żytniej) w Siedlcach. Dom posadowiony jest na działce o powierzchni 720m2, powierzchnia domu to około 480m2 w następujących proporcjach: - parter: 192m2 - 1 piętro: 120m2 - 2 piętro: 120m2 - poddasze: 50m2 Na ten moment parter...

Zobacz ogłoszenie
24
dom szeregowy, 5 pokoi Siedlce, ul. Poznańska

1 770 000

296

5 pok.

Oferuję Państwu przestronny segment o wysokim standardzie, bardzo dobrze wyposażony- ul. Poznańska w Siedlcach. Dom położony w sąsiedztwie Zalewu Siedleckiego. Dom o powierzchni 296 m2 usytuowany na działce o powierzchni 219 m2. Nieruchomość oddana do użytkowania w 2000 roku, gotowa do zamieszkani...

Zobacz ogłoszenie
13
dom szeregowy, 6 pokoi Siedlce, ul. Konstantego Ildefonsa Gałczyńskiego

980 000

174

6 pok.

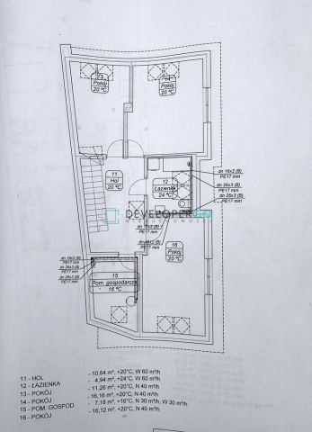
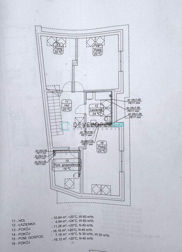
Na sprzedaż nieruchomość położona w Siedlcach, przy ul. Gałczyńskiego. Dom o powierzchni użytkowej 174,40 m2, na działce o powierzchni 261 m2. Rozkład pomieszczeń: - 6 pokoi - 2 łazienki - Kuchnia - Garderoba - Poddasze - Piwnica: Garaż na dwa samochody, trzy pomieszczenia, kotłownia. Działka w p...

Zobacz ogłoszenie
2
bliźniak, 4 pokoje Siedlce Nowe Siedlce, ul. ks. Stanisława Brzóski

1 300 000

122

4 pok.

Nowoczesny dom jednorodzinny pasywny, energooszczędny, posiadający funkcjonalne rozwiązania architektoniczne, rok budowy 2024. Bardzo solidnie wykonany z materiałów klasy premium, zadbano o wszystkie detale i spójność inwestycji. Najlepsza lokalizacja w Siedlcach. Dom wybudowany na osiedlu Nowe Si...

Zobacz ogłoszenie
1
dom wolnostojący, 6 pokoi Siedlce Nowe Siedlce, ul. Władysława Rawicza

2 400 000

250

6 pok.

Nowoczesny dom jednorodzinny pasywny, energooszczędny, posiadający funkcjonalne rozwiązania architektoniczne, rok budowy 2025. Bardzo solidnie wykonany z materiałów klasy premium, zadbano o wszystkie detale i spójność inwestycji. Najlepsza lokalizacja w Siedlcach. Dom wybudowany na osiedlu Nowe Sied...

Zobacz ogłoszenie
6
bliźniak Siedlce, ul. Władysława Broniewskiego

1 100 000

125

Na sprzedaż dom jednorodzinny usytuowany w Siedlcach przy ul. Broniewskiego. Budynek położony jest na działce o powierzchni ok. 300 m2. Nieruchomość idealna dla rodzin z dziećmi, ponieważ bardzo blisko znajdują się przedszkola i szkoła. Jest to miejsce bardzo dobrze skomunikowane - blisko są przysta...

Zobacz ogłoszenie
20
dom szeregowy, 5 pokoi Siedlce, ul. Poziomkowa

1 695 000

153

5 pok.

Wyjątkowy, nowy dom - komfort i natura w jednym miejscu! Lokalizacja: ul. Poziomkowa, Siedlce Kupujący zwolniony z podatku PCC 2%! Na sprzedaż nowoczesny dom jednorodzinny w zabudowie szeregowej o powierzchni 153 m², usytuowany na działce 369 m². Nieruchomość znajduje się w spokojnej, zielonej ok...

Zobacz ogłoszenie
27
dom szeregowy, 5 pokoi Siedlce Piaski Starowiejskie, ul. Piaski Starowiejskie

1 950 000

180

5 pok.

Dom gotowy do wprowadzenia na sprzedaż Siedlce, ul Piaski Starowiejskie Nowoczesny design, idealna lokalizacja. 180 m² perfekcyjnie zaprojektowanej przestrzeni, w której każdy detal ma znaczenie. Z zewnątrz — elegancka, stonowana bryła w zabudowie szeregowej z idealnie utrzymanym ogrodem. W środku...

Zobacz ogłoszenie
10
dom szeregowy Siedlce Centrum, ul. Wiolinowa

1 120 000

220

Sprzedam bezpośrednio segment wraz z działką o powierzchni ok. 300m2. Nieruchomość położona w świetnej lokalizacji w centrum miasta na kameralnym, zamkniętym osiedlu. Wszędzie blisko, nieopodal galeria handlowa. Segment posadowiony na działce o wielkości 217m2. Dodatkowo udział o wielkości 79m2 w dz...

Zobacz ogłoszenie
8
dom szeregowy, 6 pokoi Siedlce, ul. Józefa Ignacego Kraszewskiego

1 179 000

152

6 pok.

Sprzedam skrajny segment przy ul. Kraszewskiego w Siedlcach - stan deweloperski. Powierzchnia domu: 152 mkw Powierzchnia działki: 200 mkw W skład wykończenia domu wchodzą: - media: instalacja elektryczna, instalacja hydrauliczna, instalacja wodno - kanalizacyjna - na parterze ogrzewanie podłogowe ...

Zobacz ogłoszenie
5
dom wolnostojący, 2 pokoje Siedlce Rozkosz, ul. Wilcza

1 000 000

50

2 pok.

Dom do rozbiórki lub poprawek. Drewniak: kuchnia węglowa z wymiennikiem , sypialnia, salon i łazienka. Obłożony cegłą dziurawką i otynkowany. Pokryty blachą. Działka 1400 m kw też jeszcze do sprzedania w całości lub osobno. Krańcowa posesja na zamkniętej ulicy, dobra orientacja, zdrowe podłoże, supe...

Zobacz ogłoszenie
5
dom szeregowy Siedlce, ul. Fabryczna

799 000

170

Na sprzedaż domy w zabudowie szeregowej przy ulicy Fabrycznej w Siedlcach. Powierzchnia budynków: 170 mkw. Inwestycja wykończona do stanu deweloperskiego. Segmenty 3-kondygnacyjne. PARTER: 1.1 Salon + kuchnia - 26,88 m2 1.2 WC - 1,81 m2 1.3 Wiatrołap - 6,56 m2 1.4 Komunikacja - 6,91 m2 1.5 Spiżar...

Zobacz ogłoszenie
7
dom wolnostojący, 6 pokoi Siedlce, ul. Rumiankowa

1 899 000

185

6 pok.

Oferta bezpośrednia, pośrednikom dziękujemy. Dom dwupiętrowy w nowoczesnej zwartej bryle w doskonałej lokalizacji w mieście Siedlce woj. mazowieckie. Powierzchnia użytkowa 185,06 m2, powierzchnia całkowita 291 m2 Nieruchomość położona jest na działce o 888 m2 w kształcie prostokąta. Nieruchomość ce...

Zobacz ogłoszenie
8
dom wolnostojący Siedlce Nowe Siedlce, ul. ks. Stanisława Brzóski

820 000

220

Nieruchomość z dużym terenem zielonym przy ulicy Ks. Stanisława Brzóski Główne atuty nieruchomości: • Cicha spokojna okolica • Piękny widok • Położenie z dala od głównej jezdni ( długi wjazd, sprawia że nie słychać odgłosu z ulicy) • Lokalizacja jest idealna - bliskość sklepów , szpital Wojewódzk...

Zobacz ogłoszenie
9
dom wolnostojący, 5 pokoi Siedlce, ul. Południowa

810 000

110

5 pok.

Tel. bezpośrednio. Siedlce, ul. Południowa. Cena DO NEGOCJACJI: 810.000 zł. Atrakcyjny dom 2-kondygnacyjny z wysokim podpiwniczeniem. Dom z 2 niezależnymi funkcjonalnymi mieszkaniami (na parterze i I piętrze) położony jest na kameralnym, spokojnym osiedlu w otoczeniu zabudowy mieszkaniowej jednorodz...

Zobacz ogłoszenie
22
dom wolnostojący, 8 pokoi Siedlce Nowe Siedlce, ul. Józefa Mireckiego

870 000

228

8 pok.

Posesja usytuowana jest w Siedlcach w dzielnicy willowej Nowe Siedlce. Budynek mieszkalny o kubaturze 527,70 m3 , jednorodzinny , może być też dwu lub 3 trzy rodzinny, posadowiony jest na działce o wymiarze 550 m2. Budynek oddany do użytku w 1984 roku. Powierzchnia mieszkalna 228,00 m2 Konstrukcja ...

Zobacz ogłoszenie
6
dom wolnostojący Siedlce Centrum, ul. gen. Stefana Grota-Roweckiego

1 100 000

206

Sprzedam bezpośrednio komfortowy jednopiętrowy dom z działką w zacisznej części Siedlec nieopodal centrum miasta. Dom może zostać sprzedany w całości lub jako współwłasność sam parter. Nieruchomość została wybudowana w latach 60. z cegły i pustaków, wyposażona w gazowe centralne ogrzewanie. Na parte...

Zobacz ogłoszenie
18
dom wolnostojący, 7 pokoi Siedlce, ul. Jaśminowa

1 700 000

220

7 pok.

Elegancki, przestronny dom zlokalizowany w jednej z najbardziej pożądanych dzielnic Siedlec. Nowoczesne wnętrza, spokojna okolica, a także wysoka jakość wykończenia to jedynie nieliczne atuty tej wyjątkowej nieruchomości. Ergonomiczna działka wyłożona kostką, leżąca na skrzyżowaniu ulic Jaśminowej i...

Zobacz ogłoszenie
2
dom wolnostojący, 5 pokoi Siedlce Centrum, ul. Cypriana Kamila Norwida

700 000

170

5 pok.

Zobacz ogłoszenie
3
bliźniak Siedlce

zapytaj

450

Dom bliźniak wolnostojacy w centrum Siedlec Dom jest dostosowany do prowadzenia działalności

Zobacz ogłoszenie
Oferty z najbliższej okolicy do 10 km
20
dom wolnostojący, 6 pokoi Żelków

1 450 000

242

6 pok.

Idealne miejsce do życia w otoczeniu przyrody, śpiewu ptaków. Oaza spokoju z pięknie zagospodarowaną działką. Dom: Położony w miejscowości Żelków, gmina Skórzec, powiat Siedlce, województwo mazowieckie. Przestronny, piętrowy dom wolnostojący z piwnicą użytkową, rozbudowany w 2016 roku, po generalny...

Zobacz ogłoszenie
8
dom wolnostojący Chodów

890 000

188

Oferuję na sprzedaż dom z działką oraz budynkami gospodarczymi, usytuowany w Chodowie. Rok budowy: 1980. Dom (parter + piętro) o powierzchni 188 m², usytuowany na pięknej działce o powierzchni 2171 m². Działka znajduje się w pierwszej linii zabudowy i posiada staw. W skład nieruchomości wchodzą: -...

Zobacz ogłoszenie
12
dom wolnostojący Topórek

1 390 000

110

Wyobraź sobie poranek. Wstajesz nie do budzika, ale do śpiewu ptaków za oknem. Wchodzisz do jasnej, przestronnej kuchni, nalewasz kawę i wychodzisz na taras. Patrzysz na swój ogród - idealnie skoszony, zielony, pachnący. Nie zrobiłeś tego sam. Zrobił to za Ciebie automat. To jest Twój czas. To jest ...

Zobacz ogłoszenie
20
dom wolnostojący, 4 pokoje Żelków, ul. Wspólna

1 290 000

93

4 pok.

Na sprzedaż nowoczesny dom położony w bardzo spokojnej i zielonej okolicy przy lesie. To propozycja dla rodzin z dziećmi i osób, które cenią sobie naturę i komfort życia. Dom o powierzchni użytkowej 93 m² położony na pięknie zagospodarowanej działce o powierzchni 1103 m², ul. Wspólna. Dom został z...

Zobacz ogłoszenie
6
dom wolnostojący, 3 pokoje Ujrzanów

680 000

100

3 pok.

Sprzedam posesję w Ujrzanowie w gminie Siedlce, przy głównej drodze wiejskiej: - powierzchnia 2361 m², - dom mieszkalny podpiwniczony, z lat 70-tych, - 3 garaże w osobnym budynku, - stodoła murowana, - piwnica betonowa typu ziemianka, - inne budynki gospodarcze, - pełne uzbrojenie terenu.

Zobacz ogłoszenie
11
dom wolnostojący, 6 pokoi Stok Lacki, ul. Siedlecka

1 500 000

180

6 pok.

Witam, do sprzedania dom jednorodzinny wolnostojący z poddaszem. Umiejscowiony w miejscowości Stok Lacki 08-110 Siedlce. Oferta bezpośrednia. Powierzchnia całkowita domu : Powierzchnia całkowita garażu : W domu znajduje się: parter: otwarta kuchnia z salonem łazienka pokój 2 pomieszczenia g...

Zobacz ogłoszenie
20
dom wolnostojący, 5 pokoi Krzymosze

1 599 000

278

5 pok.

Przestronny dom dla 5-cio osobowej rodziny, w cichej, spokojnej okolicy. Lokalizacja: - 50 metrów od furtki przystanek, autobus podmiejski nr 14, super połączenie z Siedlcami. - 3 km do stacji PKP. Dom składa się z: - 4 sypialnie - 1 salon z otwartą kuchnią - 3 łazienki - korytarz - wiatrołap - ga...

Zobacz ogłoszenie
1
dom wolnostojący Strzała

820 000

150

Sprzedam dom w Strzale 1,5 km od Siedlec. Powierzchnia domu 150m2. Powierzchnia działki 3115m2. 2 kondygnacje+garaż i pomieszczenia gospodarcze. Dom do remontu. Obecnie wynajmowany od kilku lat na dłuższy okres. Wysoka stopa zwrotu. Możliwość zamieszkania dwóch niezależnych rodzin . Nie współpracuje...

Zobacz ogłoszenie
20
dom wolnostojący, 6 pokoi Borki Siedleckie

890 000

217

6 pok.

3 wolnostojące domy jednorodzinne, każdy o powierzchni 217m2. Rok budowy 2022.   Obszar Natura 2000 - brak możliwości rozbudowy przemysłowej, co gwarantuje ciszę.   Oferujemy nowoczesne, zbudowane z najlepszych materiałów domy. Inwestycja znajduje się w okolicach lasów, co pozwala prowadzić życ...

Zobacz ogłoszenie
Oferty spełniające kryteria do 20 km
19
dom wolnostojący, 6 pokoi Domanice

690 000

158

6 pok.

Sprzedam dom wraz z lasem w bardzo dobrej lokalizacji w Gminie Domanice. Na miejscu ; bank, przedszkole, kościół, gmina, szkoła podstawowa, sklepy lokalne i supermarkety. Zapraszam do kontaktu

Zobacz ogłoszenie
8
dom wolnostojący Krynka

1 600 000

145

W ofercie: dwukondygnacyjny dom jednorodzinny usytuowany na zacisznej działce z potencjałem inwestycyjnym w branży turystycznej. Dom usytuowany na malowniczej, funkcjonalnie zagospodarowanej działce, oznaczonej w ewidencji gruntów numerem 061105_2.0032.3 o łącznej powierzchni 5 335 m2, w kształcie ...

Zobacz ogłoszenie
1
dom wolnostojący Wólka Konopna

120 000

120

Sprzedam posesję z domem drewnianym. Na działce znajduje się tradycyjna studnia oraz odrębna murowana piwnica. Działka o powierzchni 40 arów. Miejscowość: Wólka Konopna. Do Warszawy około 110 km, blisko A2. Cena do negocjacji.

Zobacz ogłoszenie
8
dom wolnostojący Bojmie

750 000

80

Sprzedam działkę z domem drewnianym całorocznym. Miejscowość Bojmie - bardzo szybki dojazd do Warszawy, Siedlec, Mińska Mazowieckiego. Działka wielkości 4000 m², ogrodzona, z pięknym starodrzewem i młodymi drzewkami owocowymi i ozdobnymi. Zabudowana całorocznym domem drewnianym z bala (ocieplony i ...

Zobacz ogłoszenie
12
dom wolnostojący, 2 pokoje Wojnów

350 000

50

2 pok.

Sprzedam dom wolnostojący położony w miejscowości Wojów, w powiecie siedleckim na działce o powierzchni 1.11 ha (11 100 m2) w bardzo cichej i spokojnej okolicy, nieopodal lasu. Dom został wybudowany w latach 50. Aktualnie jest w stanie do remontu. Na działce znajdują się budynki takie jak: drewniana...

Zobacz ogłoszenie
2
dom wolnostojący Paprotnia

590 000

220

Prezentuję Państwu dom położony w zielonej okolicy, 220 m2, dwukondygnacyjny, na działce 1665 m2 oraz małym budynkiem gospodarczym w centrum miejscowości gminnej Paprotnia, powiat Siedlce. Spokojna wieś położona na wschodzie, na pograniczu Mazowsza i Podlasia. W niedalekiej odległości od większych ...

Zobacz ogłoszenie
15
dom wolnostojący, 5 pokoi Zbuczyn, ul. Północna

587 000

118

5 pok.

# ​Sprzedam Działkę z Domem - Możliwość Dokupienia Dodatkowych 2 Działek     Oferuję atrakcyjną działkę wraz z domem, idealnym dla rodziny szukającej spokoju i przestrzeni do życia, z której dojedziesz od 2025 roku wygodnie do Warszawy w 40 minut po autostradzie A2.    Dom posiada trzy oddzielne kon...

Zobacz ogłoszenie