Dom na sprzedaż bez pośredników
Trzuskołoń  

dom wolnostojący Trzuskołoń. Zdjęcie 1

Dom na sprzedaż bez pośredników Trzuskołoń

750 000
4 564 zł/m²
164
Trzuskołoń - lokalizacja przybliżona
Bezpośrednio od właściciela

Jeśli nie potrzebujesz pośrednika, zaoszczędzisz około 22 500 zł. Potrzebujesz wsparcia? Skorzystaj z pomocy agenta.

Witam.

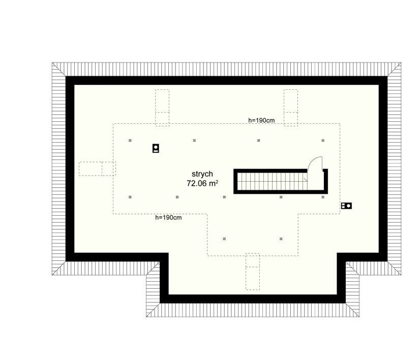
Posiadam na sprzedaż duży dom w miejscowości Trzuskłoń o powierzchni 164,32 m - poddasze 72,06 m.

Dom gotowy do zamieszkania, działka 1130 m, ogrodzona.

Dom do niewielkiego wykończenia - brak dachówki.

Sprzedaż bez pośredników.

Więcej informacji udzielę telefonicznie.

  • Trzuskołoń, gmina Niechanowo, powiat gnieźnieński  
  • Na sprzedaż dom wolnostojący o powierzchni 164,32 m² wybudowany w 2019 roku
  • Sizing Streamline Icon: https://streamlinehq.com
    Działka 1 130 m²  
  • Budynek w stanie do zamieszkania  
  • Dach dachówka
  • Media woda, prąd
  • Oferta bezpośrednio od właściciela dodana ponad miesiąc temu i zaktualizowana 4 dni temu
Ta nieruchomość może być Twoja od.. sprawdź
150000 zł (20%) Okres spłaty: 30 lat

Podobne domy na sprzedaż

11
dom wolnostojący, 4 pokoje Goślinowo

725 000

115

4 pok.

Nowoczesny dom JAŚMIN z działką | Osiedle Diamentowe | od 725 000 zł Na sprzedaż nowoczesny dom jednorodzinny JAŚMIN położony w Goślinowie koło Gniezna, na prestiżowym Osiedlu Diamentowym. Dom wyróżnia się nowoczesną architekturą, połączeniem drewna i grafitowej blachy na rąbek, dużymi przeszkleni...

Zobacz ogłoszenie
8
dom wolnostojący Łubowo

770 000

200

Dom Jednorodzinny w Łubowie, typ kostka, ponad 200m2. - Rok budowy 1980. - Grube ściany (suporex). - Działka łącznie 2376m2. - Budynki gospodarcze ponad 100m2. - Uzbrojenie: prąd, woda, gaz, kanalizacja. - Niski parter i piętro. - Garaż w bryle budynku. - Okna PCV. - Nowe pokrycie dachu, malowanie ...

Zobacz ogłoszenie
1
dom wolnostojący, 4 pokoje Łubowo

750 000

102

4 pok.

Dom na sprzedaż – Łubowo Na sprzedaż dom jednorodzinny wolnostojący o powierzchni 102 m², położony w Łubowie. Planowany termin ukończenia budowy przypada na przełom sierpnia i września. Dom będzie posiadał pełne media: prąd, wodę, gaz oraz kanalizację. W tym roku planowane jest również uruchomieni...

Zobacz ogłoszenie
8
dom letniskowy Skorzęcin

738 000

146

Przedmiotem ogłoszenia jest sprzedaż domku letniskowego typu TRAMP na terenie Ośrodka Wypoczynkowego w Skorzęcinie, przy skrzyżowaniu ul. Stromej i Okrężnej, gmina Witkowo. Zakończenie budowy w 2004 r. Częściowo odnowiony w 2020 r. Pierwotnie budynek składał się z dwóch samodzielnych lokali typu T...

Zobacz ogłoszenie
10
dom wolnostojący, 4 pokoje Niechanowo

759 000

142

4 pok.

Na sprzedaż dom parterowy w zabudowie wolnostojącej, położony w spokojnej i zielonej miejscowości Kędzierzyn gmina Niechanowo . Dom został wybudowany w 2019 roku i wyróżnia się funkcjonalnym układem pomieszczeń, oraz rozwiązaniami, które zapewniają wygodę codziennego użytkowania. Parterowa br...

Zobacz ogłoszenie
14
dom wolnostojący, 5 pokoi Mielno

790 000

124

5 pok.

Na sprzedaż wyjątkowa nieruchomość położona w malowniczej okolicy nad jeziorem Mielno, w niedalekiej odległości od Gniezna oraz drogi S5, co zapewnia doskonałą komunikację z innymi miastami. Ta atrakcyjna oferta obejmuje dom wolnostojący o powierzchni 124 m² oraz dodatkowe budynki gospodarcze o łącz...

Zobacz ogłoszenie