Dom na sprzedaż bez pośredników
Wierzbiczany  

dom wolnostojący, 5 pokoi Wierzbiczany. Zdjęcie 1

Dom na sprzedaż bez pośredników Wierzbiczany

789 000
5 260 zł/m²
150
5 pok.
Wierzbiczany - lokalizacja przybliżona
Bezpośrednio od właściciela

Jeśli nie potrzebujesz pośrednika, zaoszczędzisz około 23 700 zł. Potrzebujesz wsparcia? Skorzystaj z pomocy agenta.

Na sprzedaż dom jednorodzinny wolnostojący (projekt "Jaskółka 5 XL") o powierzchni użytkowej 150 m², zlokalizowany w Wierzbiczanach na działce o powierzchni 1117 m².

Budynek w stanie deweloperskim.
Stolarka, dach w kolorze grafitowym, a elewacja w kolorze białym (możliwość ustalenia elewacji zewnętrznej z kupującym).
Dom stoi przy drodze asfaltowej z chodnikiem. Działka ogrodzona siatką ocynkowaną. Do jeziora Wierzbiczany 1,5 km.

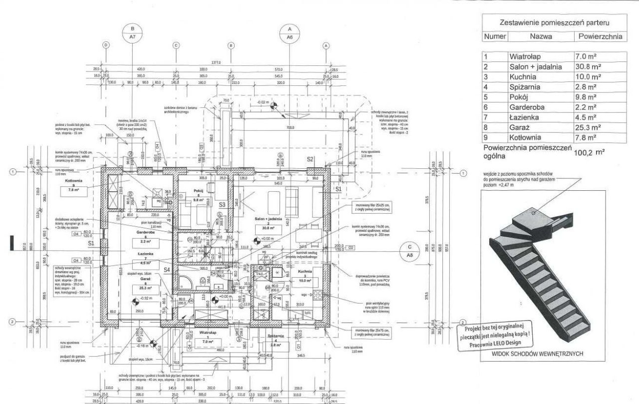
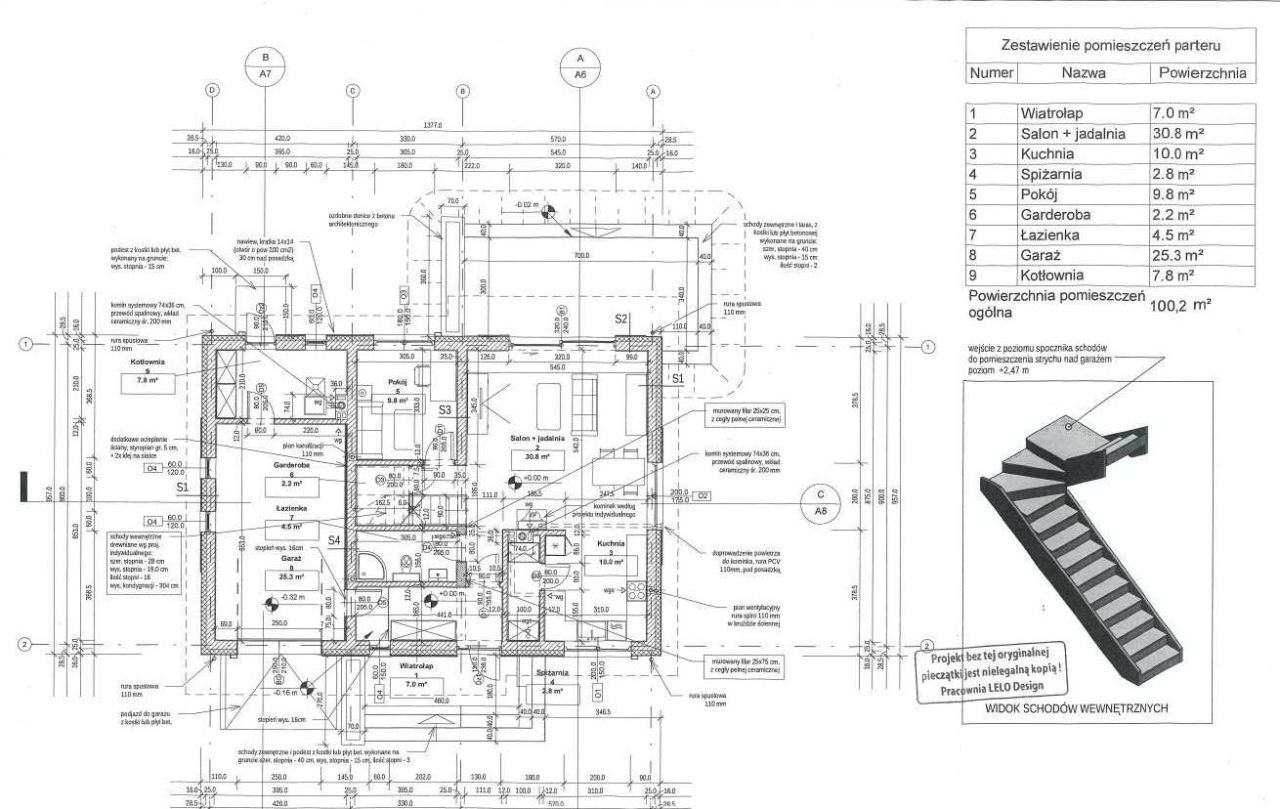
Zestawienie pomieszczeń - parter:
- wiatrołap: 7 m²
- salon + jadalnia: 40,6 m² (pokój zlikwidowany na parterze, możliwość wydzielenia pokoju)
- kuchnia: 10 m²
- spiżarnia: 2,8 m²
- garderoba: 2,2 m²
- łazienka: 4,5 m²
- garaż: 25,3 m²
- kotłownia: 7,8 m²

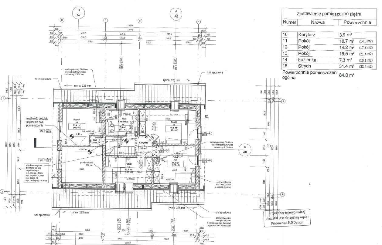
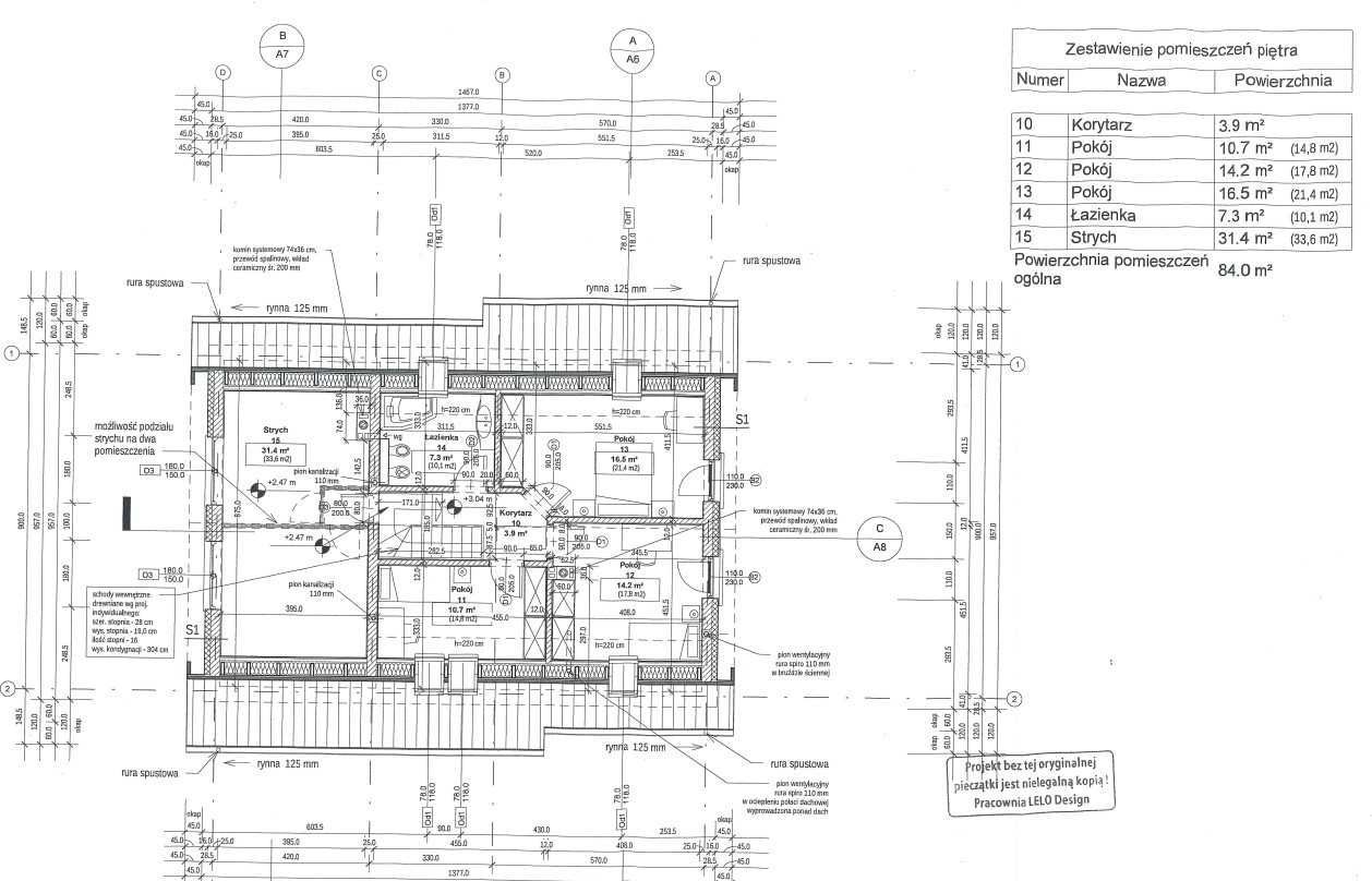
Zestawienie pomieszczeń - piętro:
- korytarz: 6 m²
- pokój: 10,7 m²
- pokój: 14,2 m²
- pokój: 16,5 m²
- łazienka: 7,3 m²
- strych: 31,4 m² (podzielony na 2 pokoje)

Dodatkowo schody na strych (jest podłoga) o powierzchni 40 m².

Budynek ocieplony styropianem grafitowym 15 cm. Brama Hormann. Stolarka okienna 3-szybowa - wszystkie z roletami elektrycznymi (możliwość sterowania oddzielnego góra/dół). Dach wykonany o konstrukcji drewnianej krokwiowo-jętkowej, dachówka ceramiczna. Na parterze podciągi, słupy i ściana łazienki wymurowana ze starej cegły.

Wykonane instalacje:
- elektryczna
- wod-kan
- instalacja CO - ogrzewanie podłogowe zasilane kotłem gazowym (piec do uzgodnienia z kupującym)
- TV, Internet
- alarmowa
- monitoring

Tynki cementowo-wapienne, szambo bezodpływowe 10 m³.

W razie pytań zapraszam do kontaktu.

  • Oferta z rynku pierwotnego
  • Wierzbiczany, gmina Gniezno, powiat gnieźnieński  
  • Na sprzedaż dom wolnostojący o powierzchni 150 m², 5 pokoi  
  • Sizing Streamline Icon: https://streamlinehq.com
    Działka 1 117 m²  
  • Budynek w stanie do wykończenia  
  • Garaż  
  • Ogrzewanie gazowe
  • Materiał budowy cegła
  • Dach dachówka
  • Dojazd asfalt
  • Ogrodzenie siatka
  • Media szambo, gaz
  • Wyposażenie telewizor
  • Oferta bezpośrednio od właściciela dodana ponad miesiąc temu i zaktualizowana 3 dni temu
Ta nieruchomość może być Twoja od.. sprawdź
158000 zł (20%) Okres spłaty: 30 lat

Podobne domy na sprzedaż

34
dom wolnostojący, 4 pokoje Dalki

895 000

178

4 pok.

Dom jednorodzinny z dostepem do drogi publicznej, gotowy do zamieszkanie ,potrzebuje jedynie wstawienie drzwi wewnetrznych i obudowanie schodow , holu na pietrze oraz dokonczenie elewacji. Na parterze znajduje sie 1 pokoj plus salon z jadalnia i piekna wyposarzona kuchnia z widokiem na ogrod oraz ze...

Zobacz ogłoszenie
10
dom wolnostojący, 4 pokoje Lulkowo

705 000

125

4 pok.

Sprzedam dom w Lulkowie, wybudowany w 2008r. Ogrzewanie nowe gazowe. Piec kondensacyjny wraz z zasobnikiem. Dom dwupoziomowy. Na parterze duży salon, kuchnia, garderoba, spiżarnia i duza łazienka, na piętrze trzy sypialnie, łazienka i garderoba z pralnia. Garaż w bryle budynku. Dom wyposażony, prakt...

Zobacz ogłoszenie
7
bliźniak, 5 pokoi Zdziechowa

650 000

128

5 pok.

Sprzedam doskonale zlokalizowany dom wolnostojący pow. 128,24 m2 na działce ok.750 usytuowany w spokojnej części miejscowości Zdziechowa w gminie Gniezno. Do budynku przynależy garaż wraz z dodatkowym miejscem postojowym. Budynek będzie oddany w stanie deweloperskim, wraz z tarasami i podjazdem do...

Zobacz ogłoszenie
12
dom wolnostojący, 4 pokoje Mnichowo

730 000

97

4 pok.

Zapraszam do zakupu funkcjonalnego domu jednorodzinnego z garażem w miejscowości Mnichowo, osiedle Radosne, około 5 minut samochodem od centrum Gniezna. W pobliżu: szkoła, sklep, plac zabaw, boisko ORLIK. Cicha, spokojna okolica w sąsiedztwie pól i łąk. Wjazd na osiedle z drogi asfaltowej, wzdłuż ...

Zobacz ogłoszenie
7
bliźniak Osiniec, al. Pierwsza

629 000

111

Sprzedam dom w zabudowie bliźniaczej | Osiniec | 111 m² | Działka 590 m² Na sprzedaż dom w zabudowie bliźniaczej. Oferujemy sprzedaż dwóch oddzielnych części / domów. Metraże oraz cena podane są dla jednej połowy. NAJWAŻNIEJSZE INFORMACJE: - Powierzchnia domu: 111 m² - Działka: 590 m² - Układ: 4 s...

Zobacz ogłoszenie
8
bliźniak, 5 pokoi Szczytniki Duchowne

624 950

107

5 pok.

Mamy przyjemność przedstawić Państwu naszą propozycję domu jednorodzinnego, dwulokalowego, o powierzchni 107,75 mkw., na działce o powierzchni 525 mkw. Dom znajduje się w Szczytnikach Duchownych, blisko Gniezna, woj. wielkopolskie, co pozwala na szybki dojazd do centrum, a na co dzień — pełen komfo...

Zobacz ogłoszenie