Dom na sprzedaż
ul. Lwowska Marki

dom szeregowy, 4 pokoje Marki, ul. Lwowska. Zdjęcie 1
dom szeregowy, 4 pokoje Marki, ul. Lwowska. Zdjęcie 2
dom szeregowy, 4 pokoje Marki, ul. Lwowska. Zdjęcie 3
dom szeregowy, 4 pokoje Marki, ul. Lwowska. Zdjęcie 4
dom szeregowy, 4 pokoje Marki, ul. Lwowska. Zdjęcie 5
dom szeregowy, 4 pokoje Marki, ul. Lwowska. Zdjęcie 6
dom szeregowy, 4 pokoje Marki, ul. Lwowska. Zdjęcie 7
dom szeregowy, 4 pokoje Marki, ul. Lwowska. Zdjęcie 8

Dom na sprzedaż Marki ul. Lwowska

969 000
9 351 zł/m²
103
4 pok.
Marki, Lwowska - lokalizacja przybliżona

Właściciel powierzył sprzedaż nieruchomości pośrednikowi. Możesz zadzwonić lub napisać do agenta za darmo.

Oferta i zakup prosto od Dewelopera.
Istnieje możliwość obejrzenia w tygodniu jak również w sobotę lub niedzielę po wcześniejszym umówieniu telefonicznym.
Osiedle Nowoczesnych segmentów w super lokalizacji bliskich Marek.
W okolicy sklepy typu Biedronka, Netto, Orlen.
5 min do szkoły.
W segmencie wszędzie położone ogrzewanie podłogowe + dodatkowe wyprowadzenia do kaloryferów)
Wyprowadzenia do zamontowania 2 klimatyzatorów.
Dodatkowo na parterze możliwość zamontowania kominka (wstawiony komin)
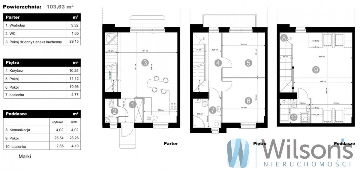
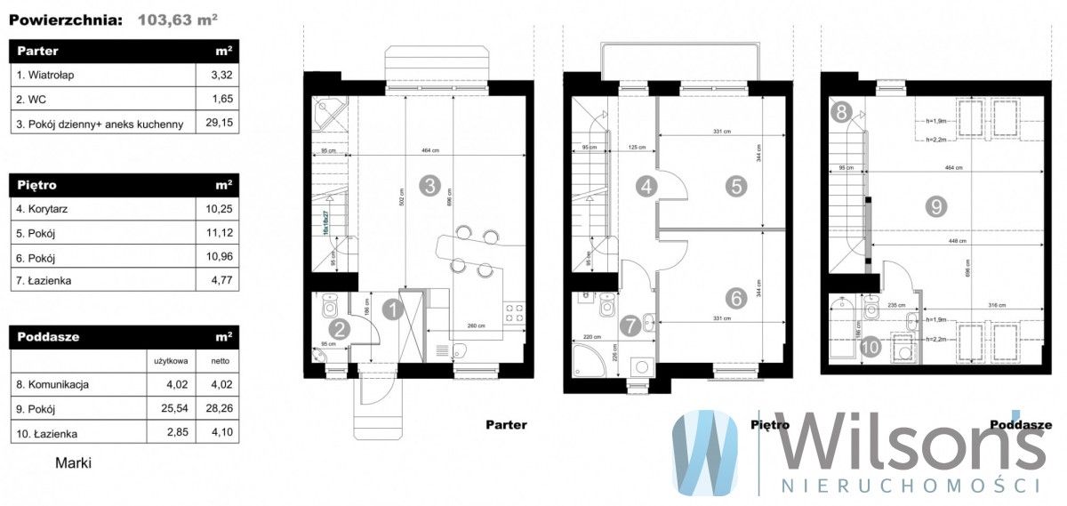
Segment 103,63 mkw (całkowita 107,60mkw )  składa się z 3 poziomów :
Parter:
- salon z aneksem - 29,15 mkw
- wiatrołap              -  3,32 mkw
- wc                        -  1,65 mkw
Piętro:
- pokój                    - 11,12 mkw
- pokój                    - 10,96 mkw (z wyjściem na balkon)
- korytarz                - 10,25 mkw
- łazienka                -  4,77 mkw
Poddasze:
- pokój                     - 28,26 mkw ( 25,54 użytkowa)
- łazienka                 -  4,10 mkw ( 2,85 użytkowa)
- komunikacja          -  4,02 mkw
Dodatkowo w cenie:
- ogródek
- miejsce postojowe x 2
Lokal mieszkalny w budynku mieszkalnym powstaje w następującej technologii standardzie: 1. Konstrukcja budynku: technologia tradycyjna, murowana, stropy, schody i balkony o konstrukcji żelbetowej; budynki pokryte dachami dwuspadowymi, pokryte blachodachówką. 2. Fundament: płyta fundamentowa - żelbetowa. 3. Ściany zewnętrzne: główny materiał - pustaki ceramiczne (25 cm), wykończone w technologii lekkiej-mokrej z zastosowaniem styropianu grafitowego (15 cm), pomiędzy lokalami zdylatowane ściany z pustaków ceramicznych (18,8 cm). 4. Ściany wewnętrzne: konstrukcyjne z pustaków ceramicznych (25 cm), działowe z pustaków ceramicznych (8 cm). 5. Stropy, podciągi, wieńce i schody wewnętrzne: żelbetowe, monolityczne. 6. Dach: dwuspadowy o konstrukcji drewnianej, pokrycie dachu - blachodachówka, obróbki blacharskie z blachy powlekanej, rynny i rury spustowe PVC. 7. Schody zewnętrzne: kostki i galanteria betonowa. 8. Kominy: systemowe, prefabrykowane. 9. Podłogi: posadzka - wylewka betonowa zbrojona przeciwskurczowo, zatarta na gładko, balkony - posadzka betonowa pod płytki mrozoodporne antypoślizgowe. 10. Ściany i sufity - tynki gipsowe maszynowe. 11. Stolarka: okienna - PCV, z wbudowanymi nawiewnikami, okna trzyszybowe, co najmniej jedno skrzydło w pomieszczeniu rozwieralno-uchylne. 12. Drzwi wejściowe: klasy RC2. 13. Parapety: parapety zewnętrzne z blachy, bez parapetów wewnętrznych. 14. Barierki na balkonie. 15. Wyposażenie łazienek parter i piętro: zaślepione podejścia wodne pod urządzenia (bez białego montażu), zaślepione wyjście odpływu kanalizacyjnego, grzejnik łazienkowy. 16. Wyposażenie kuchni: zaślepione podejścia wodne pod wyposażenie: zlewozmywak, zmywarka, zaślepione wyjście z pionu kanalizacyjnego. 17. Doprowadzenie zasilenia dla potrzeb zmywarki, lodówki, kuchni elektrycznej, w tym doprowadzone do kuchni zasilanie trójfazowe. 18. Wyposażenie pomieszczeń na parterze i piętrze: instalacja elektryczna, instalacja c.o. pod ogrzewanie podłogowe oraz pod możliwość instalacji grzejników, w każdym pokoju, instalacja internetowa do wykorzystania jako antenowa. Wykonana instalacja alarmowa z możliwością podłączenia czujek ruchowych i centralki alarmowej. Możliwość instalacji kominka w salonie na parterze. 19. Poddasze: do dowolnej aranżacji przez Klienta wraz z wykonaniem przez Klienta ewentualnego ocieplenia, instalacja C.O. pod ogrzewanie podłogowe oraz pod możliwość instalacji grzejników, instalacja elektryczna i internetowa z możliwością wykorzystania jako antenowa.
20. Ogrzewanie podłogowe wodne wykonane zostanie w wiatrołapie, kuchni i łazienkach oraz pokojach i poddaszu. Ze względu ma ogrzewanie podłogowe mimo możliwości instalacji grzejników nie są one montowane w pokojach.
Teren zewnętrzny:
*  Zagospodarowanie terenu wokół budynków obejmuje: a. wykończenie dojścia i dojazdu do budynku zgodnie z projektem: b. pozostała część chłonna terenu: do zagospodarowania; c. brama wjazdowa na teren lokalizacji budynków  d. wykonanie ogrodzenia budynków
*  Na terenie inwestycji zostaną wykonane zewnętrzne miejsca postojowe dla samochodów osobowych.
* W budynku wykonane zostaną następujące instalacje: elektryczna, gazowa, wod.-kan. oraz c.o., c.w.u. oraz internetowa i alarmowa.
Stan deweloperski - GOTOWY
Oddanie do użytkowania - ODDANY
...
ZAPRASZAMY DO BEZPIECZNEGO OGLĄDANIA DOMU.
Pomożemy dopełnić wszelkich formalności przy zakupie mieszkania.
Pomożemy od ręki w sprawach kredytu.
Mieszkania te zwolnione są z opłaty podatku od czynności cywilno-prawnych PCC (oszczędność wynosi 2%).

  • Oferta z rynku pierwotnego
  • ul. Lwowska, Marki, powiat wołomiński  
  • Na sprzedaż dom szeregowy o powierzchni 103,63 m², 4 pokoje wybudowany w 2025 roku
  • Sizing Streamline Icon: https://streamlinehq.com
    Działka 107 m²  
  • Garaż na 2 samochody  
  • Materiał budowy pustak
  • Dach blachodachówka
  • Dojazd utwardzony
  • Media woda, gaz
  • Ogłoszenie biura nieruchomości  
  • Oferta dodana ponad miesiąc temu
Ta nieruchomość może być Twoja od.. sprawdź
194000 zł (20%) Okres spłaty: 30 lat

Podobne domy na sprzedaż

9
bliźniak, 6 pokoi Marki, ul. Gliniecka

960 000

116

6 pok.

Oferta Dewelopera. Istnieje możliwość obejrzenia w tygodniu jak również w sobotę lub niedzielę po wcześniejszym umówieniu telefonicznym. Dom Bliźniak w stanie deweloperskim z Ogrodem i 2 miejscami parkingowymi. Ogródek od 65 mkw Świetna lokalizacja w markach w cichej okolicy. Na osiedlu rekreacyjny...

Zobacz ogłoszenie
19
dom szeregowy, 4 pokoje Marki, ul. Królowej Marysieńki

930 000

87

4 pok.

Na sprzedaż segment środkowy znajdujący się w Markach przy ul. Królowej Marysieńki. Segment składa się z 2 poziomów: > PARTER: wiatrołap, salon, kuchnia, WC > PIĘTRO: korytarz, 3 pokoje, łazienka, pralnia > Powierzchnia działki 60 m², w tym ogródek 25 m² > Przed segmentem miejsce postojowe na jeden ...

Zobacz ogłoszenie
10
dom wolnostojący, 5 pokoi Marki, ul. Tadeusza Kościuszki

999 000

140

5 pok.

Do sprzedania dom wolnostojący zbudowany z czerwonej cegły w latach dziewięćdziesiątych. Idealny dla rodziny 2+2 lub do celów inwestycyjnych! Dom znajduje się zaledwie 100 m od głównej artylerii Marek, ok. 15 km od Centrum Warszawy! Do najbliższej stacji metra ok. 10 minut autem. Dom o powierzchni...

Zobacz ogłoszenie
9
dom szeregowy, 6 pokoi Marki, ul. Gliniecka

899 000

116

6 pok.

Oferta Dewelopera. Istnieje możliwość obejrzenia w tygodniu jak również w sobotę lub niedzielę po wcześniejszym umówieniu telefonicznym. Dom Segment  w stanie deweloperskim z Ogrodem ok 25 mkw i 2 miejscami parkingowymi. Ogródek ok 25 mkw Świetna lokalizacja w markach w cichej okolicy. Cała infrast...

Zobacz ogłoszenie
6
dom szeregowy, 4 pokoje Marki, ul. ks. bp. Władysława Bandurskiego

890 000

120

4 pok.

Dom w Markach, przy ulicy Bandurskiego. Powierzchnia całkowita domu 147 m2 (z garażem oraz pomieszczeniem gospodarczym). Powierzchnia użytkowa 120 m2.  Na parterze jest salon z otwartą kuchnią, łazienka z prysznicem, garaż i pomieszczenie gospodarcze. Z salonu wychodzi się na ogródek, ok. 200 m2. St...

Zobacz ogłoszenie
12
dom szeregowy, 5 pokoi Marki, ul. 11 Listopada

899 000

116

5 pok.

Sprzedaż 6 segmentów o powierzchni użytkowej 116,59 m2. Do każdego segmentu przynależą dwa miejsca postojowe oraz ogródek. Segment składa się na parterze z wiatrołapu, pomieszczenia gospodarczego, korytarza, łazienki oraz salonu z aneksem kuchennym. Wyjście na ogródek z salonu. Na I poziomie znajdu...

Zobacz ogłoszenie