Nieruchomość komercyjna na sprzedaż bez pośredników
al. Józefa Piłsudskiego Dąbrowa Górnicza

Lokal Dąbrowa Górnicza, al. Józefa Piłsudskiego. Zdjęcie 1

Nieruchomość komercyjna na sprzedaż bez pośredników Dąbrowa Górnicza al. Józefa Piłsudskiego

1 950 000
5 571 zł/m²
350
Dąbrowa Górnicza, Józefa Piłsudskiego - lokalizacja przybliżona
Bezpośrednio od właściciela

Jeśli nie potrzebujesz pośrednika, zaoszczędzisz około 58 500 zł. Potrzebujesz wsparcia? Skorzystaj z pomocy agenta.

Nieruchomość idealna na , biura, magazyn jak i pod inwestycje (pod zabudowę wielorodzinną)
Obiekt składa się z budynku o powierzchni 350m2 i usytuowany jest na działce o powierzchni 1850m2. (posiada prywatny parking)
Główne atuty nieruchomości: • lokalizacja w ruchliwym miejscu• do indywidualnej aranżacji• miejsca parkingowe•
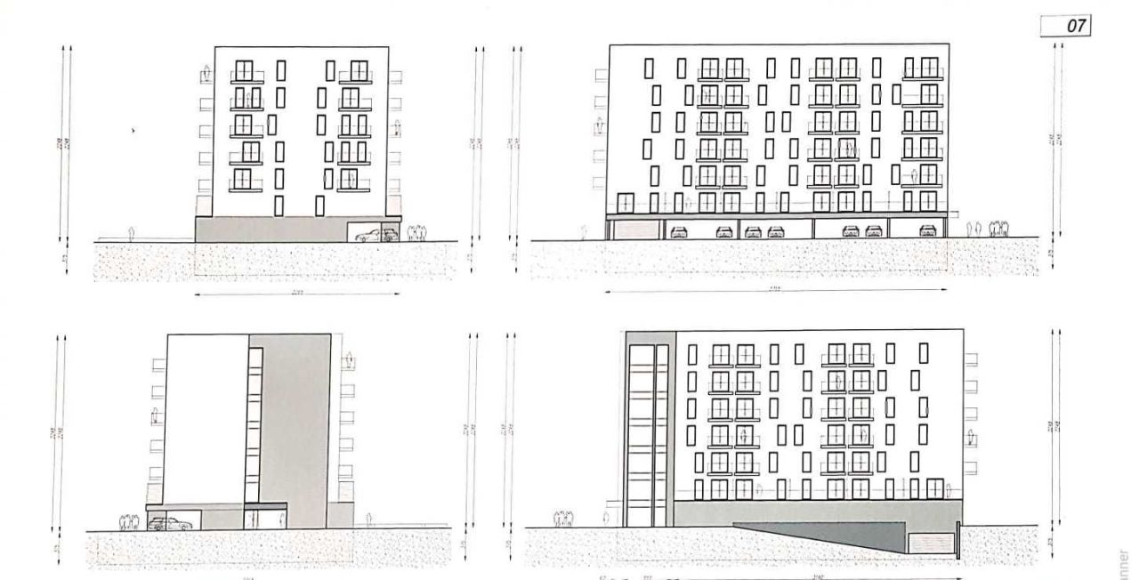
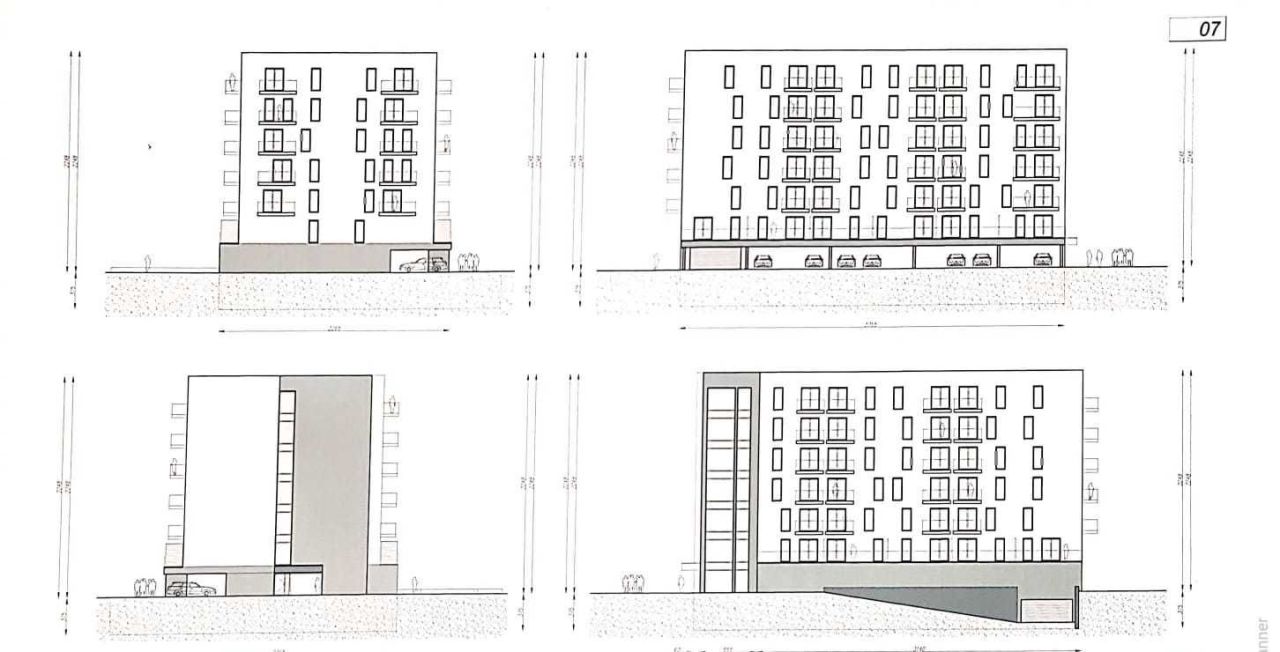
Atrakcyjna działka dla developera (patrz. projekt bloku mieszkalnego)
Oferta prywatna.
Zapraszam do kontaktu.

  • al. Józefa Piłsudskiego, Dąbrowa Górnicza  
  • Na sprzedaż lokal o powierzchni 350 m²  
  • Oferta bezpośrednio od właściciela dodana ponad miesiąc temu
Ta nieruchomość może być Twoja od.. sprawdź
390000 zł (20%) Okres spłaty: 30 lat

Podobne nieruchomości komercyjne na sprzedaż

8
Biuro Dąbrowa Górnicza, ul. Walentego Roździeńskiego

2 160 000

1160

Oferujemy do sprzedaży posesję o powierzchni 0,3302 ha, na której posadowiony jest: - budynek 3-kondygnacyjny + podpiwniczenie o powierzchni użytkowej 1160 m2, - nowa hala magazynowa o powierzchni 258 m2, - oraz duży, utwardzony plac manewrowy. Posesja jest ogrodzona i niezależna, z dobrym dojazde...

Zobacz ogłoszenie
1
Lokal Dąbrowa Górnicza, al. Józefa Piłsudskiego

2 000 000

2614

Na sprzedaż oferuję komercyjną nieruchomość zlokalizowaną w Dąbrowie Górniczej przy al. J Piłsudskiego. Obiekt położony jest w spokojnej, bocznej uliczce, w sąsiedztwie zabudowy usługowo-magazynowej, z wygodnym dojazdem oraz możliwością szerokiego wykorzystania pod działalność gospodarczą. PARAMETR...

Zobacz ogłoszenie
12
Lokal Dąbrowa Górnicza Gołonóg, ul. Marcina Kasprzaka

1 898 000

408

Na sprzedaż: Nowy Budynek Usługowo-Handlowy - 408 m² | Górka Gołonowska Oferta bezpośrednio od właściciela - bez prowizji. Mam przyjemność zaprezentować nowoczesny budynek usługowo-handlowy o powierzchni użytkowej 408 m², idealnie przystosowany pod różnorodne działalności - od handlu, przez usług...

Zobacz ogłoszenie
1
Lokal Dąbrowa Górnicza Strzemieszyce Wielkie, ul. Stacyjna

1 480 000

475

Dochodowa nieruchomość komercyjna  . 475 m2  . Stabilny najemca   , przychód 10 tys  /miesiac . Nowa instalacja elektryczna  w calym budynku  , dach po remoncie 

Zobacz ogłoszenie
5
Hala/magazyn Dąbrowa Górnicza Ząbkowice, ul. Adama Rapackiego

2 500 000

707

Hala 707 m2 w Dąbrowie Górniczej - Ząbkowice ul. Rapackiego 22 Cena sprzedaży 2.500.000 zł + VAT

Zobacz ogłoszenie
4
Lokal Dąbrowa Górnicza Reden

zapytaj

25

Na sprzedaż lub wynajęcia (1000zł) lokal wolnostojący 25m2, cena do negocjacji lokal posiada wszystkie media, ocieplany, ogrzewanie elektryczne. Lokal może służyć jako sklep, biuro, siedziba firmy. Lokal znajduje się w środku dużego osiedla w Dąbrowie Górniczej przy ulicy Reymonta. Do tej pory ...

Zobacz ogłoszenie