Nieruchomość komercyjna na sprzedaż bez pośredników
pl. Plac Krakowski Zabrze Centrum

Lokal Zabrze Centrum, pl. Plac Krakowski. Zdjęcie 1

Nieruchomość komercyjna na sprzedaż bez pośredników Zabrze Centrum pl. Plac Krakowski

450 000
3 750 zł/m²
120
Zabrze Centrum, pl. Plac Krakowski - lokalizacja przybliżona
Bezpośrednio od właściciela

Jeśli nie potrzebujesz pośrednika, zaoszczędzisz około 13 500 zł. Potrzebujesz wsparcia? Skorzystaj z pomocy agenta.

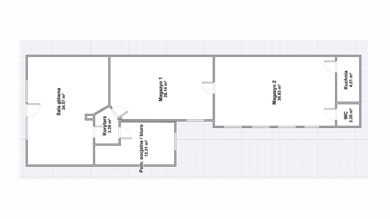
Na sprzedaż przestronny lokal użytkowy/usługowy/handlowy w prestiżowej lokalizacji w samym centrum Zabrza.

120 m2, jasna sala sprzedaży, dwa magazyny, biuro, mała kuchnia i toaleta.

Lokal wymaga remontu.

Okna w magazynie i biurze zostały wymienione na plastikowe. Zamontowano również nowe drzwi wejściowe. W 2023 został wymieniony piec gazowy centralnego ogrzewania (o wartości ok. 15,000 PLN).

KONTAKT TYLKO TELEFONICZNY

Przez ostatnie 33 lata w lokalu mieścił się sklep dla plastyków Grafpis.

Lokal świetnie nadawać się będzie na:

lokal usługowy np. studio kosmetyczne
lokal przeznaczony na usługi medyczne: gabinety, mała klinika estetyczna
biuro notarialne
studio fitness, studio jogi
lokal handlowy wymagający przestrzeni magazynowej
drukarnię, stolarnię, hurtownię, serwis rowerowy

#SALA SPRZEDAŻY
Jasna sala sprzedaży mieszcząca dwa stanowiska komputerowe oraz ekspozycję. Dwa duże, przyciągające wzrok okna wystawowe. W zależności od przeznaczenia, wymagają odświeżenia lub remontu.

#2 MAGAZYNY
Przestronne magazyny. Wszystkie magazyny mają okna. W zależności od przeznaczenia, wymagają odświeżenia lub gruntownego remontu.

#BIURO
Wyremontowane w eleganckim stylu pomieszczenie biurowe.

#KUCHNIA I TOALETA
Wymagają gruntownego remontu.

  • pl. Plac Krakowski, Zabrze Centrum  
  • Na sprzedaż lokal o powierzchni 120 m²  
  • Oferta bezpośrednio od właściciela dodana ponad miesiąc temu
Ta nieruchomość może być Twoja od.. sprawdź
90000 zł (20%) Okres spłaty: 30 lat

Podobne nieruchomości komercyjne na sprzedaż

7
Lokal Zabrze Centrum, ul. Wolności

355 000

16

Sprzedam niewielki lokal użytkowy z zapleczem sanitarnym na biuro, działalność np. paznokcie, brwi, fryzjer..., usługi handlowe. Lokal po remoncie, do własnej aranżacji. Centrum Ul. Wolności ( oficyna) Zabrze

Zobacz ogłoszenie
6
Lokal Zabrze Centrum, ul. Wolności

390 000

60

Do sprzedania bezpośrednio od właściciela. Dwa niezależne lokale użytkowe o łącznej powierzchni ok 60m2 (20m2 i 40m2).  Lokale znajdują się przy ul. Wolności 256 w Zabrzu jest to główna ulica handlowa, ścisłe centrum.  Duże natężenie ruchu pieszego deptak, samochodowego, tramwaj, przystanki.  Wejści...

Zobacz ogłoszenie
1
Lokal Zabrze Centrum

599 000

78

Na sprzedaż lokal handlowy o powierzchni 78,6 m2 Nieruchomość jest usytuowana jest przy ruchliwej ulicy w centrum Zabrza. W sąsiedztwie znajduje się dużo firm handlowo-usługowych. W okolicy infrastruktura miejska ; urzędy, apteki, szpital, dworce komunikacji miejskiej i PKP. Lokal na parterze kami...

Zobacz ogłoszenie
4
Lokal Zabrze, ul. Szpitalna

450 000

67

Dzień dobry, Oferuję na sprzedaż przestronny lokal o powierzchni 67 m². Lokal użytkowy jest dostosowany pod usługi takie jak: sklep spożywczy, bank, apteka itp. DOSKONAŁA LOKALIZACJA! ul. Szpitalna 1, Zabrze (blisko centrum). Lokal, położony w idealnym miejscu, o dużym natężeniu ruchu pieszego or...

Zobacz ogłoszenie
6
Lokal Zabrze Mikulczyce, ul. Tarnopolska

500 000

112

Sprzedam lokal handlowy w Zabrzu Mikulczycach przy ulicy Tarnopolskiej o powierzchni 112 m2. Prawie cała powierzchnia lokalu z wyjątkiem małego magazynku to powierzchnia handlowa stanowiąca jedno pomieszczenie bez zakamarków . Lokal znajduje się w głównym ciągu handlowym . Aktualny najemca prowadz...

Zobacz ogłoszenie
8
Lokal Zabrze, ul. prof. Tadeusza Banachiewicza

399 000

98

Na sprzedaż bezpośrednio od właściciela lokal użytkowy o powierzchni 98,70 m², zlokalizowany na parterze budynku mieszkalnego przy ul. Banachiewicza 21 w Zabrzu - w sercu dużego, gęsto zaludnionego osiedla. Lokalizacja z potencjałem: Lokal posiada dwa niezależne wejścia - jedno bezpośrednio z główn...

Zobacz ogłoszenie