Ogłoszenie usunięte

Siedlce
ul. Bitwy Warszawskiej
3-pokojowe mieszkanie na sprzedaż Bez pośrednika

Siedlce · 540 000 zł

Ogłoszenie właściciela - bez pośredników

Mieszkanie 3-pokojowe Siedlce, ul. Bitwy Warszawskiej. Zdjęcie 1
Mieszkanie 3-pokojowe Siedlce, ul. Bitwy Warszawskiej. Zdjęcie 1

Bez pośrednika. Oszczędzasz 16 200 zł na prowizji pośrednika!

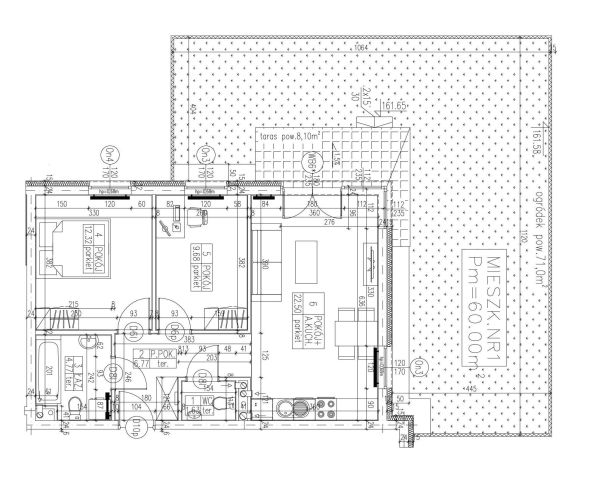
Nowe mieszkanie na ul Bitwy Warszawskiej. 58m 3 pokoje (salon z aneksem kuchennym 22.5m, dwa pokoje 12.5m i 10.5m, garderoba lub oddzielne wc 1.7m, łazienka 4.7m) plus ogródek 71m.

Mieszkanie jest częściowo wykończone.

Gipsy na ścianach, ściany pomalowane.
Podwieszane sufity, częściowo zamontowane oświetlenie.
Na podłodze panele.
W łazience położone płytki, zamontowana ścianka prysznicowa i Geberit.
W salonie, kuchni, przedpokoju i w łazience założone centralne ogrzewanie podłogowe.
Klimatyzacja w trzech pokojach z oddzielnym sterowaniem.

Do wprowadzenia brakuje: drzwi wewnętrznych, zabudowy kuchennej ze sprzętem, szafek łazienkowych i mebli.

Do mieszkania przynależą

- dwa miejsca parkingowe w garażu, dodatkowo 2*32 000zł (ze względu na duże zapotrzebowanie, jedno można sprzedaż lub wynająć bez problemu)

- piwnica 4,7m 15 000zł

- ogródek 71m w cenie

  • Na sprzedaż mieszkanie 3-pokojowe o powierzchni 58 m²
  • parter w bloku
  • Siedlce, ul. Bitwy Warszawskiej
  • Piwnica, garaż, ogródek, aneks kuchenny
  • Wyposażenie: klimatyzacja
ponad miesiąc temu
12
Mieszkanie 3-pokojowe Siedlce, ul. Karpacka

Siedlce ul. Karpacka Mieszkanie na sprzedaż

3 pokoje 59 2 piętro
580 000
9 764 zł / m²
ponad miesiąc temu
16
Mieszkanie 3-pokojowe Siedlce, ul. Pomorska

Siedlce ul. Pomorska Mieszkanie na sprzedaż

3 pokoje 60 8 piętro Bez pośrednika
535 000
8 917 zł / m²
ponad miesiąc temu
8
Mieszkanie 3-pokojowe Siedlce, ul. Poznańska

Siedlce ul. Poznańska Mieszkanie na sprzedaż

3 pokoje 62 parter Bez pośrednika
540 000
8 710 zł / m²
ponad tydzień temu
16
Mieszkanie 3-pokojowe Siedlce, ul. Kaszubska

Siedlce ul. Kaszubska Mieszkanie na sprzedaż

3 pokoje 57 2 piętro Bez pośrednika
538 000
9 489 zł / m²
ponad miesiąc temu
15
Mieszkanie 3-pokojowe Siedlce, ul. Starowiejska

Siedlce ul. Starowiejska Mieszkanie na sprzedaż

3 pokoje 77 4 piętro
569 000
7 432 zł / m²