Mieszkanie na sprzedaż bez pośredników
ul. Chemików Zgierz

Mieszkanie 3-pokojowe Zgierz, ul. Chemików. Zdjęcie 1

Mieszkanie na sprzedaż bez pośredników Zgierz ul. Chemików · 5 piętro

720 000
8 915 zł/m²
80
3 pok.
Zgierz, Chemików - lokalizacja przybliżona
Bezpośrednio od właściciela

Jeśli nie potrzebujesz pośrednika, zaoszczędzisz około 21 600 zł. Potrzebujesz wsparcia? Skorzystaj z pomocy agenta.

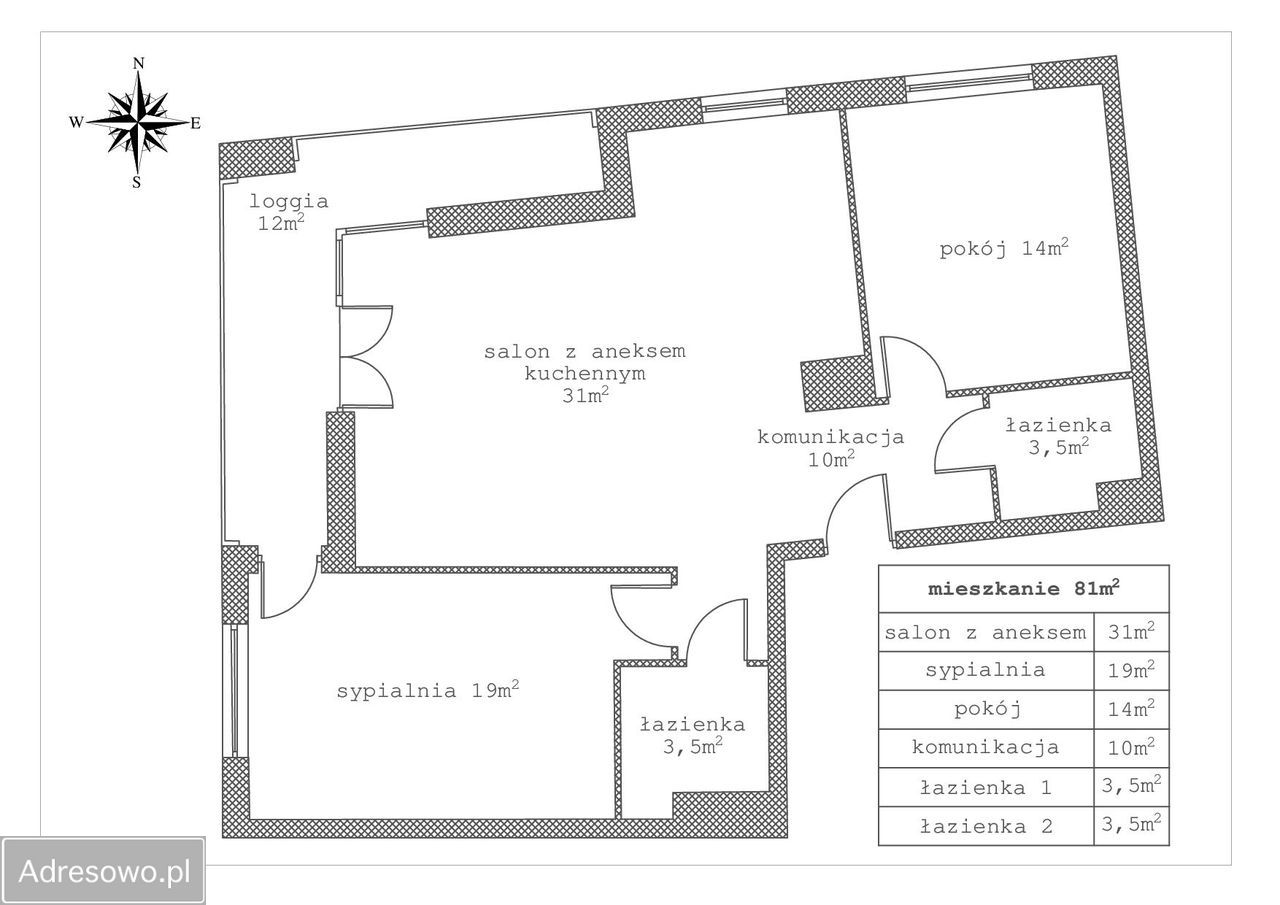
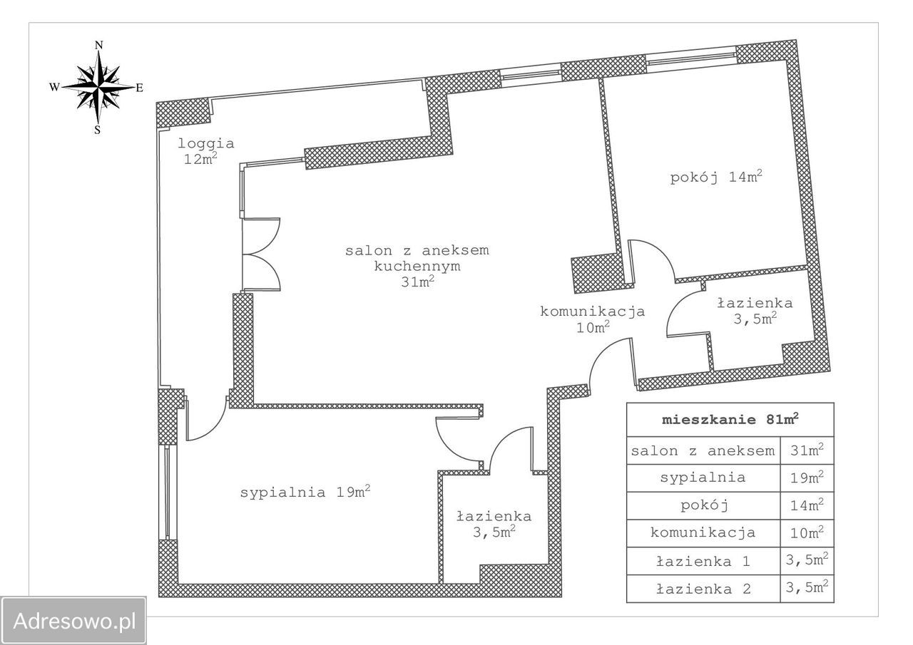
Na sprzedaż przestronne, 3-pokojowe mieszkanie o powierzchni prawie 81 m², położone na piątym piętrze w bloku przy ul. Chemików.

Lokal charakteryzuje się nowoczesnym układem z wyraźnym podziałem na część dzienną i prywatną oraz doskonałym naturalnym doświetleniem.

- Strefa dzienna (31 m²): Otwarty, bardzo słoneczny salon połączony z aneksem kuchennym.
- Sypialnia główna (19 m²): Bardzo ustawna, wyposażona w dwie duże szafy, które zapewniają mnóstwo miejsca do przechowywania.
- Druga sypialnia / Pokój (14 m²): Idealna jako pokój dziecięcy lub gabinet.
- Dwie łazienki (po 3,5 m² każda): Pełna funkcjonalność dla rodziny:
- Pierwsza łazienka: wyposażona w prysznic oraz pralko-suszarkę.
- Druga łazienka: wyposażona w wannę.
- Przedpokój (10 m²): Szeroki i funkcjonalny (szafa pod zabudowę).
- Loggia (12 m²): Duży, narożny taras.

Standard i udogodnienia:
- Ekspozycja: Salon oraz główna sypialnia skierowane są na zachód, dzięki czemu mieszkanie jest jasne i ciepłe, a wieczorami oferuje widok na zachodzące słońce.
- Klimatyzacja: Jednostka zainstalowana w kuchni zapewnia idealną temperaturę w upalne dni.
- Do mieszkania przynależy komórka lokatorska (3,5 m²).
- Internet i odbiór TV: Mieszkanie wyposażone w instalację światłowodową (TOYA), z rozprowadzonymi kablami do odbioru telewizji w systemie multiroom.
- Możliwość dokupienia miejsca w garażu podziemnym w cenie 50 000 zł.
- Dostępność: Mieszkanie gotowe do wprowadzenia, dostępne od zaraz.

Lokalizacja i otoczenie:
Osiedle na terenie zamkniętym, spokojna okolica, dobry i szybki dojazd do drogi S14. W sąsiedztwie szkoła muzyczna, w bliskiej odległości żłobek i przedszkola, w odległości 400m przychodnia/szpital oraz przystanek MPK.

Pośrednikom dziękuję - sprzedaż wyłącznie bezpośrednia.

Zapraszam do kontaktu.

  • Na sprzedaż mieszkanie 3-pokojowe o powierzchni 80,76 m² balkon, piwnica, garaż/miejsce parkingowe, aneks kuchenny
  • 5 piętro w 8-piętrowym bloku z windą, rok budowy 2013
  • Zgierz ul. Chemików
  • Mieszkanie w stanie do zamieszkania okna plastikowe
  • Odrębna własność z księgą wieczystą  
  • Wyposażenie klimatyzacja, pralka
  • Oferta bezpośrednio od właściciela dodana ponad tydzień temu
Ta nieruchomość może być Twoja od.. sprawdź
144000 zł (20%) Okres spłaty: 30 lat

Podobne mieszkania na sprzedaż

7
Mieszkanie 4-pokojowe Zgierz, ul. Polna

619 000

86

4 pok.

Nowa inwestycja w Zgierzu. BEZCZYNSZOWE LOKALE MIESZKALNE w budynku jednorodzinnym dwulokalowym z ogródkiem. ZAPRASZAMY. OSTATNIE LOKALE. Osiedle domów zamknięte. Budowa zakończona. Cicha i spokojna okolica. Osiedle zamknięte, tylko 8 domów dwulokalowych. POW: Parter: - Wiatrołap: 4,0 m2 - Salo...

Zobacz ogłoszenie
8
Mieszkanie 3-pokojowe Zgierz

480 000

57

3 pok.

Wyjątkowe 3-pokojowe mieszkanie po remoncie - 57,86 m² | 2 piętro | osiedle 650-lecia Na sprzedaż komfortowe i funkcjonalne 3-pokojowe mieszkanie o powierzchni 57,86 m², położone na 2 piętrze w czteropiętrowym bloku na spokojnym i dobrze skomunikowanym osiedlu 650-lecia. To idealna propozycja dla r...

Zobacz ogłoszenie
9
Mieszkanie 3-pokojowe Zgierz

609 000

71

3 pok.

Na sprzedaż oferuję mieszkanie o powierzchni 71,1 m², w doskonałym punkcie komunikacyjnym w Zgierzu. Rozkład i układ pomieszczeń: Mieszkanie składa się z: - przestronnego salonu z aneksem kuchennym 30 m² z bezpośrednim wyjściem na duży narożny balkon. - dwóch sypialni po 12,78 m², z których jedna m...

Zobacz ogłoszenie
13
Mieszkanie 4-pokojowe Zgierz, ul. Stanisława Witkacego

629 000

72

4 pok.

Do sprzedania mieszkanie w Zgierzu, usytuowane na cichym i spokojnym osiedlu, z dużą ilością bezpłatnych miejsc do parkowania. Pełna własność wraz z udziałem w częściach wspólnych. Mieszkanie mieści się na 1. piętrze czteropiętrowego bloku. Do mieszkania przynależy także komórka lokatorska oraz możl...

Zobacz ogłoszenie
12
Mieszkanie 3-pokojowe Zgierz, ul. Konstantynowska

492 820

60

3 pok.

Przedstawiam funkcjonalne mieszkanie 3-pokojowe o powierzchni 60,10 m² położone na parterze nowoczesnego budynku zlokalizowanego blisko centrum miasta - przy ul. Konstantynowskiej w Zgierzu. —— UKŁAD MIESZKANIA —— Lokal składa się z: - korytarza -przestronnego salonu z aneksem kuchennym -ustawn...

Zobacz ogłoszenie
21
Mieszkanie 3-pokojowe Zgierz Proboszczewice, ul. Piątkowska

770 000

77

3 pok.

Na sprzedaż dwustronne mieszkanie o powierzchni ponad 77 m², położone na 2. piętrze w kameralnym bloku na zamkniętym osiedlu przy ul. Piątkowskiej w Zgierzu. Mieszkanie gotowe do zamieszkania, bez żadnych nakładów finansowych. Osiedle i bezpieczeństwo Nieruchomość znajduje się na terenie zamknięt...

Zobacz ogłoszenie