Mieszkanie na sprzedaż bez pośredników
ul. Dębowa Wola

Mieszkanie 2-pokojowe Wola, ul. Dębowa. Zdjęcie 1

Mieszkanie na sprzedaż bez pośredników Wola ul. Dębowa · 1 piętro

289 000
5 843 zł/m²
49
2 pok.
Wola, Dębowa - lokalizacja przybliżona
Bezpośrednio od właściciela

Jeśli nie potrzebujesz pośrednika, zaoszczędzisz około 8 700 zł. Potrzebujesz wsparcia? Skorzystaj z pomocy agenta.

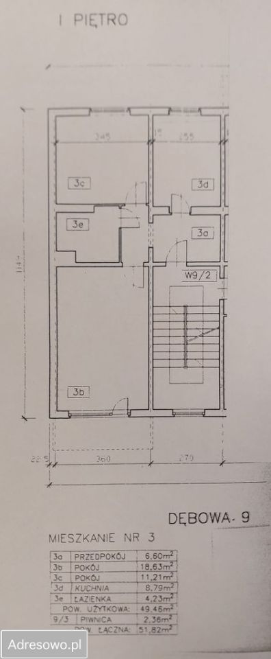
Sprzedam BEZ POŚREDNIKA wyposażone i przygotowane do zamieszkania spółdzielcze własnościowe prawo do lokalu z założoną księgą wieczystą, zlokalizowane w miejscowości Wola, Gmina Miedźna, powiat pszczyński przy ul. Dębowa.
Mieszkanie o pow. 49,46 m2 posadowione jest na 1 piętrze, w 4-piętrowym budynku. Do mieszkania przynależy piwnica o pow. 2,36 m2.
Lokal wyposażony jest w balkon, posiada dwustronną ekspozycję (wschód - zachód) i składa się z przedpokoju, 2 niezależnych pokoi, kuchni, łazienki wraz z toaletą.
Lokal wyposażony jest w instalację: wodociągowo-kanalizacyjną, centralnego ogrzewania, gazową i elektryczną.
Budynek, w którym posadowiony jest lokal wyposażony jest w domofon oraz instalację teletechniczną (telefon, telewizja, internet).
Wokół budynku duża liczba miejsc parkingowych.
Mieszkanie posiada bardzo dobrą lokalizację:
- przedszkole - 270m,
- szkoła - 500m,
- ośrodek zdrowia i apteka - 450m,
- Bank PKO BP S.A. - 350m,
- sklep LEWIATAN - 280m,
- sklep BIEDRONKA - 650m,
- kryta pływalnia, kort do tenisa ziemnego, orlik, skatepark - 450m,
- przystanek komunikacji miejskiej - 190m,
- w bliskiej odległości: las wolski, liczne place zabaw, siłownie zewnętrzne, paczkomaty, punkty usługowe, droga ekspresowa S1.
Miejscowość Wola dobrze skomunikowana z pobliskimi miastami: Pszczyna, Tychy, Oświęcim.

  • Na sprzedaż mieszkanie 2-pokojowe o powierzchni 49,46 m² balkon, piwnica, osobna kuchnia
  • 1 piętro w 4-piętrowym bloku rok budowy 1992
  • Wola ul. Dębowa
  • Spółdzielcze własnościowe  
  • Oferta bezpośrednio od właściciela dodana ponad miesiąc temu i zaktualizowana ponad tydzień temu
Ta nieruchomość może być Twoja od.. sprawdź
58000 zł (20%) Okres spłaty: 30 lat

Podobne mieszkania na sprzedaż

13
Mieszkanie 3-pokojowe Pszczyna Siedlice, ul. ks. bp. Bogedaina

339 000

43

3 pok.

Na sprzedaż 3-pokojowe mieszkanie, mieszczące się na II piętrze jednego z wielorodzinnych budynków w Pszczynie przy ul. Bogedaina. Powierzchnia użytkowa mieszkania to 43,56 mkw, składają się na nią 3 całkowicie niezależne pokoje, duża ustawna kuchnia z oknem, łazienka oraz przedpokój z wnęka n...

Zobacz ogłoszenie
8
Mieszkanie 3-pokojowe Wola

355 000

61

3 pok.

Sprzedam bez pośredników przestronne 3 - pokojowe mieszkanie o powierzchni 61 m2, z dużym balkonem i piwnicą. Mieszkanie środkowe, drugie piętro, jest bardzo ciepłe i słoneczne przez cały dzień (ekspozycja okien wschód - zachód). W skład mieszkania wchodzą: trzy niezależne pokoje, osobna kuchnia, ła...

Zobacz ogłoszenie
7
Mieszkanie 3-pokojowe Wola

290 000

54

3 pok.

Mieszkanie 54m2 w Woli, od właściciela, bez pośredników. Bardzo funkcjonalny układ, dwustronna ekspozycja zwiększa komfort podczas upałów. Lokal jest po częściowym remoncie, do wykończenia według własnego uznania. Możliwe warianty: - 2 sypialnie + salon z aneksem kuchennym lub - sypialnia, kuchnia ...

Zobacz ogłoszenie
5
Mieszkanie 2-pokojowe Wola

260 000

48

2 pok.

Witam! Posiadam na sprzedaż mieszkanie znajdujące się w miejscowości Wola. Idealne położenie: szkoła po drugiej stronie ulicy, blisko przedszkole, basen, sklepy. Mieszkanie to 48 m2: dwa pokoje, kuchnia osobno, łazienka i WC, balkon oraz dwie przynależne do niego piwnice. Mieszkanie znajduje się ...

Zobacz ogłoszenie
7
Mieszkanie 1-pokojowe Wola

180 000

36

1 pok.

Na sprzedaż przytulne mieszkanie o powierzchni 36 m², położone na 3. piętrze, co zapewnia większą intymność, ciszę oraz lepszy widok. Układ mieszkania: - jasny salon, - kuchnia, - przedpokój, - łazienka, - balkon - idealny na poranną kawę. Z okien oraz balkonu rozciąga się piękny widok na las, któ...

Zobacz ogłoszenie
10
Mieszkanie 3-pokojowe Pszczyna Osiedle Piastów, ul. Kazimierza Wielkiego

395 000

56

3 pok.

*Mieszkanie 3 pokojowe,kuchnia ,łazienka i osobno Wc ,z balkonem *Mieszkanie klimatyzowane *na przedpokoju garderoby w zabudowie *klatki schodowe zamykane ,duży zamykany korytarz * Dostępne miejsca parkingowe dla mieszkańców . W bliskiej okolicy w promieniu 300m * Żłobek,szkoła i przedszkole ...

Zobacz ogłoszenie