Mieszkanie na sprzedaż bez pośredników
ul. Okrąg Warszawa Powiśle

Mieszkanie 1-pokojowe Warszawa Powiśle, ul. Okrąg. Zdjęcie 1

Mieszkanie na sprzedaż bez pośredników Warszawa Powiśle ul. Okrąg · parter

752 000
17 913 zł/m²
41
1 pok.
Warszawa Powiśle, Okrąg - lokalizacja przybliżona
Bezpośrednio od właściciela

Jeśli nie potrzebujesz pośrednika, zaoszczędzisz około 22 600 zł. Potrzebujesz wsparcia? Skorzystaj z pomocy agenta.

Dwupokojowe mieszkanie na parterze trzypiętrowej kamienicy z 1934 roku.
Budynek wybudowany był dla pracowników Banku Polskiego.

Do mieszkania przynależy piwnica około 5 m2.
Okna z obu pokoi od strony zachodniej, na zielone podwórka, idealnie ciche.

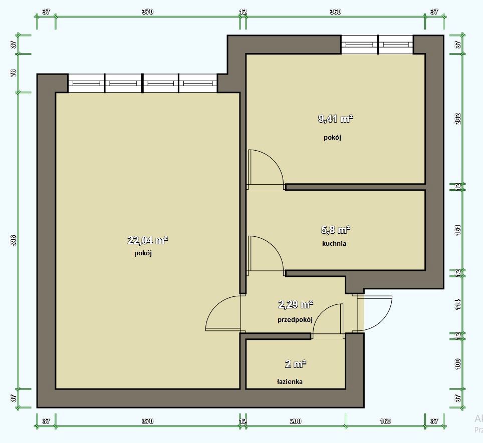
Powierzchnia pomieszczeń:
- pokoje: 22,04 i 9,41 m2,
- kuchnia: 5,8 m2,
- łazienka: 2 m2,
- przedpokój: 2,29 m2.

Wysokość pomieszczeń: 3 metry.

Budynek otaczają liczne parki i tereny rekreacyjne, do Bulwarów Wiślanych w prostej linii 450 metrów.
Wokół pełna infrastruktura i dobra komunikacja miejska.

  • Na sprzedaż mieszkanie 1-pokojowe o powierzchni 41,98 m² piwnica
  • Parter w 4-piętrowej kamienicy rok budowy 1934
  • Warszawa, Powiśle ul. Okrąg
  • Wyposażenie pralka, lodówka
  • Oferta bezpośrednio od właściciela dodana ponad miesiąc temu i zaktualizowana ponad tydzień temu
Ta nieruchomość może być Twoja od.. sprawdź
150000 zł (20%) Okres spłaty: 30 lat

Podobne mieszkania na sprzedaż

12
Mieszkanie 3-pokojowe Warszawa Powiśle, ul. Solec

865 000

46

3 pok.

Mam przyjemność zaprezentować Państwu wygodne mieszkanie na warszawskim Solcu. Prestiżowa i modna część Warszawy, jedna z najładniejszych, pełna pięknych kamienic, położona wśród trzech niesamowitych parków (Rydza Śmigłego, Sapera, Łazienki Królewskie) oraz licznych skwerów, blisko bulwarów wiślanyc...

Zobacz ogłoszenie
29
Mieszkanie 2-pokojowe Warszawa Powiśle, ul. Górnośląska

669 000

37

2 pok.

OFERTA BEZPOŚREDNIA, MIESZKANIE GOTOWE DO SPRZEDAŻY OD RĘKI - AGENCIOM NIERUCHOMOŚCI DZIĘKUJE Środmieście- Solec ul. Górnośląska | 37,51 m2 | 2 pokoje | balkon | 150 m do przystanku autobusowego Mieszkanie 37,51 m2, 2-pokojowe z oddzielną kuchnią, balkonem i piwnicą. Zlokalizowane na 7 piętrze w 1...

Zobacz ogłoszenie
7
Mieszkanie 3-pokojowe Warszawa Powiśle, ul. Górnośląska

860 000

48

3 pok.

Na sprzedaż 3-pokojowe mieszkanie na Powiślu, przy ul. Górnośląskiej - jednej z najbardziej cenionych lokalizacji w Warszawie. Lokalizacja: Warszawa - Powiśle, ul. Górnośląska. Świetnie skomunikowana, zielona część miasta. W bezpośrednim sąsiedztwie: Bulwary Wiślane, Łazienki Królewskie, Torwar, St...

Zobacz ogłoszenie
18
Mieszkanie 2-pokojowe Warszawa Powiśle, al. 3 Maja

795 000

38

2 pok.

Mam przyjemność zaprezentować 2-pokojowe mieszkanie o powierzchni 38,16 m² , położone na parterze zabytkowej kamienicy z 1930 roku, w jednej z najbardziej pożądanych lokalizacji Warszawy - na Powiślu . To propozycja dla osób, które chcą mieszkać w centrum miasta, a jednocześnie szukają spokoju, ...

Zobacz ogłoszenie
17
Mieszkanie 1-pokojowe Warszawa Powiśle, al. 3 Maja

849 000

37

1 pok.

Na sprzedaż mieszkanie 1-pokojowe, 37 m², z możliwością przerobienia na 2-pokojowe. Znajduje się w kamienicy, na 2 piętrze, na Powiślu. Budynek jest z cegły, posiada wysokie sufity (2,85 m). W salonie znajduje się balkon z widokiem na park od południa. Okno w kuchni wychodzi na wewnętrzny dziedzini...

Zobacz ogłoszenie
10
Mieszkanie 2-pokojowe Warszawa Powiśle, ul. Solec

770 890

41

2 pok.

Sprzedam mieszkanie dwupokojowe na ul. Solec o powierzchni 41,20 m2. W skład mieszkania wchodzą widna kuchnia, łazienka z oknem i korytarz. Ekspozycja południowo-zachodnia. Mieszkanie po remoncie. Każdy z pokoi posiada balkon. Podłoga drewniana. Budynek położony na osiedlu zamkniętym. Klatka scho...

Zobacz ogłoszenie