Mieszkanie na sprzedaż bez pośredników
ul. Bluszczańska Warszawa Mokotów

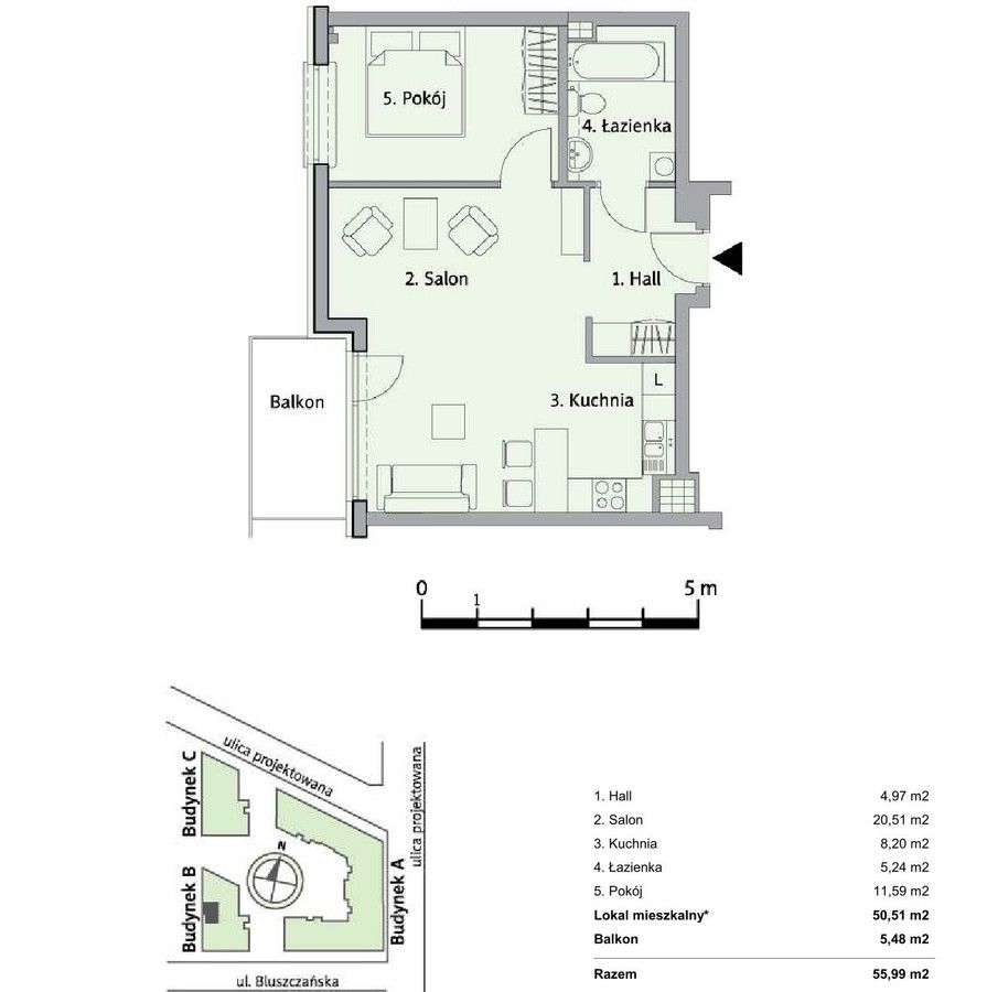
Mieszkanie 2-pokojowe Warszawa Mokotów, ul. Bluszczańska. Zdjęcie 1

Mieszkanie na sprzedaż bez pośredników Warszawa Mokotów ul. Bluszczańska · 1 piętro

1 049 000
20 772 zł/m²
50
2 pok.
Warszawa Mokotów, Bluszczańska - lokalizacja przybliżona
Bezpośrednio od właściciela

Jeśli nie potrzebujesz pośrednika, zaoszczędzisz około 31 500 zł. Potrzebujesz wsparcia? Skorzystaj z pomocy agenta.

Na sprzedaż, bezpośrednio od właściciela, komfortowe i ciche mieszkanie o powierzchni 50,51 m² (dodatkowo balkon 5,48 m²), zlokalizowane w inwestycji River House przy ul. Bluszczańskiej.

Mieszkanie jest umeblowane i wyposażone (pralka, zmywarka, piekarnik, lodówka, telewizor), wykończone w wysokim standardzie, z meblami robionymi na wymiar. Znajduje się na osiedlu strzeżonym z monitoringiem i całodobową ochroną.

Metraż pomieszczeń:
- Hall: 4,97 m²
- Salon: 20,51 m²
- Kuchnia: 8,20 m²
- Łazienka: 5,24 m²
- Pokój: 11,59 m²
- Balkon: 5,48 m²

Lokalizacja i otoczenie:
Mieszkanie znajduje się w spokojnej, zielonej okolicy z dobrą infrastrukturą. W pobliżu zlokalizowane są sklepy, restauracje, kawiarnie, przedszkola i apteki. Mieszkańców docenią także bliskość terenów rekreacyjnych, takich jak Łazienki Królewskie i Kopiec Powstania Warszawskiego. Zapewniona jest dobra komunikacja do centrum dzięki pobliskim liniom autobusowym i tramwajom.

Do mieszkania przynależy miejsce parkingowe w garażu podziemnym, dodatkowo płatne 50 000 zł.

Cena do negocjacji.

  • Na sprzedaż mieszkanie 2-pokojowe o powierzchni 50,50 m² balkon, miejsce w hali garażowej
  • 1 piętro w 3-piętrowym budynku rok budowy 2007
  • Warszawa, Mokotów ul. Bluszczańska
  • Mieszkanie w wysokim standardzie  
  • Wyposażenie lodówka, piekarnik, pralka, zmywarka
  • Oferta bezpośrednio od właściciela dodana ponad miesiąc temu i zaktualizowana ponad tydzień temu
Ta nieruchomość może być Twoja od.. sprawdź
210000 zł (20%) Okres spłaty: 30 lat

Podobne mieszkania na sprzedaż

6
Mieszkanie 3-pokojowe Warszawa Mokotów, ul. Władysława Sikorskiego

1 056 167

59

3 pok.

Na sprzedaż gotowe 3-pokojowe mieszkanie z balkonem, 59.5m² – ul. Sikorskiego, Mokotów, Warszawa Sprzedam mieszkanie o powierzchni 59.5 m², położone na 6 piętrze budynku w inwestycji Sikorskiego Vita przy ul. Sikorskiego w Warszawie. Mieszkanie składa się z: • salonu z aneksem kuchennym i wyjściem n...

Zobacz ogłoszenie
15
Mieszkanie 6-pokojowe Warszawa Mokotów, ul. Nałęczowska

1 090 000

68

6 pok.

Mieszkanie znajduje się przy ulicy Sobieskiego i Nałęczowskiej, na granicy Dzielnicy Mokotowa i Wilanowa. Obok znajduje się nowa nitka tramwajowa oraz szybki dojazd do centrum Warszawy. Lokal o powierzchni 68 m2 składa się z: - 6 pokoi jednoosobowych - 2 łazienek z WC i prysznicem - kuchni - przedp...

Zobacz ogłoszenie
6
Mieszkanie 3-pokojowe Warszawa Mokotów, ul. Władysława Sikorskiego

1 038 303

59

3 pok.

Na sprzedaż gotowe 3-pokojowe mieszkanie z balkonem, 59.5m² – ul. Sikorskiego, Mokotów, Warszawa Sprzedam mieszkanie o powierzchni 59.5 m², położone na 6 piętrze budynku w inwestycji Sikorskiego Vita przy ul. Sikorskiego w Warszawie. Mieszkanie składa się z: • salonu z aneksem kuchennym i wyjściem n...

Zobacz ogłoszenie
12
Mieszkanie 3-pokojowe Warszawa Mokotów, ul. Jana Maklakiewicza

1 060 000

56

3 pok.

SPRZEDAM BEZPOŚREDNIO, MOKOTÓW ATRAKCYJNE 3-POKOJOWE 56M2 !!! Spółdzielcze, własnościowe bardzo ładne rozkładowo 3-pokojowe mieszkanie 56 m2 na Mokotowie. W dość bliskiej odległości znajdują się warszawskie wyższe uczelnie jak: Uniwersytet Medyczny (ok.2 km), SGH (ok.3 km), Politechnika (ok.4 km)...

Zobacz ogłoszenie
21
Mieszkanie 4-pokojowe Warszawa Mokotów, ul. Nowosielecka

1 020 000

60

4 pok.

sprzedaż bezpośrednia. Zasadniczo sprzedaż bez udziału pośredników. Dopuszczam współpracę z biurem nieruchomości wyłącznie w przypadku, gdy pośrednik reprezentuje kupującego, a prowizja w całości pokrywana jest przez kupującego i zawarta w uzgodnionej cenie sprzedaży. Sprzedam mieszkanie o powierzch...

Zobacz ogłoszenie
8
Mieszkanie 4-pokojowe Warszawa Mokotów, ul. Puławska

1 020 000

67

4 pok.

SPRZEDAJE WAŚCICIEL Mieszkanie położne dwustronnie wschód i zachód. Salon na wschód, od ul. Puławskiej trzy pokoje i kuchnia na zachód od cichego zielonego podwórza. - 4 pokoje, oddzielna kuchnia, łazienka,wc, balkon typu loga. -67m2 Pulawska w okolicy ul.Niedzwiedzieĵ. -pod budynkiem przystanek tra...

Zobacz ogłoszenie