Mieszkanie na sprzedaż bez pośredników
ul. Dionizosa Warszawa Białołęka

Mieszkanie 2-pokojowe Warszawa Białołęka, ul. Dionizosa. Zdjęcie 1

Mieszkanie na sprzedaż bez pośredników Warszawa Białołęka ul. Dionizosa · 3 piętro

549 000
14 512 zł/m²
37
2 pok.
Warszawa Białołęka, Dionizosa - lokalizacja przybliżona
Bezpośrednio od właściciela

Jeśli nie potrzebujesz pośrednika, zaoszczędzisz około 16 500 zł. Potrzebujesz wsparcia? Skorzystaj z pomocy agenta.

Sprzedam nowe, 2-pokojowe mieszkanie na Białołęce, w stanie deweloperskim. Mieszkanie dobrze sprawdzi się pod własne cele mieszkaniowe, jak też pod wynajem.

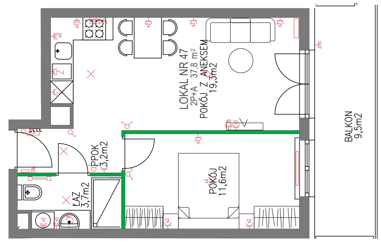
POWIERZCHNIA i ROZKŁAD

Całkowita powierzchnia mieszkania to 37.83m2. Rozkład:
- przedpokój (3.2m2),
- łazienka (3.7m2),
- sypialnia (11.6m2),
- salon z kuchnią (19.3m2).

Wedle preferencji, układ mieszkania można zmienić we własnym zakresie wydzielając kuchnię od salonu dodatkową ścianą, co stworzy układ z osobną kuchnią i dwoma osobnymi pokojami.

Do mieszkania przynależy duży balkon (9.5m2) na szerokość całego mieszkania. Mieszkanie ma korzystny układ nasłonecznienia: ekspozycja południowo-wschodnia. Atutem jest też ładny widok z okien, nieograniczony przez żadne zabudowania.

LOKALIZACJA

Budynek jest zlokalizowany w dzielnicy Białołęka, przy ul. Dionizosa 4. Mieszkanie znajduje się na 3 piętrze budynku. W nieodległym sąsiedztwie budynku zlokalizowane są usługi np.

- sklepy Żabka i Stokrotka (2 minuty spacerem),
- przedszkole publiczne (4 minuty spacerem),
- park leśny (5 minut spacerem),
- sklepy Biedronka i Selgros (13 minut spacerem).

Dużym plusem mieszkania jest komunikacja miejska: z pętli Winnica (5 minut spacerem) można bez przesiadek dojechać tramwajem do hubów komunikacyjnych miasta np.
- do stacji metra M1 Młociny (18 minut) - linia tramwajowa nr 2,
- do dworca Warszawa Centralna (43 minuty) - linia tramwajowa nr 17.
Dodatkowo z pętli Winnica jeździ autobus linii 503.

STANDARD

Mieszkanie oferowane jest w standardzie deweloperskim tzn. do własnej aranżacji i wykończenia. Budynek jest zupełnie nowy, został oddany do użytkowania w październiku tego roku. Budynek oferuje udogodnienia w postaci garażu podziemnego, rowerowni/wózkowki i zielonego patio z miejscem relaksu, z dostępem tylko dla mieszkańców.

Wszystkie załączone zdjęcia przedstawiają sprzedawane mieszkanie i budynek, w którym się ono znajduje (nie są to wizualizacje ani zdjęcia poglądowe).

SPRZEDAŻ

Cena mieszkania to 549,000 zł. Dodatkowo obowiązkowo płatne miejsce postojowe w garażu podziemnym 30,000 zł.

Możliwość zakupu od ręki (gdyż wykonane już zostało przeniesienie własności w formie aktu notarialnego).

Możliwość osobistego obejrzenia mieszkania po wcześniejszym umówieniu się.

Gratis dodaję dwa rabaty na wykończenie mieszkania: -10% w sklepach Castorama oraz Leroy Merlin.

Dodatkowo kupujący zwolniony jest z opłaty czynszu za mieszkanie za styczeń oraz luty, jak też za kontener budowlany na czas wykończenia mieszkania (koszty te już zostały poniesione).

Zapraszam do kontaktu po więcej informacji, chętnie odpowiem na wszelkie pytania. Nie jestem zainteresowany współpracą z biurami nieruchomości.

  • Na sprzedaż mieszkanie 2-pokojowe o powierzchni 37,83 m² balkon, miejsce w hali garażowej, aneks kuchenny
  • 3 piętro w 8-piętrowym bloku z windą, rok budowy 2025
  • Warszawa, Białołęka ul. Dionizosa
  • Mieszkanie wykończone (pod klucz)  
  • Odrębna własność z księgą wieczystą  
  • Świadectwo Energetyczne  
  • Oferta bezpośrednio od właściciela dodana ponad miesiąc temu i zaktualizowana ponad tydzień temu
Ta nieruchomość może być Twoja od.. sprawdź
110000 zł (20%) Okres spłaty: 30 lat

Podobne mieszkania na sprzedaż

21
Mieszkanie 2-pokojowe Warszawa Białołęka

568 900

48

2 pok.

Mamy przyjemność zaprezentować mieszkanie na sprzedaż w sąsiedztwie Kanału Żerańskiego. Jeśli szukasz ustawnego 2-pokojowego mieszkania w okolicy, gdzie wszystko co potrzebne do wygodnego życia będziesz miał na wyciągnięcie ręki, to ta oferta będzie idealna dla Ciebie! MIESZKANIE Mieszkanie znajd...

Zobacz ogłoszenie
14
Mieszkanie 2-pokojowe Warszawa Białołęka, ul. Aluzyjna

569 000

44

2 pok.

[SPRZEDAŻ BEZPOŚREDNIA, BEZ PROWIZJI. NIE WSPÓŁPRACUJĘ Z ŻADNYMI POŚREDNIKAMI] Przedmiotem oferty jest funkcjonalne, 2-pokojowe mieszkanie z aneksem kuchennym, położone na zamkniętym i monitorowanym osiedlu przy ul. Aluzyjnej 21F na Białołęce. MIESZKANIE - powierzchnia: 44,6 m² - 2 pokoje z otwart...

Zobacz ogłoszenie
11
Mieszkanie 2-pokojowe Warszawa Białołęka, ul. Mirabelki

544 750

36

2 pok.

Zakup bez PCC i bez prowizji dla biura nieruchomości! Mamy przyjemność zaprezentować Państwu 2-pokojowe mieszkanie o powierzchni 36,46 m2 położone na pierwszym piętrze w nowo powstającej inwestycji deweloperskiej Mirabelki 5, zlokalizowanej w zielonej i spokojnej części warszawskiej Białołęki.  Ukł...

Zobacz ogłoszenie
6
Mieszkanie 2-pokojowe Warszawa Białołęka, ul. Książkowa

545 000

39

2 pok.

2-pokojowe mieszkanie zlokalizowane na Białołęce przy ul. Książkowej BUDYNEK/OSIEDLE Mieszkanie znajduje się na 2 piętrze w 4 piętrowym budynku. Rok budowy: 2000 NIERUCHOMOŚĆ Mieszkanie o powierzchni 39,9m2 składa się z: -salonu, -sypialni, -aneksu kuchennego, -łazienki, -holu. Powierzchnia...

Zobacz ogłoszenie
9
Mieszkanie 3-pokojowe Warszawa Białołęka, ul. Konik Polny

515 000

44

3 pok.

3-pokojowe mieszkanie zlokalizowane na Białołęce przy ul. Konik Polny BUDYNEK/OSIEDLE Mieszkanie znajduje się na 2 piętrze w 2 piętrowym budynku. Rok budowy: 2025 NIERUCHOMOŚĆ Mieszkanie o powierzchni 44,18 m2 składa się z: -salonu z aneksem kuchennym, -dwóch pokoi, -łazienki, -przedpokoju. P...

Zobacz ogłoszenie
10
Mieszkanie 2-pokojowe Warszawa Białołęka, ul. Aluzyjna

535 000

44

2 pok.

Na sprzedaż funkcjonalne 2-pokojowe mieszkanie z loggią i prywatnym miejscem postojowym na osiedlu zamkniętym. Nieruchomość znajduje się na kameralnym osiedlu przy ul. Aluzyjnej w spokojnej części Białołęki. To idealna propozycja dla osób ceniących komfort, prywatność oraz bliskość terenów zielonych...

Zobacz ogłoszenie