Mieszkanie na sprzedaż bez pośredników
park Sobieskiego Wałbrzych Nowe Miasto

Mieszkanie 2-pokojowe Wałbrzych Nowe Miasto, park Sobieskiego. Zdjęcie 1

Mieszkanie na sprzedaż bez pośredników Wałbrzych Nowe Miasto park Sobieskiego · 4 piętro

279 000
5 486 zł/m²
50
2 pok.
Wałbrzych Nowe Miasto, park Sobieskiego - lokalizacja przybliżona
Bezpośrednio od właściciela

Jeśli nie potrzebujesz pośrednika, zaoszczędzisz około 8 400 zł. Potrzebujesz wsparcia? Skorzystaj z pomocy agenta.

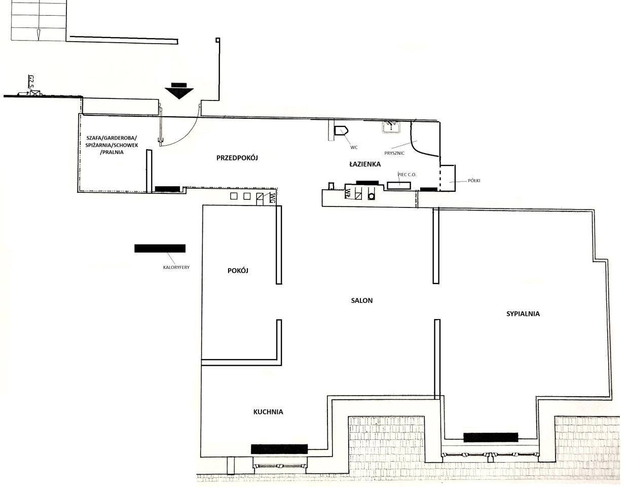
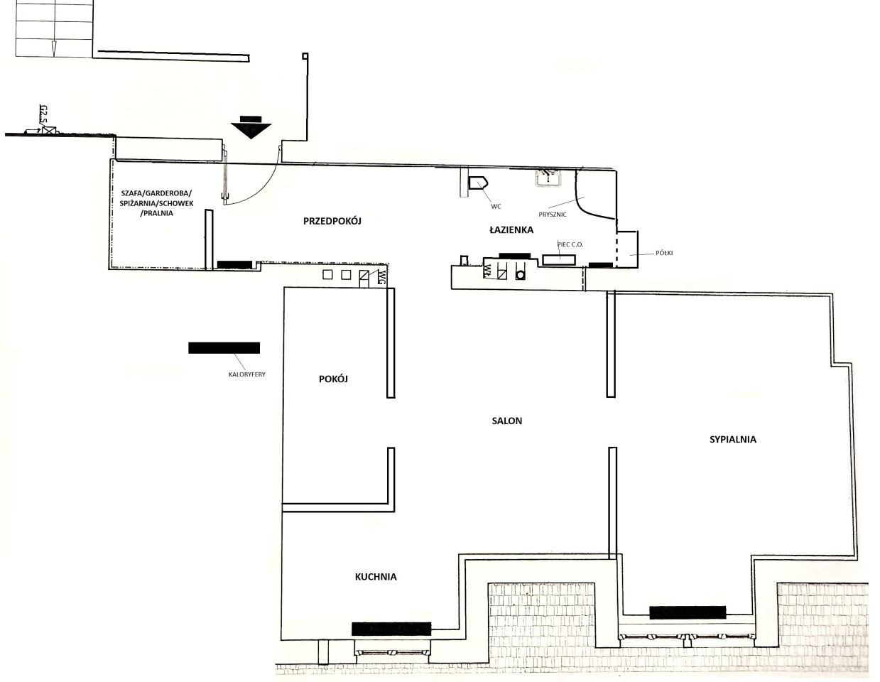
Oferuję na sprzedaż komfortowe mieszkanie o powierzchni 50,86 m², położone na IV (ostatnim) piętrze w zadbanej kamienicy na Nowym Mieście, przy głównej ulicy - bezpośrednio przy Parku Sobieskiego.

Mieszkanie po generalnym remoncie - gotowe do wprowadzenia.

LOKAL SKŁADA SIĘ Z:
- przestronnego salonu z aneksem kuchennym,
- dużej sypialni,
- niewielkiego pokoju, który może pełnić funkcję garderoby, pokoiku dla dziecka lub zostać połączony z salonem,
- łazienki z WC,
- przedpokoju z szafą mieszczącą pralkę, suszarkę oraz regały.

INFORMACJE DODATKOWE:
- Ogrzewanie oraz ciepłą wodę zapewnia nowoczesny, dwufunkcyjny piec gazowy TERMET.
- Do lokalu przynależy piwnica 1,68 m².

LOKALIZACJA:
Nieruchomość znajduje się w doskonałej lokalizacji - tuż przy Parku Sobieskiego, w otoczeniu zieleni i pełnej infrastruktury miejskiej.

W pobliżu: pizzeria, sklepy, piekarnia, szkoła, stadion, hala lekkoatletyczna, przystanki komunikacji miejskiej.
Szybki i wygodny dojazd do centrum.

Idealne mieszkanie dla osób ceniących komfort, funkcjonalny układ pomieszczeń i doskonałą lokalizację.

  • Na sprzedaż mieszkanie 2-pokojowe o powierzchni 50,86 m² piwnica, aneks kuchenny
  • 4 piętro w 4-piętrowej kamienicy  
  • Wałbrzych, Nowe Miasto park Sobieskiego
  • Wyposażenie pralka
  • Oferta bezpośrednio od właściciela dodana ponad miesiąc temu i zaktualizowana ponad tydzień temu
Ta nieruchomość może być Twoja od.. sprawdź
56000 zł (20%) Okres spłaty: 30 lat

Podobne mieszkania na sprzedaż

8
Mieszkanie 3-pokojowe Wałbrzych Nowe Miasto, ul. marsz. Józefa Piłsudskiego

265 000

66

3 pok.

Na sprzedaż mieszkanie o powierzchni 66m2 w centrum dzielnicy Nowe Miasto. Blisko przystanki, szkoły, szpital, przychodnie zdrowia i wszelkie punkty usługowe. Na drugim piętrze, składające się z trzech pokoi, kuchni, łazienki z wc i przedpokoju. Na podłogach panele, okna plastikowe, ogrzewanie elekt...

Zobacz ogłoszenie
11
Mieszkanie 2-pokojowe Wałbrzych Nowe Miasto, ul. Tadeusza Sygietyńskiego

229 000

48

2 pok.

Przedstawiam na sprzedaż: 2-pokojowe mieszkanie 43,8 m² + 2 piwnice | Nowe Miasto, ul. Sygietyńskiego Opis nieruchomości Powierzchnia użytkowa: 43,8 m² Dodatkowo: 2 piwnice (łącznie 4,8 m²) Piętro: 2. z 2 Układ: dwa niezależne pokoje (w jednym kominek z rozprowadzeniem ciepła), oddzielna kuchnia ...

Zobacz ogłoszenie
8
Mieszkanie 2-pokojowe Wałbrzych Nowe Miasto, ul. Michała Kleofasa Ogińskiego

249 900

43

2 pok.

Na sprzedaż dwupokojowe mieszkanie o powierzchni 43 m², położone w Wałbrzychu, w dzielnicy Nowe Miasto przy ul. Ogińskiego. W skład mieszkania wchodzą: dwa pokoje, kuchnia, łazienka z toaletą oraz przedpokój. Do lokalu przynależy również piwnica. Mieszkanie znajduje się na wysokim parterze i jest p...

Zobacz ogłoszenie
12
Mieszkanie 3-pokojowe Wałbrzych Nowe Miasto, ul. Wojciecha Bogusławskiego

349 000

65

3 pok.

Sprzedam 3-pokojowe mieszkanie, gotowe do zamieszkania. Mieszkanie w pełni umeblowane. Wszystkie meble i sprzęty w cenie. Kamienica po remoncie. Mieszkanie bardzo jasne. Dodatkowe atuty: - możliwość dzierżawy ogródka, - piwnica.

Zobacz ogłoszenie
8
Mieszkanie 2-pokojowe Wałbrzych Nowe Miasto

370 000

51

2 pok.

Na sprzedaż 51 m2 po kapitalnym remoncie Wałbrzych Nowe Miasto Na sprzedaż stylowe mieszkanie o powierzchni 51 m2, położone w dzielnicy Nowe Miasto w Wałbrzychu. Lokal po kapitalnym remoncie, wymienione wszystkie instalacje, nowe centralne ogrzewanie oraz nowy piec gazowy na gwarancji. Brak jakichk...

Zobacz ogłoszenie
8
Mieszkanie 2-pokojowe Wałbrzych Nowe Miasto, ul. Samosierry

179 000

51

2 pok.

Mieszkanie w dogodnym położeniu na Nowym Mieście. Cicha uliczka, bliskość (do 100 m) przystanków, sklepów, w pobliżu ośrodek zdrowia, szpital, szkoła, przedszkole, żłobek, park, stadion. I piętro (nad wysoką piwnicą). Mieszkanie dwustronne, w pełni rozkładowe - 2 pokoje, kuchnia (kuchenka gazowa, lo...

Zobacz ogłoszenie