Mieszkanie na sprzedaż bez pośredników
ul. Kozacka Toruń Koniuchy

Mieszkanie 2-pokojowe Toruń Koniuchy, ul. Kozacka. Zdjęcie 1

Mieszkanie na sprzedaż bez pośredników Toruń Koniuchy ul. Kozacka · 1 piętro

419 000
9 069 zł/m²
46
2 pok.
Toruń Koniuchy, Kozacka - lokalizacja przybliżona
Bezpośrednio od właściciela

Jeśli nie potrzebujesz pośrednika, zaoszczędzisz około 12 600 zł. Potrzebujesz wsparcia? Skorzystaj z pomocy agenta.

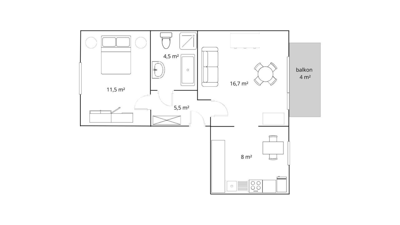
Na sprzedaż jasne 2-pokojowe mieszkanie o powierzchni 46,20 m², położone na 1. piętrze w 3-piętrowym bloku z cegły (rok budowy: 1994) przy ul. Kozackiej, osiedle Koniuchy – spokojna i dobrze skomunikowana dzielnica Torunia.

Układ i stan:

mieszkanie dwustronne, ustawione wschód-zachód
salon z balkonem i częściowo otwartą kuchnią od strony zachodniej,
oddzielna sypialnia od strony wschodniej,
zadbane wnętrza (mozaika podłogowa cyklinowana 1 rok temu)
przestrzenna łazienka z oddzielnym prysznicem i wanną,
plastikowe okna, balkon,
na życzenie kupującego sprzęt AGD: lodówka, nowa kuchnia indukcyjna,  nowa pralka,
meble kuchenne mogą pozostać – do uzgodnienia z kupującym.

Budynek:

kameralny, 3-piętrowy blok z cegły z 1994 roku,
ocieplona i odświeżona elewacja,
zadbana i przestronna klatka schodowa,
tylko dwa mieszkania na każdym piętrze,
cicha okolica, brak ruchliwej ulicy w pobliżu,
zadbana zieleń,
brak windy.

Dodatki i udogodnienia:

duży balkon,
piwnica 3,8m²,
około 200m do centrum handlowego

Lokalizacja – Kozacka/Koniuchy:

3 min pieszo do tramwajów nr 3 i 6 (ul. Długa i Legionów),
blisko przystanki autobusowe (ul. Wielki Rów, Legionów, Grudziądzka),
sklepy: Biedronka przy ul. Żwirki i Wigury, Aldi przy ul. Legionów – ok. 500 m, MCDonald przy ul. Grudziądzkiej, Centra handlowe przy ul. Polna
Szkoła Podstawowa nr 3 – około 300m, apteki, punkty usługowe – w sąsiedztwie.

Status prawny:

mieszkanie własnościowe,
posiada księgę wieczystą,
wolne od obciążeń.

Cena: 425 000 zł

Mieszkanie dostępne od zaraz

Oferta bezpośrednia – bez pośredników.

  • Na sprzedaż mieszkanie 2-pokojowe o powierzchni 46,20 m² balkon, piwnica, osobna kuchnia
  • 1 piętro w 3-piętrowym bloku bez windy, rok budowy 1994
  • Toruń, Koniuchy ul. Kozacka
  • Mieszkanie w dobrym stanie okna plastikowe
  • Odrębna własność z księgą wieczystą  
  • Wyposażenie kuchenka, lodówka, pralka
  • Oferta bezpośrednio od właściciela dodana ponad miesiąc temu i zaktualizowana ponad tydzień temu
Ta nieruchomość może być Twoja od.. sprawdź
84000 zł (20%) Okres spłaty: 30 lat

Podobne mieszkania na sprzedaż

6
Mieszkanie 3-pokojowe Toruń Koniuchy, ul. Legionów

490 000

51

3 pok.

Mieszkanie na sprzedaż – 51 m², 3 pokoje, balkon, III piętro. Bardzo dobra lokalizacja: w pobliżu sklepy, apteka, kościół oraz przychodnia. Świetny dojazd w różne części Torunia – w pobliżu przystanki autobusu miejskiego i tramwaju. W czynszu ogrzewanie, woda ciepła i zimna. Zapraszam do kontaktu....

Zobacz ogłoszenie
8
Mieszkanie 2-pokojowe Toruń Koniuchy

505 000

38

2 pok.

Z przyjemnością oferuję do sprzedaży piękne, w pełni umeblowane mieszkanie na toruńskim osiedlu Koniuchy. Mieszkanie wyróżnia się wysokim standardem wykończenia, jest świeżo wykończone i gotowe do natychmiastowego wprowadzenia się. Lokalizacja Mieszkanie usytuowane jest w doskonałej lokalizacji. St...

Zobacz ogłoszenie
9
Mieszkanie 2-pokojowe Toruń Koniuchy, ul. Janiny Bartkiewiczówny

429 840

39

2 pok.

BEZPOŚREDNIO :) Dostępne od 30.12.2025r. :) Na sprzedaż mieszkanie 39,8 m² - Toruń. - ul. Bartkiewiczówny 94D - Koniuchy - 3. piętro - cegła | rok budowy 2001 - niespotykany układ przy tym metrażu tj. 2 pokoje + osobna kuchnia | funkcjonalny rozkład, idealny dla pary, rodziny lub pod inwestycję (wyn...

Zobacz ogłoszenie
12
Mieszkanie 3-pokojowe Toruń Rubinkowo

419 000

49

3 pok.

Mam na sprzedaż 49 metrowe mieszkanie ,na Rubinkowie2 w Toruniu. Mieszkanie znajduje sie na parterze niskiego bloku , sklada sie z 3-ch rozkladowych pokoi, oddzielnej kuchni ,oraz loggii i duzej piwnicy. Mieszkanie do czesciowego remontu/odswiezenia. Lepszej lokalizacji na Rubinkowie nie ma :), wsz...

Zobacz ogłoszenie
15
Mieszkanie 2-pokojowe Toruń Koniuchy, ul. św. Faustyny

579 000

54

2 pok.

Oferta bezpośrednia od właściciela nieruchomości (bez pośredników). Oferuję nowoczesne, słoneczne mieszkanie o powierzchni 54,5 m², usytuowane na trzecim piętrze czteropiętrowego bloku z cegły, wybudowanego w 2000 roku. To idealne miejsce dla osób poszukujących wygody, funkcjonalności oraz możliwo...

Zobacz ogłoszenie
13
Mieszkanie 2-pokojowe Toruń Koniuchy, ul. Kozacka

395 000

48

2 pok.

Dzień dobry, oferowane mieszkanie składa się z 2 pokoi, oddzielnej kuchni, łazienki i ubikacji, przedpokoju oraz balkonu typu loggia. Blok jest z cegły (gruby mur - Budlex). Do mieszkania przynależy piwnica ok. 5m2. Opomiarowanie CO i prąd na klatce schodowej, wody w mieszkaniu. Otocznie bloku ciche...

Zobacz ogłoszenie