Mieszkanie na sprzedaż bez pośredników
ul. Hrubieszowska Szczecin Gumieńce

Mieszkanie 2-pokojowe Szczecin Gumieńce, ul. Hrubieszowska. Zdjęcie 1

Mieszkanie na sprzedaż bez pośredników Szczecin Gumieńce ul. Hrubieszowska · 1 piętro

588 000
11 094 zł/m²
53
2 pok.
Szczecin Gumieńce, Hrubieszowska - lokalizacja przybliżona
Bezpośrednio od właściciela

Jeśli nie potrzebujesz pośrednika, zaoszczędzisz około 17 600 zł. Potrzebujesz wsparcia? Skorzystaj z pomocy agenta.

Dzień dobry,
3-osobowa rodzina, po 5ciu latach, postanawia sprzedać w dobre ręce mieszkanie. UWAGA: My tam ciągle mieszkamy, wiec proszę się przygotować na widok nie tak uporządkowany jak na zdjęciach - na co dzień nie byłoby to możliwe z małym dzieckiem.
Oferta prywatna, bez pośredników proszę.
***
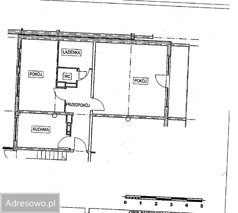
Powierzchnia: 53m2
Rozkładowe
2 pokoje: salon, mały pokój
kuchnia
łazienka
toaleta
korytarz
balkon typu otwarta loggia
***
Mieszkanie własnościowe, z "czystą" księgą wieczystą, bez hipoteki.
W pełni umeblowane, w tym piekarnik, pralka, TV, stoły, kanapy, krzesła, szafy, biurka itp jak na zdjęciach.
Internet, TV, telefon ze światłowodu
***
1-sze piętro w 4-piętrowym bloku z 1987 roku.
Salon i balkon z oknami wychodzącymi na południowy wschód.
Mały pokój i kuchnia na północny zachód.
Parkingi osiedlowe, istnieje możliwość wynajmu miejsc parkingowych na wyłączność bezpośrednio u Spółdzielni.
Bardzo duża ilość zieleni i miejsc spacerowych.
***
Ogrzewanie miejskie.
Prąd ENEA (rachunki co 2 miesiące - 150zł).
Czynsz 800zł, w tym ogrzewanie, woda, śmieci.
***
15min do centrum Szczecina.
10min do pętli tramwajowej Gumieńce.
5min do: terenów zielonych, spacerowych, drogi rowerowe.
3min do: centrum handlowego STER (oraz budowanego w bezpośredniej okolicy nowego kompleksu handlowego z kinem), Castoramy, osiedlowego sklepiku (Żabka tez u Nas jest), stacji benzynowej, przychodni, żłobka, przedszkola, fryzjera.
Piwnica około 2-3m2 - gratis.
***
Mieszkanie jest dostępne od zaraz - zatem zapraszamy do kontaktu.
Do zobaczenia.

  • Na sprzedaż mieszkanie 2-pokojowe o powierzchni 53 m² balkon, piwnica, możliwość wynajęcia garażu, osobna kuchnia
  • 1 piętro w 4-piętrowym bloku rok budowy 1987
  • Szczecin, Gumieńce ul. Hrubieszowska
  • Odrębna własność z księgą wieczystą  
  • Wyposażenie piekarnik, pralka
  • Oferta bezpośrednio od właściciela dodana ponad miesiąc temu i zaktualizowana ponad tydzień temu
Ta nieruchomość może być Twoja od.. sprawdź
118000 zł (20%) Okres spłaty: 30 lat

Podobne mieszkania na sprzedaż

7
Mieszkanie 3-pokojowe Szczecin Gumieńce, ul. Hrubieszowska

565 000

68

3 pok.

Adres: Hrubieszowska 47. /,31 Mieszkanie jest bardzo ciepłe bo w poprzednich latach przeprowadzono termomodernizację budynku. W ostatnich latach wymieniono też na nowe windy, odnowiono klatki schodowe i wejścia do budynku, oraz wybudowano nowe miejsca parkingowe. Mieszkanie wymaga dokończenia rem...

Zobacz ogłoszenie
14
Mieszkanie 2-pokojowe Szczecin Gumieńce, ul. Konstantego Maciejewicza

539 000

49

2 pok.

***Sprzedaż bezpośrednia - bez prowizji*** Zapraszam do zapoznania się z ofertą atrakcyjnego, dwupokojowego mieszkania położonego na osiedlu Reda w Szczecinie. **Opis nieruchomości** Mieszkanie znajduje się na 11. piętrze zadbanego budynku wielorodzinnego. Na powierzchnię 49 m² składają się: - pr...

Zobacz ogłoszenie
8
Mieszkanie 2-pokojowe Szczecin Gumieńce, ul. Zielonego Mostu

599 000

35

2 pok.

Oferta dla inwestora. Do sprzedaży mieszkanie z najemcą ( umowa do X.2027 z miesięcznym okresem wypowiedzenia, przychód miesięczny 2800 zł. ). Czynsz do wspólnoty 540 zł, możliwość dokupienia miejsca postojowego. Nie odpowiadam na e-maile, kontakt tylko telefoniczny.

Zobacz ogłoszenie
7
Mieszkanie 3-pokojowe Szczecin Gumieńce, ul. gen. Stanisława Kopańskiego

599 000

50

3 pok.

Oferuję na sprzedaż komfortowe, trzypokojowe mieszkanie położone na drugim piętrze kameralnego bloku z 2007 roku. Lokal jest w pełni umeblowany i wykończony, gotowy do wprowadzenia bez dodatkowych nakładów. Jasne, przestronne wnętrza oraz duże okna sprawiają, że mieszkanie jest wyjątkowo przytulne ...

Zobacz ogłoszenie
3
Mieszkanie 2-pokojowe Szczecin Gumieńce, ul. Polskich Marynarzy

619 000

49

2 pok.

Apartament zlokalizowany w jednej z najbardziej pożądanych I atrakcyjnych lokalizacji Szczecina - Gumience W sąsiedztwie Parku Przygodna - 3 minuty pieszo Centrum Handlowego - 7 minut pieszo Castoramy - 7 minut pieszo Żłobka i Przedszkola - 2 minuty pieszo Przychodni Szczecińskiej - 5 min...

Zobacz ogłoszenie
8
Mieszkanie 2-pokojowe Szczecin Gumieńce, ul. gen. Stanisława Kopańskiego

659 000

57

2 pok.

Opis nieruchomości Na sprzedaż 2-pokojowe mieszkanie +garderoba 57,50 m² w Szczecinie przy ul. Kopańskiego. Bezpieczne osiedle zamknięte, monitoring, szybki dojazd do centrum. To propozycja dla osób poszukujących komfortowego lokum w spokojnej, a jednocześnie doskonale skomunikowanej części miast...

Zobacz ogłoszenie