Mieszkanie na sprzedaż bez pośredników
ul. Nowa Stara Iwiczna

Mieszkanie 3-pokojowe Stara Iwiczna, ul. Nowa. Zdjęcie 1

Mieszkanie na sprzedaż bez pośredników Stara Iwiczna ul. Nowa · 1 piętro

769 500
13 500 zł/m²
57
3 pok.
Stara Iwiczna, Nowa - lokalizacja przybliżona
Bezpośrednio od właściciela

Jeśli nie potrzebujesz pośrednika, zaoszczędzisz około 23 100 zł. Potrzebujesz wsparcia? Skorzystaj z pomocy agenta.

Sprzedam przestronne mieszkanie trzypokojowe w kameralnym bloku z 2016 roku na I piętrze z windą usytuowane w Starej Iwicznej przy ul. Nowej, niedaleko centrum handlowego N-Park.

Idealne mieszkanie dla rodziny z dziećmi lub dla pary, w pełni umeblowane.

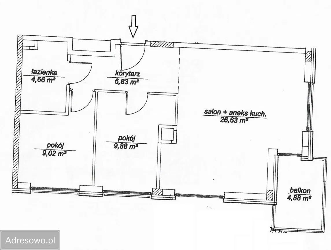
Na powierzchnię 57m2 składają się:
- salon z aneksem kuchennym (26,63m2),
- łazienka (4,66m2),
- sypialnia (9,02m2),
- pracownia (9,88m2),
- przedpokój (6,83m2).

Ekspozycja okienna południe - zachód, okna drewniane z moskitierami. Z salonu wyjście na balkon (4,88 m2).

Do mieszkania przynależy, dodatkowo płatne (zakup obligatoryjny):
- dwa miejsca parkingowe w garażu podziemnym (jedno za drugim) (50 000 zł),
- duża, podwójna komórka lokatorska (w sumie ~10m2) (30 000 zł).

Osiedle ogrodzone i monitorowane, na którym znajdują się plac zabaw, boisko oraz siłownia zewnętrzna.

W pobliżu:
- przychodnia LUX MED,
- siłownia ZDROFIT,
- liczne sklepy m.in. Biedronka, Aldi, Smyk, Pepco, Jysk, Żabka,
- żłobki oraz przedszkola.

W całym mieszkaniu ogrzewanie podłogowe. W salonie znajduje się klimakonwektor.

Mieszkanie w pełni umeblowane (pojemne szafy w zabudowie) i wyposażone: telewizor, lodówka, pralka, szeroka zmywarka, płyta indukcyjna, mikrofalówka i piekarnik w zabudowie. W łazience wanna z prysznicem.

Koszt utrzymania około 1000 zł miesięcznie przy 3-4 osobach + prąd.

Dostępne od lutego/marca 2026.

Mieszkanie może wymagać lekkiego odświeżenia (było zamieszkane przez rodzinę z dziećmi).

Nieruchomość ma założoną KW.

Oferta bezpośrednia. Pośrednikom dziękuję.

Jeśli nie odbiorę, prośba o kontakt SMS.

  • Na sprzedaż mieszkanie 3-pokojowe o powierzchni 57 m² balkon, piwnica, garaż/miejsce parkingowe, aneks kuchenny
  • 1 piętro w 3-piętrowym bloku z windą, rok budowy 2016
  • Stara Iwiczna ul. Nowa
  • Mieszkanie w stanie do zamieszkania okna drewniane
  • Odrębna własność z księgą wieczystą  
  • Wyposażenie pralka, lodówka, piekarnik, zmywarka, mikrofalówka
  • Oferta bezpośrednio od właściciela dodana ponad miesiąc temu i zaktualizowana ponad tydzień temu
Ta nieruchomość może być Twoja od.. sprawdź
154000 zł (20%) Okres spłaty: 30 lat

Podobne mieszkania na sprzedaż

7
Mieszkanie 2-pokojowe Stara Iwiczna

629 000

39

2 pok.

Na sprzedaż mieszkanie 2 - pokojowe | 39,49 m² | Stara Iwiczna | do wykończenia Na sprzedaż funkcjonalne, 2 - pokojowe mieszkanie o powierzchni 39,49 m2, zlokalizowane w Starej Iwicznej w nowoczesnym budynku z 2025 roku, w drugim etapie inwestycji "Bliskie Piaseczno". Lokal jest w stanie do wykońc...

Zobacz ogłoszenie
8
Mieszkanie 3-pokojowe Stara Iwiczna

785 000

53

3 pok.

**Na sprzedaż: Nowoczesne mieszkanie 53,72 m² w bloku oddanym do użytku w 2023 roku usytuowanego na pograniczu Starej Iwicznej i Piaseczna (Bliskie Piaseczno ul. Tukanów)** Oferujemy do sprzedaży przestronne, w pełni umeblowane mieszkanie o powierzchni 53,72 m², znajdujące się na 2. piętrze nowocze...

Zobacz ogłoszenie
10
Mieszkanie 3-pokojowe Stara Iwiczna, ul. Nowa

750 000

51

3 pok.

Mieszkanie trzypokojowe o powierzchni 51,21m2, usytuowane na parterze budynku oddanego do użytkowania w 2020r. Mieszkanie składa się z: -salonu z aneksem kuchennym: 22,72m2 -łazienki: 4,43m2 -korytarz: 3,35m2 -sypialni: 11,87m2 -sypialni 8,84m2 Do mieszkania przynależy ogródek o powierzchni 52m2....

Zobacz ogłoszenie
21
Mieszkanie 3-pokojowe Stara Iwiczna

844 000

56

3 pok.

Oferuję na sprzedaż 3-pokojowe mieszkanie w stanie deweloperskim o powierzchni 56,3 m2 z ogródkiem 54 m2, zlokalizowane przy ulicy Tukanów w Starej Iwicznej, położone na 1 piętrze 3-piętrowego budynku, w drugim etapie inwestycji Bliskie Piaseczno. Gotowe mieszkanie w stanie deweloperskim to idealna ...

Zobacz ogłoszenie
18
Mieszkanie 3-pokojowe Stara Iwiczna

787 000

59

3 pok.

Mam przyjemność zaprezentować mieszkanie trzypokojowe z dużym ogródkiem i tarasem położone w Starej Iwicznej pod Warszawą obok Piaseczna. Mieszkanie: • Gotowe do zamieszkania • Powierzchnia 59,59m2 • Słoneczny ogródek (109m2) z tarasem • Funkcjonalny układ - 2 sypialnie i salon z aneksem kuchennym...

Zobacz ogłoszenie
12
Mieszkanie 2-pokojowe Stara Iwiczna, ul. Nowa

769 000

59

2 pok.

Na sprzedaż mieszkanie o powierzchni 59 m², usytuowane na parterze budynku oddanego do użytku w 2014 roku. Lokal składa się z 2 pokoi z kuchnią. Do mieszkania przynależy ogródek o powierzchni 94 m² z dużym tarasem 23 m². Mieszkanie składa się z: - salonu z aneksem kuchennym: 30 m² - łazienki: 5,4 ...

Zobacz ogłoszenie