Mieszkanie na sprzedaż bez pośredników
Środa Śląska  

Mieszkanie 3-pokojowe Środa Śląska. Zdjęcie 1

Mieszkanie na sprzedaż bez pośredników Środa Śląska brak adresu · parter

675 000
12 934 zł/m²
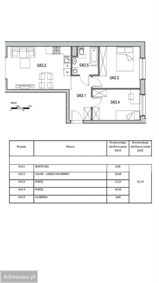
52
3 pok.
Środa Śląska - lokalizacja przybliżona
Bezpośrednio od właściciela

Jeśli nie potrzebujesz pośrednika, zaoszczędzisz około 20 300 zł. Potrzebujesz wsparcia? Skorzystaj z pomocy agenta.

Mieszkanie jest w pełni wykończone, zadbane i nie wymaga żadnych nakładów finansowych - idealne do wprowadzenia się od razu.
Funkcjonalny układ pomieszczeń zapewnia komfort zarówno dla singla, pary, jak i rodziny z dzieckiem.

Atuty nieruchomości:
- parter - idealny dla rodzin z dziećmi, seniorów lub osób z ograniczoną mobilnością
- prywatny ogródek z nasadzonymi tujami od strony drogi - świetne miejsce na poranną kawę, zabawę z dzieckiem lub odpoczynek
- komórka lokatorska w cenie (ok. 3,3m2 przy samym mieszkaniu)
- miejsce postojowe w cenie
- spokojna, kameralna okolica

Lokalizacja i okolica:
Ul. Na Polance to spokojna i dobrze skomunikowana część Środy Śląskiej.
W najbliższej okolicy:
- sklepy spożywcze - ok. 300-500 m
- szkoła i przedszkole - ok. 800 m - 1 km
- żłobek - ok. 1 km
- apteka, przychodnia, punkty usługowe - ok. 1 km
- centrum miasta / rynek - ok. 1,2 km
- tereny spacerowe i rekreacyjne - w bezpośrednim sąsiedztwie osiedla

Dogodny dojazd do Wrocławia - szybki wyjazd z miasta oraz dostęp do komunikacji kolejowej.

Dla kogo to mieszkanie?
- dla rodziny z dzieckiem - parter + ogródek
- dla pary szukającej gotowego mieszkania
- dla seniorów - brak schodów
- jako inwestycja pod wynajem

Zapraszam do kontaktu celem umówienia się na prezentację, gdyż aktualnie zamieszkiwane jest przez najemców (możliwość przedłużenia najmu).

!!! INFORMACJA DLA POŚREDNIKÓW !!!
Posiadam doświadczenie w pracy jako pośrednik nieruchomości, dlatego ofertę prowadzę samodzielnie jako osoba prywatna i nie podejmuję współpracy w zakresie jej dalszego wystawiania.
Z przyjemnością zapraszam pośredników wyłącznie z konkretnymi, zdecydowanymi klientami.

Marta

  • Na sprzedaż mieszkanie 3-pokojowe o powierzchni 52,19 m² taras, piwnica, garaż/miejsce parkingowe, ogródek
  • Parter w 4-piętrowym bloku z windą, rok budowy 2020
  • Środa Śląska  
  • Mieszkanie w stanie do zamieszkania  
  • Odrębna własność z księgą wieczystą  
  • Oferta bezpośrednio od właściciela dodana ponad miesiąc temu i zaktualizowana ponad tydzień temu
Ta nieruchomość może być Twoja od.. sprawdź
135000 zł (20%) Okres spłaty: 30 lat

Podobne mieszkania na sprzedaż

12
Mieszkanie 3-pokojowe Środa Śląska, ul. Legnicka

570 000

69

3 pok.

Mieszkanie o powierzchni 69,16 m² znajduje się na parterze w bloku. Posiada 3 pokoje, osobną kuchnię, łazienkę, WC, balkon, piwnicę i miejsce parkingowe. Kuchnia wyposażona jest w sprzęty, takie jak lodówka, piekarnik i płyta grzewcza gazowa. Łazienka z prysznicem zapewnia komfort na co dzień. Miesz...

Zobacz ogłoszenie
8
Mieszkanie 2-pokojowe Środa Śląska, pl. Wolności

493 000

58

2 pok.

Na sprzedaż niezwykle komfortowe mieszkanie w doskonałej lokalizacji. Lokal znajduje się w samym sercu średzkiego rynku - nad sklepem Dino, na 3. piętrze w nowoczesnej kamienicy z 2002 roku. Mieszkanie składa się z: • salonu z aneksem kuchennym z wydzieloną częścią wypoczynkową i jadalnią, • sypia...

Zobacz ogłoszenie
8
Mieszkanie 2-pokojowe Wróblowice

615 000

48

2 pok.

Na sprzedaż mieszkanie parterowe 48m składające się z salonu i aneksu kuchennego (25m) oraz sypialni (13m), łazienki (5m) i przedpokoju (5m). Do mieszkania przynależy ogródek o powierzchni 122m. Inwestycja Zielona Lutynia w podwrocławskich Wróblowicach zrealizowana przez wrocławskiego dewelopera WP...

Zobacz ogłoszenie
12
Mieszkanie 2-pokojowe Środa Śląska, ul. Na Polance

485 000

40

2 pok.

Sprzedam mieszkanie 2-pokojowe z umeblowanym aneksem kuchennym, łazienką i zabudowaną przestronną szafą w przedpokoju, w nowym budownictwie, z balkonem i miejscem postojowym. Opłaty 311 zł/miesięcznie z wodą i śmieciami. Aneks kuchenny wyposażony w sprzęt AGD. Piętro 3, z windą.

Zobacz ogłoszenie
4
Mieszkanie 2-pokojowe Środa Śląska, ul. Na Polance

430 000

34

2 pok.

Sprzedam mieszkanie na Polance w Środzie Śląskiej. Obecnie wynajmowane, z lokatorami chętnymi do kontynuacji najmu. Po więcej informacji zapraszam pod numerem tel.

Zobacz ogłoszenie
9
Mieszkanie 4-pokojowe Wróblowice, ul. Kazimierza Wielkiego

695 000

54

4 pok.

Na sprzedaż mieszkanie na spokojnym osiedlu Lutynia, składające się z jasnego salonu z aneksem, 2 sypialni, łazienki i na drugim poziomie kolejna sypialnia/biuro i druga łazienka. - Mieszkanie po podłodze ma około 90 m2. - Do mieszkania przynależy komórka lokatorska i 2 miejsca postojowe. - Na obyd...

Zobacz ogłoszenie