Mieszkanie na sprzedaż bez pośredników
ul. Ksawerego Dunikowskiego Słupsk

NOWA OFERTA
Mieszkanie 3-pokojowe Słupsk, ul. Ksawerego Dunikowskiego. Zdjęcie 1

Mieszkanie na sprzedaż bez pośredników Słupsk ul. Ksawerego Dunikowskiego · 3 piętro

350 000
7 143 zł/m²
49
3 pok.
Słupsk, Ksawerego Dunikowskiego - lokalizacja przybliżona
Bezpośrednio od właściciela

Jeśli nie potrzebujesz pośrednika, zaoszczędzisz około 10 500 zł. Potrzebujesz wsparcia? Skorzystaj z pomocy agenta.

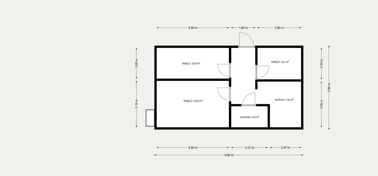
Na sprzedaż: 3-pokojowe mieszkanie w Słupsku, przy ul. Ksawerego Dunikowskiego.

Mieszkanie o powierzchni 49 m², położone na trzecim piętrze.

Mieszkanie składa się z:
- trzech pokoi (jeden pokój z balkonem),
- kuchni,
- łazienki.
Do mieszkania przynależy piwnica.

Czynsz administracyjny wynosi około 600 zł.

W pobliżu znajdują się:
sklepy i punkty usługowe,
przystanki komunikacji miejskiej,
place zabaw.

To mieszkanie to doskonała baza pod własną aranżację - idealne zarówno do zamieszkania, jak i inwestycja pod wynajem.

Zapraszam do kontaktu.

  • Na sprzedaż mieszkanie 3-pokojowe o powierzchni 49 m² balkon, piwnica
  • 3 piętro w bloku  
  • Słupsk ul. Ksawerego Dunikowskiego
  • Oferta bezpośrednio od właściciela dodana dodana dzisiaj
Ta nieruchomość może być Twoja od.. sprawdź
70000 zł (20%) Okres spłaty: 30 lat

Podobne mieszkania na sprzedaż

1
Mieszkanie 4-pokojowe Słupsk, ul. Koszalińska

385 000

57

4 pok.

To mieszkanie czeka właśnie na Ciebie! Zyskujesz wygodę, oszczędzasz pieniądze! Jeśli szukasz komfortowej przestrzeni do życia rodzinnego za rozsądną cenę, na pożądanym parterze i w świetnej lokalizacji, z doskonałym dostępem do wszelkich dogodności, w zadbanym bloku otoczonym zielenią to dobrze że...

Zobacz ogłoszenie
4
Mieszkanie 3-pokojowe Słupsk, ul. Romana Dmowskiego

370 000

61

3 pok.

Szukasz nowego miejsca do zamieszkania? To 61 m², 3-pokojowe mieszkanie na trzecim piętrze w bloku. Mieszkanie jest umeblowane, z podłogami z dywanu i drewna. Kuchnia ma płytki i białe ściany. Z okien rozciąga się widok na ulicę Dmowskiego. W pobliżu znajdziesz parki i sklepy. W okolicy są szkoł...

Zobacz ogłoszenie
6
Mieszkanie 3-pokojowe Słupsk, al. 3 Maja

340 000

48

3 pok.

Oferuję na sprzedaż 3-pokojowe mieszkanie o powierzchni 48 m². Mieszkanie znajduje się na trzecim piętrze w bloku 4-piętrowym na ulicy 3-go Maja. Jest umeblowane, posiada piwnicę, balkon i jest gotowe do wprowadzenia. Mieszkanie do remontu według własnego gustu. Ogrzewanie i CWU miejskie. Lokalizac...

Zobacz ogłoszenie
8
Mieszkanie 3-pokojowe Słupsk, ul. Koszalińska

340 000

47

3 pok.

Sprzedam mieszkanie 3 pokojowe na Ulicy Koszalińskiej o powierzchni 47 m2 z piwnicą. Mieszkanie znajduje się na 3 piętrze, do zamieszkania od zaraz. Mieszkanie własnościowe. Polecam.

Zobacz ogłoszenie
10
Mieszkanie 3-pokojowe Słupsk

345 000

59

3 pok.

Szukasz komfortowego mieszkania w dobrej lokalizacji? To 3-pokojowe mieszkanie o powierzchni 59,5 m² jest gotowe do zamieszkania. Znajduje się na 4. piętrze w bloku z 1970 roku. Posiada balkon, piwnicę oraz pełne własności. W mieszkaniu używasz nowoczesnych plastikowych okien i miejskiego ogrzewani...

Zobacz ogłoszenie
1
Mieszkanie 3-pokojowe Słupsk, ul. Kosynierów Gdyńskich

335 000

47

3 pok.

Do sprzedania trzy pokojowe mieszkanie na osiedlu Hubalczyków, 3. piętro. Mieszkanie ma widną kuchnię, osobno WC i łazienkę. Pokoje są widne i ustawne, żaden z pokoi nie jest przejściowy. Okna plastikowe, piwnica. Mieszkanie do remontu.

Zobacz ogłoszenie