Mieszkanie na sprzedaż bez pośredników
ul. Wysoka Siemiatycze

Mieszkanie 2-pokojowe Siemiatycze, ul. Wysoka. Zdjęcie 1

Mieszkanie na sprzedaż bez pośredników Siemiatycze ul. Wysoka · 4 piętro

300 000
8 571 zł/m²
35
2 pok.
Siemiatycze, Wysoka - lokalizacja przybliżona
Bezpośrednio od właściciela

Jeśli nie potrzebujesz pośrednika, zaoszczędzisz około 9 000 zł. Potrzebujesz wsparcia? Skorzystaj z pomocy agenta.

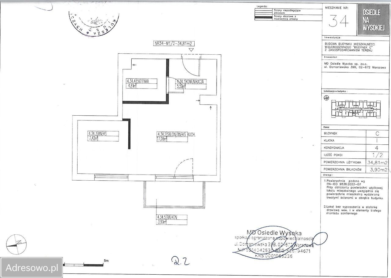
Bezpośrednio na sprzedaż przedstawiam nowe mieszkanie o powierzchni 35 m², znajdujące się na 4. piętrze nowoczesnego bloku z windą. Budynek oddany do użytku w 2025 roku. Blok należy do wspólnoty mieszkaniowej, dzięki czemu mamy tak niski czynsz oraz pełną własność lokalu.
Mieszkanie składa się z salonu z aneksem kuchennym, oddzielnej sypialni oraz łazienki. Super ułożenie okien oraz balkonu w stosunku do stron świata, dzięki czemu mamy dużo naturalnego światła w pokojach. Widok z okna również na plac zabaw oraz las.
Interesuje nas sprzedaż bezpośrednia, więc z góry chciałbym podziękować agencjom nieruchomości. Istnieje możliwość dokupienia miejsca parkingowego znajdującego się za szlabanem w bezpośrednim sąsiedztwie budynku.

  • Oferta z rynku pierwotnego
  • Na sprzedaż mieszkanie 2-pokojowe o powierzchni 35 m² balkon, piwnica, aneks kuchenny
  • 4 piętro w 5-piętrowym bloku z windą, rok budowy 2025
  • Siemiatycze ul. Wysoka
  • Mieszkanie do wykończenia okna plastikowe
  • Odrębna własność z księgą wieczystą  
  • Oferta bezpośrednio od właściciela dodana ponad miesiąc temu i zaktualizowana ponad tydzień temu
Ta nieruchomość może być Twoja od.. sprawdź
60000 zł (20%) Okres spłaty: 30 lat

Podobne mieszkania na sprzedaż

28
Mieszkanie 2-pokojowe Siemiatycze, ul. 11 Listopada

260 000

36

2 pok.

Pięknie położony, zadbany, niski blok na Tarasach. Budynek dosłownie wkomponowany jest w park, skąpany w zieleni a zamieszczone powyżej zdjęcia udowadniają ten fakt. Cicho, zieleń, cywilizacja. 36,25m2. Strategicznie usytuowane mieszkanie, wszędzie blisko. Szkoła podstawowa, szkoła średnia, szkoła m...

Zobacz ogłoszenie
8
Mieszkanie 2-pokojowe Siemiatycze, ul. 11 Listopada

255 000

46

2 pok.

Sprzedam mieszkanie własnościowe w Siemiatyczach, woj. podlaskie, ul. 11 Listopada. Mieszkanie usytuowane jest na pierwszym piętrze w bloku dwupiętrowym, a jego powierzchnia wynosi 46 m². Składa się z dwóch pokoi, kuchni i łazienki. Balkon jest duży i zabudowany, co jest dodatkowym udogodnieniem. Pr...

Zobacz ogłoszenie
8
Mieszkanie 2-pokojowe Siemiatycze, ul. Wysoka

360 000

48

2 pok.

Mieszkanie 48 m² na sprzedaż - ul. Wysoka, Siemiatycze. Mieszkanie po niedawnym generalnym remoncie - gotowe do zamieszkania od zaraz. W mieszkaniu znajdują się: - Salon - przestronny, dobrze doświetlony dużymi oknami, z wyjściem na balkon; - Drugi pokój - idealny na pokój dziecięcy, biuro lub syp...

Zobacz ogłoszenie
12
Mieszkanie 2-pokojowe Siemiatycze, ul. Wysoka

316 000

48

2 pok.

Dzień dobry, oferuję do sprzedaży klimatyczne mieszkanie o powierzchni 48,35m2 położone przy ul. Wysokiej w Siemiatyczach. Lokal usytuowany jest na II piętrze w 4-piętrowym budynku. Mieszkanie Składa się z 2 pokoi, w tym obszernego salonu ,kuchni, łazienki i holu. Mieszkanie jest rozkładowe z bar...

Zobacz ogłoszenie
8
Mieszkanie 2-pokojowe Siemiatycze

265 000

47

2 pok.

Sprzedam mieszkanie w Siemiatyczach, os. Wysokie. 47 m, 4. piętro. Blok z bloczka, docieplony od nowości. Mieszkanie składa się z dwóch pokoi, kuchnia, łazienka, duży taras, duża piwnica. Cena: 265 tys. zł. Obecny czynsz: 470 zł mies. Sprzedaż bezpośrednia od właściciela. Więcej informacji na t...

Zobacz ogłoszenie
8
Mieszkanie 2-pokojowe Siemiatycze, ul. Wysoka

350 000

34

2 pok.

Mieszkanie 34 m² na sprzedaż – ul. Wysoka, Siemiatycze Mieszkanie w pełni umeblowane – gotowe do zamieszkania od zaraz. W mieszkaniu znajdują się: - Salon – wyposażony w wygodną kanapę i drewniany stół z krzesłami; - Aneks kuchenny - wysoki standard wykończenia na wymiar, sprzęty AGD dobrej jakośc...

Zobacz ogłoszenie