Mieszkanie na sprzedaż bez pośredników
ul. Chełmońskiego Rybnik Meksyk

Mieszkanie 3-pokojowe Rybnik Meksyk, ul. Chełmońskiego. Zdjęcie 1

Mieszkanie na sprzedaż bez pośredników Rybnik Meksyk ul. Chełmońskiego · 2 piętro

516 000
12 008 zł/m²
42
3 pok.
Rybnik Meksyk, Chełmońskiego - lokalizacja przybliżona
Bezpośrednio od właściciela

Jeśli nie potrzebujesz pośrednika, zaoszczędzisz około 15 500 zł. Potrzebujesz wsparcia? Skorzystaj z pomocy agenta.

Wysoka funkcjonalność w kompaktowym opakowaniu.

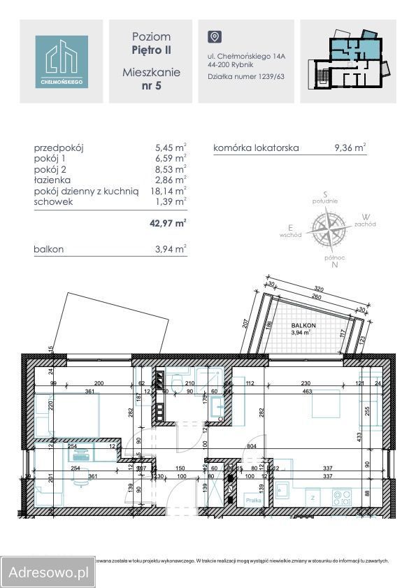
6 mieszkań w nowo przebudowanym budynku jednorodzinnym w spokojnej i zielonej okolicy. Wśród nich lokal numer 5: 3 pokoje w 43 m², w pełni urządzone i przygotowane do zamieszkania.

• Mieszkanie po pełnym wykończeniu.
• Gotowe podłogi.
• Ściany w wysokim standardzie z gładziami i fakturą.
• W pełni wykończona łazienka.
• Zabudowy stolarskie (kuchnia, szafy).
• Pełne wyposażenie (lodówka, zmywarka, płyta indukcyjna).
• Umeblowane (poza mniejszą sypialnią).
• Balkon 4 m².

Bardzo jasny lokal z ekspozycją wschodnio-południową, z ciągłym dostępem do słońca. Mieszkanie zostało wykończone i urządzone w standardzie premium.

Do mieszkania przynależy olbrzymia piwnica (prawie 10 m²) oraz miejsce postojowe przynależne do mieszkania.

Budynek po pełnej modernizacji termicznej i architektonicznej, zasilany pompą ciepła. Dom wolnostojący znajduje się w cichej, zielonej okolicy, 3 min. od zjazdu na obwiednię południową, 5 min. piechotą od Parku Hajda - największego i najstarszego parku w Rybniku.

  • Na sprzedaż mieszkanie 3-pokojowe o powierzchni 42,97 m² balkon, piwnica, garaż/miejsce parkingowe
  • 2 piętro w 2-piętrowym domu wielorodzinnym  
  • Rybnik, Meksyk ul. Chełmońskiego
  • Mieszkanie w stanie do zamieszkania  
  • Odrębna własność z księgą wieczystą  
  • Wyposażenie lodówka, zmywarka
  • Oferta bezpośrednio od właściciela dodana ponad miesiąc temu i zaktualizowana ponad tydzień temu
Ta nieruchomość może być Twoja od.. sprawdź
103000 zł (20%) Okres spłaty: 30 lat

Podobne mieszkania na sprzedaż

9
Mieszkanie 3-pokojowe Rybnik Maroko-Nowiny, ul. Pawła Cierpioła

398 800

47

3 pok.

Oferuję na sprzedaż komfortowe, w pełni wyremontowane mieszkanie o powierzchni 47,8 m². RYBNIK OS. DWOREK 398 800,00 ZŁ Układ pomieszczeń: • salon z aneksem kuchennym • dwa niezależne pokoje • łazienka • przedpokój • balkon • duża piwnica Mieszkanie znajduje się na 1 piętrze w kameralnym bloku, w...

Zobacz ogłoszenie
8
Mieszkanie 3-pokojowe Rybnik Maroko-Nowiny, ul. Orzepowicka

415 000

55

3 pok.

Sprzedaż prywatna bez pośredników. Oferuję na sprzedaż mieszkanie 3 pokoje w Rybniku na Nowinach przy ulicy Orzepowickiej z dużym parkingiem o powierzchni 55,7 m², znajdujące się na 10. piętrze z pięknymi widokami. Blok nie zasłania żaden blok z obu stron. W pobliżu znajduje się mnóstwo sklepów, prz...

Zobacz ogłoszenie
10
Mieszkanie 3-pokojowe Rybnik Śródmieście, ul. Jeana Chalotta

498 000

52

3 pok.

Na sprzedaż wyjątkowo jasne i spokojne mieszkanie po generalnym remoncie, gotowe do zamieszkania bez dodatkowych nakładów finansowych. Lokal położony jest w samym centrum Rybnika, a jednocześnie w cichej, wewnętrznej części osiedla na ul. Chalotta. To miejsce, w którym z jednej strony masz wszystko ...

Zobacz ogłoszenie
19
Mieszkanie 3-pokojowe Rybnik Maroko-Nowiny, ul. Orzepowicka

435 000

56

3 pok.

Sprzedaż prywatna Całkowicie nowo wyremontowane, trzypokojowe mieszkanie położone w Rybniku przy ul. Orzepowickiej. Mieszkanie na 7 piętrze. Winda. Bardzo duży balkon typu loggia. Powierzchnia mieszkania bez balkonu wynosi dokladnie 55,7m2. Kuchnia otwarta na pokój dzienny, obszerny przedpokój. Pięk...

Zobacz ogłoszenie
36
Mieszkanie 3-pokojowe Rybnik Raszowiec

490 000

58

3 pok.

Na sprzedaż komfortowe mieszkanie dwupokojowe w stanie zaawansowanym deweloperskim , położone w kameralnym, nowoczesnym apartamentowcu na drugim piętrze, w Rybniku, obręb Raszowiec. Budynek znajduje się w spokojnej i ustronnej lokalizacji , a jednocześnie zapewnia szybki dojazd do autostrady...

Zobacz ogłoszenie
10
Mieszkanie 2-pokojowe Rybnik Paruszowiec, ul. Stawowa

435 000

54

2 pok.

Na sprzedaż M-3 Rybnik Stawowa - powierzchnia: 54,9 m2 - piętro: 1/2 - balkon - komórka lokatorska - przypisane 1 miejsce postojowe - ogrzewanie gazowe - niska opłata na rzecz wspólnoty: 185 zł - meble pozostają na wyposażeniu - układ pomieszczeń: salon połączony z aneksem kuchenn...

Zobacz ogłoszenie