Mieszkanie na sprzedaż bez pośredników
ul. Miętowa Plewiska

NOWA OFERTA
Mieszkanie 3-pokojowe Plewiska, ul. Miętowa. Zdjęcie 1

Mieszkanie na sprzedaż bez pośredników Plewiska ul. Miętowa · 1 piętro

579 000
9 814 zł/m²
59
3 pok.
Plewiska, Miętowa - lokalizacja przybliżona
Bezpośrednio od właściciela

Jeśli nie potrzebujesz pośrednika, zaoszczędzisz około 17 400 zł. Potrzebujesz wsparcia? Skorzystaj z pomocy agenta.

Kupujący nie płaci Prowizji! Oferujemy na sprzedaż funkcjonalne, zadbane mieszkanie o powierzchni 59 m², położone na 1. piętrze w niskim, kameralnym bloku z 2018 roku na osiedlu Zielarskim w Plewiskach.
To idealna propozycja dla osób szukających gotowego do wprowadzenia mieszkania z niskimi kosztami utrzymania, w spokojnej lokalizacji, a jednocześnie z szybkim dojazdem do Poznania.

NAJWAŻNIEJSZE ATUTY:
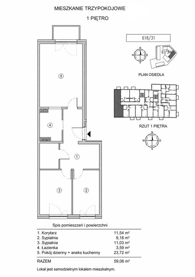
* 3 niezależne pokoje - bardzo funkcjonalny układ
* przestronny salon z wyjściem na balkon
* osobna, w pełni wyposażona kuchnia
* niski czynsz - poniżej 200 zł
* budynek z 2018 roku
* mieszkanie gotowe do wprowadzenia - bez nakładów
* wolne od zaraz
* kupujący nie płaci prowizji

UKŁAD POMIESZCZEŃ:
Mieszkanie jest bardzo ustawne i komfortowe w codziennym użytkowaniu:
* salon z dużym oknem tarasowym i wyjściem na balkon
* 2 niezależne sypialnie
* oddzielna kuchnia w zabudowie (piekarnik, okap, lodówka)
* łazienka z wanną i funkcją prysznica
* przestronny korytarz

Każde pomieszczenie posiada niezależne wejście, co znacząco podnosi funkcjonalność mieszkania.

STANDARD:
Mieszkanie jest czyste, zadbane i gotowe do zamieszkania - nie wymaga żadnych dodatkowych nakładów finansowych.
Neutralna kolorystyka daje dużą swobodę aranżacji i możliwość dopasowania wnętrza do własnego stylu.

LOKALIZACJA:
Nieruchomość znajduje się przy ul. Miętowej, na popularnym osiedlu Zielarskim w Plewiskach - lokalizacji, która jest naturalnym przedłużeniem Poznania.
W najbliższej okolicy znajdują się:
* sklepy: Biedronka, Lidl, Żabka, Delikatesy Centrum
* restauracje i punkty usługowe
* przedszkola i nowa szkoła
* przychodnie i apteki
* tereny zielone, place zabaw, ścieżki rowerowe

CENA: 579 000 zł

ZAPRASZAM NA PREZENTACJĘ.
To mieszkanie to świetna propozycja zarówno dla rodziny, jak i inwestycyjnie.
Skontaktuj się z naszym biurem Meissner Property aby umówić się na oglądanie.
Kupujący nie płaci prowizji.
Niniejsze ogłoszenie ma charakter informacyjny i nie stanowi oferty w rozumieniu art. 66 §1 Kodeksu cywilnego.

  • Na sprzedaż mieszkanie 3-pokojowe o powierzchni 59 m² balkon, osobna kuchnia
  • 1 piętro w 2-piętrowym bloku rok budowy 2018
  • Plewiska ul. Miętowa
  • Wyposażenie lodówka, piekarnik
  • Oferta bezpośrednio od właściciela dodana dodana dzisiaj
Ta nieruchomość może być Twoja od.. sprawdź
116000 zł (20%) Okres spłaty: 30 lat

Podobne mieszkania na sprzedaż

8
Mieszkanie 3-pokojowe Plewiska, ul. prof. Jana Kozłowskiego

590 000

59

3 pok.

Na sprzedaż mieszkanie w Plewiskach, na osiedlu przy ul. Jana Kozłowskiego. Lokalizacja: - 10 min pieszo od stacji kolejowej Poznań Junikowo - PKP, Koleje Wielkopolskie - ze stacji 13 min do Dworca Poznań Główny. - 500 m od placu zabaw. - 100 m od Plewiskowej ścieżki spacerowej. Mieszkanie przestr...

Zobacz ogłoszenie
8
Mieszkanie 3-pokojowe Komorniki, os. Spółdzielcze

450 000

61

3 pok.

Na sprzedaż 3 pokojowe mieszkanie o powierzchni 61 m2 na 1 piętrze w bloku na os. Spółdzielczym w Komornikach k/Poznania. O mieszkaniu: 1 piętro. 3 pokoje (duży pokój z balkonem). Kuchnia. Łazienka. Spiżarnia. Piwnica. Garaż. Mieszkanie w pełni umeblowane. Rolety zewnętrzne. Bez czynszowe. Ogrzewan...

Zobacz ogłoszenie
11
Mieszkanie 2-pokojowe Komorniki, ul. Cyprysowa

529 000

53

2 pok.

Mieszkanie o powierzchni 53,91 m² w Komornikach przy ul. Cyprysowej. Poznaj szczegóły tej wyjątkowej oferty - to może być Twoje nowe miejsce do życia. Na sprzedaż 2-pokojowe mieszkanie o powierzchni 53,91 m², usytuowane na 2. piętrze w bloku. W skład nieruchomości wchodzą: ● kuchnia ● 2 niezależne p...

Zobacz ogłoszenie
17
Mieszkanie 4-pokojowe Komorniki, ul. Stefanii Czubryj

665 000

75

4 pok.

Nowe

Dziękuję za kontakt agentom nieruchomości. Bezczynszowe 4-pokojowe mieszkanie w szeregowcu na pierwszym piętrze o powierzchni użytkowej 75m2 (ze skosami 80,5m2) oraz hala garażowa (25m2) w bryle budynku, współdzielona z jednym sąsiadem. Blisko do lasu - 300m, mieszkanie położone w Otulinie Wielkopo...

Zobacz ogłoszenie
19
Mieszkanie 2-pokojowe Plewiska, ul. Tęczowa

580 000

46

2 pok.

Zapraszamy do zapoznania się z ofertą komfortowego mieszkania położonego w podpoznańskich Plewiskach, w spokojnej i dobrze zorganizowanej okolicy. Lokalizacja zapewnia ciszę i kameralną atmosferę, a jednocześnie wygodny dojazd do Poznania. Najważniejsze atuty: Wysoki standard wykończenia Taras z w...

Zobacz ogłoszenie
15
Mieszkanie 4-pokojowe Plewiska, ul. Jarzębinowa

760 000

71

4 pok.

Polecam 4-pokojowe mieszkanie położone na 1 piętrze w niskim 3 piętrowym bloku wybudowanym w 2019 roku. Świetna lokalizacja w Plewiskach przy ul. Jarzębinowej - na granicy z Poznaniem zapewnia doskonały dojazd do centrum Poznania autem lub komunikacją miejską (autobus, tramwaj, kolej). Układ mieszk...

Zobacz ogłoszenie