Mieszkanie na sprzedaż bez pośredników
ul. Stanisława Wyspiańskiego Mielec

Mieszkanie 2-pokojowe Mielec, ul. Stanisława Wyspiańskiego. Zdjęcie 1

Mieszkanie na sprzedaż bez pośredników Mielec ul. Stanisława Wyspiańskiego · 3 piętro

265 000
5 638 zł/m²
47
2 pok.
Mielec, Stanisława Wyspiańskiego - lokalizacja przybliżona
Bezpośrednio od właściciela

Jeśli nie potrzebujesz pośrednika, zaoszczędzisz około 8 000 zł. Potrzebujesz wsparcia? Skorzystaj z pomocy agenta.

Sprzedam mieszkanie na ulicy Wyspiańskiego w Mielcu, blisko centrum.

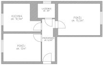
Mieszkanie do remontu, znajduje się na 3. piętrze. Ma powierzchnię 47,5 m2.
Składa się z dwóch pokoi o powierzchniach 12 m2 i 15,5 m2, oraz dużej kuchni o powierzchni 10,5 m2.

Do mieszkania przynależy komórka lokatorska w piwnicy.

Czynsz do MZBM wynosi około 900 zł dla 2 osób. Ogrzewanie i ciepła woda z MPEC są wliczone w czynsz.

Oferta od osoby prywatnej.

Zapraszam do kontaktu.

  • Na sprzedaż mieszkanie 2-pokojowe o powierzchni 47 m² piwnica
  • 3 piętro w bloku  
  • Mielec ul. Stanisława Wyspiańskiego
  • Mieszkanie w stanie do remontu  
  • Oferta bezpośrednio od właściciela dodana ponad tydzień temu
Ta nieruchomość może być Twoja od.. sprawdź
53000 zł (20%) Okres spłaty: 30 lat

Podobne mieszkania na sprzedaż

9
Mieszkanie 2-pokojowe Mielec, ul. Jana Kochanowskiego

250 000

47

2 pok.

Sprzedam mieszkanie 47m2, 4 piętro, 2 pokoje, łazienka+ubikacja, kuchnia, na ulicy Kochanowskiego. Mieszkanie jest do remontu.

Zobacz ogłoszenie
8
Mieszkanie 2-pokojowe Mielec, ul. Antoniego Kocjana

259 000

40

2 pok.

Na sprzedaż mieszkanie o powierzchni 40 m², zlokalizowane w Mielcu przy ul. Kocjana 19 (39-300). Zapraszam do kontaktu pod nr tel i umówienia się na oglądanie mieszkania. Opis mieszkania: powierzchnia: 40 m² piętro: 3 balkon: 1,28 m² piwnica: 2,85 m² Układ pomieszczeń: salon - 14,98 m² pokój - 6,...

Zobacz ogłoszenie
1
Mieszkanie 2-pokojowe Mielec, ul. Kędziora

270 000

38

2 pok.

Sprzedam Mieszkanie w Mielcu ul. Kędziora. 2 pokoje, kuchnia, łazienka, WC, do kapitalnego remontu. Bardzo dobra lokalizacja. 

Zobacz ogłoszenie
8
Mieszkanie 2-pokojowe Mielec, ul. Stanisława Wyspiańskiego

266 000

49

2 pok.

Sprzedam mieszkanie: salon połączony z kuchnią, sypialnia oddzielnie, łazienka z WC. Znajduje się na 2 piętrze w bloku 3-piętrowym, klatka środkowa, wejście zabezpieczone domofonem. Mieszkanie posiada balkon oraz przynależną piwnicę. Jest zasilane prądem, bez gazu. Ciepła woda dostarczana jest z sie...

Zobacz ogłoszenie
8
Mieszkanie 2-pokojowe Mielec, ul. Fryderyka Chopina

280 000

48

2 pok.

Sprzedam mieszkanie w Mielcu w bardzo dobrej lokalizacji. Chopina 1. Drugie piętro, 2 pokoje. Powierzchnia 48 m2. Odrębna własność. Kontakt i wszelkie pytania pod nr tel. 

Zobacz ogłoszenie
6
Mieszkanie 2-pokojowe Mielec, ul. Leopolda Staffa

265 000

47

2 pok.

Oferujemy na sprzedaż słoneczne, dwustronne mieszkanie o funkcjonalnym rozkładzie, położone w Mielcu przy ul. Staffa. Lokal usytuowany jest na III piętrze, o powierzchni 47,10 m². Mieszkanie do częściowego remontu. Mieszkanie składa się z 2 pokoi (jeden z balkonem), jasnej kuchni, łazienki z WC or...

Zobacz ogłoszenie