Mieszkanie na sprzedaż bez pośredników
ul. Władysława Orkana Lublin

Mieszkanie 3-pokojowe Lublin, ul. Władysława Orkana. Zdjęcie 1

Mieszkanie na sprzedaż bez pośredników Lublin ul. Władysława Orkana · 2 piętro

749 900
9 999 zł/m²
75
3 pok.
Lublin, Władysława Orkana - lokalizacja przybliżona
Bezpośrednio od właściciela

Jeśli nie potrzebujesz pośrednika, zaoszczędzisz około 22 500 zł. Potrzebujesz wsparcia? Skorzystaj z pomocy agenta.

Szukasz spokojnego miejsca dla rodziny, ale z szybkim dostępem do miasta?

To mieszkanie łączy komfort, funkcjonalność i wyjątkową lokalizację przy terenach zielonych.

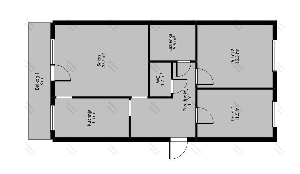
Powierzchnia: 75 m² | Piętro 2/3 | Balkon | Piwnica

Wyjątkowa lokalizacja na zamkniętym, kameralnym osiedlu.

Tuż za posesją znajduje się zagospodarowany wąwóz z licznymi ścieżkami pieszo-rowerowymi, placami zabaw i plenerowymi siłowniami - idealna przestrzeń do codziennej rekreacji bez wyjeżdżania z miasta.

Układ idealny dla rodziny:

Salon 20,7 m² z wyjściem na przestronny balkon (ok. 8 m²)
Oddzielna kuchnia 9,5 m² z pełnym wyposażeniem
Sypialnia 15,3 m² z dużą szafą typu Komandor
Sypialnia 11,5 m²
Łazienka 5,5 m² z wanną i parawanem prysznicowym
Oddzielne WC 1,7 m²
Przedpokój 11 m² z szafą typu Komandor

Ekspozycja okien:

sypialnie wschód
salon i kuchnia zachód

Najważniejsze zalety:

kameralne, zamknięte osiedle
bardzo niskie koszty utrzymania (czynsz jedynie 450 zł)
ogrzewanie gazowe - pełna kontrola kosztów
mieszkanie środkowe = niskie rachunki
duży, zielony teren rekreacyjny przynależny do bloku z placem zabaw
piwnica o powierzchni 2 m²

Parkowanie: miejsce parkingowe na terenie zamkniętym (monitorowanym) - gwarancja bezpieczeństwa i wygody (dodatkowo płatne 50 000 zł).

Cena: do negocjacji.

Oferta prywatna, pośrednikom dziękujemy.

Powyższe treści służą wyłącznie celom informacyjnym i nie stanowią oferty handlowej w rozumieniu art. 66, ust. 1 Kodeksu Cywilnego.

  • Na sprzedaż mieszkanie 3-pokojowe o powierzchni 75 m² balkon, piwnica, zewnętrzne miejsce parkingowe, osobna kuchnia
  • 2 piętro w 3-piętrowym bloku rok budowy 2007
  • Lublin ul. Władysława Orkana
  • Wyposażenie pralka, lodówka, kuchenka, piekarnik, zmywarka, mikrofalówka
  • Oferta bezpośrednio od właściciela dodana ponad tydzień temu
Ta nieruchomość może być Twoja od.. sprawdź
150000 zł (20%) Okres spłaty: 30 lat

Podobne mieszkania na sprzedaż

8
Mieszkanie 4-pokojowe Lublin

715 000

70

4 pok.

Mieszkanie, które samo na siebie pracuje. Idealne dla pary, lub singla, chcących zainwestować. Mieszkanie 2 w 1, czyli 2 samodzielne kawalerki w jednym dużym mieszkaniu (wspólny tylko korytarz, z pięknym dużym lustrem i obrazami Wyczółkowskiego na ścianach). Mieszkanie idealne pod wynajem lub dziele...

Zobacz ogłoszenie
8
Mieszkanie 3-pokojowe Lublin, ul. Nowy Świat

750 000

61

3 pok.

Sprzedam mieszkanie własnościowe na ul. Nowy Świat w bloku z 2017 r. w niskiej zabudowie, w pełni umeblowane i klimatyzowane. Gotowe do zamieszkania. Założona księga wieczysta, świadectwo energetyczne, bez zadłużenia. Mieszkanie posiada orientację południe - północ i składa się z: - 3 pokoi: 22,56...

Zobacz ogłoszenie
8
Mieszkanie 4-pokojowe Lublin, ul. Nałkowskich

779 844

78

4 pok.

Mieszkanie znajduje się na 2. piętrze (drugie piętro z czterech), składa się z: - 4 pokoi - kuchni - łazienki - toalety - garderoby. Przeprowadzony w 2019r. remont obejmował łazienkę, wc, kuchnię (zabudowa zostaje), nowe podłogi - deska dębowa, nowe drzwi wewnętrzne. Z jednego pokoju wydzielona gar...

Zobacz ogłoszenie
8
Mieszkanie 3-pokojowe Lublin, ul. Hetmańska

735 000

70

3 pok.

--- UWAGA!!! Ogłoszenie grzecznościowe --- Ja osobiście nie jestem właścicielem mieszkania, ale jestem członkiem rodziny osób sprzedających. Ja tylko wystawiam ogłoszenie. W sprawie szczegółów proszę kontaktować się z podanymi numerami telefonów. --- --- --- --- --- --- --- --- --- --- --- --- --- -...

Zobacz ogłoszenie
8
Mieszkanie 3-pokojowe Lublin, ul. Ksawerego Dunikowskiego

730 000

63

3 pok.

Ta wyjątkowa nieruchomość to idealna propozycja dla rodziny lub pary. Układ Mieszkania: Mieszkanie zostało zaprojektowane z myślą o maksymalnym komforcie mieszkańców: * Salon z aneksem kuchennym: Sercem domu jest przestronny, jasny salon z wyjściem na balkon. Nowoczesna zabudowa kuchenna w kontrast...

Zobacz ogłoszenie
32
Mieszkanie 3-pokojowe Lublin, ul. Turkusowa

739 000

76

3 pok.

Na sprzedaż funkcjonalne i przestronne mieszkanie trzypokojowe, położone w atrakcyjnej dzielnicy Czuby przy ul. Turkusowej. Układ pomieszczeń: - salon z aneksem kuchennym (zabudowa kuchenna wraz ze sprzętem AGD), - dwie ustawne sypialnie, - łazienka wyposażona w wannę oraz prysznic, - oddz...

Zobacz ogłoszenie