Mieszkanie na sprzedaż bez pośredników
ul. Romantyczna Lublin Czuby

Mieszkanie 3-pokojowe Lublin Czuby, ul. Romantyczna. Zdjęcie 1

Mieszkanie na sprzedaż bez pośredników Lublin Czuby ul. Romantyczna · 1 piętro

579 500
9 484 zł/m²
61
3 pok.
Lublin Czuby, Romantyczna - lokalizacja przybliżona
Bezpośrednio od właściciela

Jeśli nie potrzebujesz pośrednika, zaoszczędzisz około 17 400 zł. Potrzebujesz wsparcia? Skorzystaj z pomocy agenta.

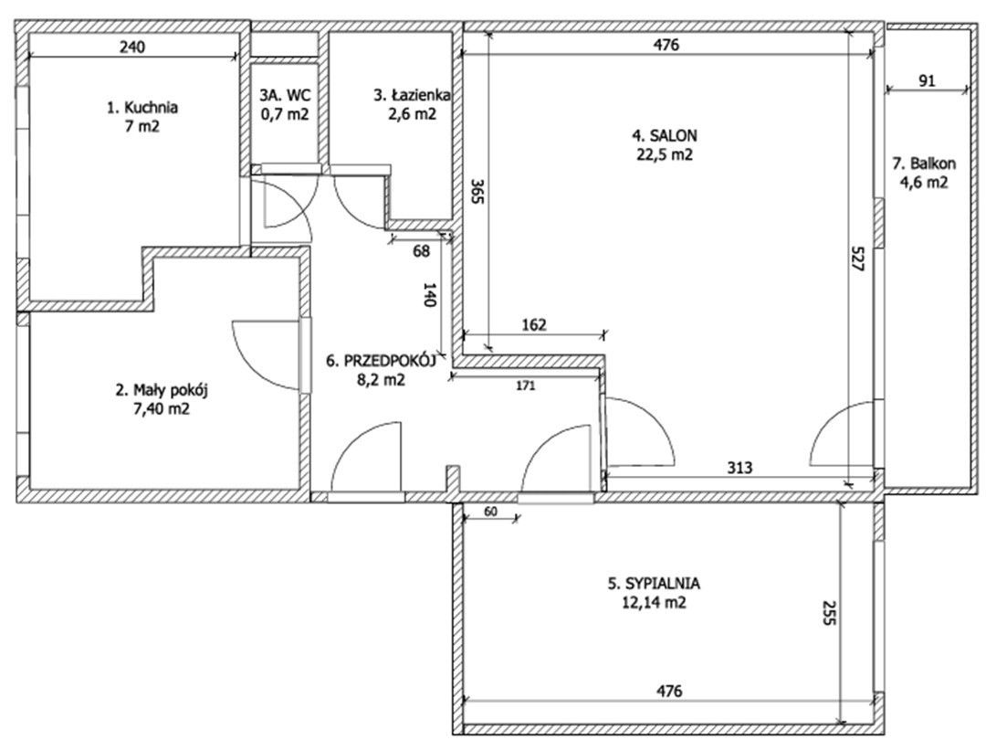
Na sprzedaż funkcjonalne, 3‑pokojowe mieszkanie o powierzchni 61,10 m², odświeżone, położone w jednej z najbardziej cenionych dzielnic Lublina - Czuby Północne, przy ul. Romantycznej 9.

Lokal znajduje się na 1. piętrze wysokiego, ocieplonego bloku, usytuowanego na otwartej przestrzeni, co zapewnia ładny widok na zieleń, poczucie prywatności oraz dobre doświetlenie wnętrz.

Układ pomieszczeń idealny pod rodzinę lub wynajem:
- przestronny, odrębny salon,
- 2 niezależne pokoje (jedna z sypialni ma pojemną, wbudowaną szafę),
- osobna kuchnia z oknem (do własnej aranżacji - zdjęcie poglądowe pokazujące funkcjonalność pomieszczenia),
- łazienka z miejscem na pralkę oraz oddzielne WC,
- przestronny przedpokój z miejscem na szafy i szafki,
- duży balkon,
- piwnica oraz schowek na półpiętrze.

Dodatkowo istnieje możliwość zmiany układu - przeniesienia kuchni do dużego salonu (bliskość pionów), co pozwala uzyskać dodatkową sypialnię lub gabinet.

Atuty mieszkania:
- jasne, przestronne i bardzo ustawne wnętrza z funkcjonalnym układem,
- dwustronna ekspozycja okien,
- idealne dla rodziny, pary lub jako inwestycja pod wynajem,
- oddzielna, jasna kuchnia i oddzielne WC - rzadki i bardzo praktyczny atut przy 3 pokojach,
- pełna infrastruktura oraz dostęp do komunikacji i terenów zielonych w najbliższym otoczeniu.

Stan techniczny:
Mieszkanie po odświeżeniu, przygotowane do własnej aranżacji i stworzenia nowoczesnej przestrzeni dopasowanej do indywidualnych potrzeb. Kuchnia nieumeblowana.
Budynek przeszedł termomodernizację, a w mieszkaniu zamontowano nowe okna, co przekłada się na lepszy komfort cieplny i niższe koszty ogrzewania (mieszkanie bardzo ciepłe). Media z sieci miejskiej.

Dodatkowe udogodnienia:
- komórka lokatorska na półpiętrze - bardzo rzadkie i niezwykle wygodne rozwiązanie,
- piwnica,
- duży parking ogólnodostępny pod blokiem.

Lokalizacja - Czuby Północne, ul. Romantyczna:
- spokojna, zielona i bliska centrum część Lublina,
- doskonała lokalizacja - w sąsiedztwie Politechnika Lubelska, szybki dojazd do UMCS, KUL oraz centrum,
- idealna dla rodzin z dziećmi lub pod najem,
- w pobliżu: sklepy (Lidl), punkty usługowe, szkoła z nowoczesnym kompleksem sportowym, przedszkola,
- bardzo dobra komunikacja miejska - szybki dojazd do centrum,
- liczne tereny zielone i ścieżki rowerowe (bliskość wąwozów i zalewu), cisza i pełna infrastruktura osiedlowa.

  • Na sprzedaż mieszkanie 3-pokojowe o powierzchni 61,10 m² balkon, piwnica, osobna kuchnia
  • 1 piętro w 10-piętrowym bloku z windą, rok budowy 1980
  • Lublin, Czuby ul. Romantyczna
  • Mieszkanie w dobrym stanie okna plastikowe
  • Spółdzielcze własnościowe  
  • Świadectwo Energetyczne  
  • Oferta bezpośrednio od właściciela dodana ponad miesiąc temu i zaktualizowana ponad tydzień temu
Ta nieruchomość może być Twoja od.. sprawdź
116000 zł (20%) Okres spłaty: 30 lat

Podobne mieszkania na sprzedaż

18
Mieszkanie 3-pokojowe Lublin Czuby, ul. Biedronki

582 144

60

3 pok.

Na sprzedaż trzypokojowe mieszkanie o powierzchni 60,64m2 na ul. Biedronki. POMIESZCZENIA: - salon - sypialnia - druga sypialnia - oddzielna kuchnia - łazienka - toaleta Do mieszkania przynależą dwie piwnice. Mieszkanie mieści się na 2. piętrze trzypiętrowego bloku. Ogrzewanie i ciepła woda z si...

Zobacz ogłoszenie
17
Mieszkanie 3-pokojowe Lublin Czuby, ul. Perłowa

585 000

59

3 pok.

Oferujemy przestronne i funkcjonalne 3-pokojowe mieszkanie o komfortowej powierzchni 59,2 m², położone na 4. piętrze czteropiętrowego, zadbanego budynku w jednej z najbardziej poszukiwanych lokalizacji - Czuby w Lublinie. Odrębna własność z księgą wieczystą. Mieszkanie charakteryzuje się praktyczny...

Zobacz ogłoszenie
8
Mieszkanie 3-pokojowe Lublin Czuby, ul. Fantastyczna

540 000

61

3 pok.

Mieszkanie 61 m2, 3 oddzielne pokoje, na osiedlu Skarpa, Czuby, ul. Fantastyczna, na 3. piętrze z windą. Mieszkanie odświeżone, bardzo ustawne, przestronne, ciepłe i jasne. Okna PCV, 2 duże szafy przesuwne. Okna wychodzą na północ oraz południe. W skład mieszkania wchodzi: - duży pokój (około 25 m...

Zobacz ogłoszenie
1
Mieszkanie 4-pokojowe Lublin Czuby, ul. Romantyczna

620 000

73

4 pok.

Mieszkanie blisko uczelni idealne na wynajem lub dla rodziny

Zobacz ogłoszenie
12
Mieszkanie 3-pokojowe Lublin Czuby, ul. Wyżynna

565 000

59

3 pok.

Mieszkanie znajduje się przy ul. Wyżynnej 10 w Lublinie na 3 piętrze w 4 piętrowym bloku, składa się z 3 pokoi, kuchni, przedpokoju, WC i łazienki oraz balkonu, do mieszkania przynależy również piwnica. Jest możliwość wynajęcia tez drugiej piwnicy Powierzchnia 59m2: salon ok. 18m2 pokój ok.12m2 p...

Zobacz ogłoszenie
13
Mieszkanie 3-pokojowe Lublin Czuby, ul. Rycerska

585 000

59

3 pok.

Na sprzedaż przestronne i funkcjonalne 3-pokojowe mieszkanie o powierzchni 59,5 m², położone na 4 piętrze w bloku przy ul. Rycerskiej w Lublinie. Mieszkanie jest jasne, ustawne i dobrze rozplanowane, dzięki czemu sprawdzi się zarówno dla rodziny, pary, jak i osób szukających mieszkania pod inwestyc...

Zobacz ogłoszenie