Mieszkanie na sprzedaż bez pośredników
ul. Horyzontalna Legnica

Mieszkanie 2-pokojowe Legnica, ul. Horyzontalna. Zdjęcie 1

Mieszkanie na sprzedaż bez pośredników Legnica ul. Horyzontalna · parter

330 000
6 600 zł/m²
50
2 pok.
Legnica, Horyzontalna - lokalizacja przybliżona
Bezpośrednio od właściciela

Jeśli nie potrzebujesz pośrednika, zaoszczędzisz około 9 900 zł. Potrzebujesz wsparcia? Skorzystaj z pomocy agenta.

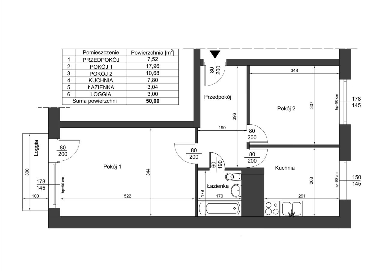
Na sprzedaż 2-pokojowe mieszkanie, zlokalizowane przy ul. Horyzontalnej w Legnicy (Osiedle M. Kopernika II).
Nieruchomość znajduje się na podwyższonym parterze w 4-piętrowym budynku.
Powierzchnia mieszkania wraz z loggią wynosi 50,00 m2.

Najważniejsze informacje:
• Liczba pokoi: 2
• Piętro: parter
• Stan: do remontu, nieumeblowane
• Dostępność: od zaraz
• Sprzedaż: bez pośredników
• Mieszkanie dwustronnie przewietrzane (układ północ-południe)
• Ciepła woda oraz ogrzewanie z sieci miejskiej
• 4-piętrowy blok po termomodernizacji
• Pełna własność mieszkania - czysta księga wieczysta
• Czynsz do spółdzielni mieszkaniowej wynosi 546,51 zł, obejmuje zaliczkę na ogrzewanie, fundusz remontowy, utrzymanie części wspólnych.

Układ:
• Mieszkanie rozkładowe
• Przedpokój z miejscem na szafę
• Salon z wyjściem na zabudowaną loggię
• Osobna kuchnia z kuchenką gazową, lodówką oraz zlewozmywakiem
• Sypialnia
• Łazienka z toaletą, umywalką, wanną oraz pralką
• Zabudowana loggia z ekspozycją na południe
• Łączny metraż mieszkania wraz z loggią - 50,00 m2
• Piwnica 4,90 m2.

Większy pokój wraz z loggią posiada widok na skwer z ławkami (str. południowa), natomiast kuchnia oraz drugi pokój znajdują się od strony ulicy (str. północna), jednak nie bezpośrednio przy głównej arterii, dzięki czemu do mieszkania nie dociera hałas ruchu ulicznego.

Nieruchomość mieści się w doskonałej lokalizacji, w spokojnej, zielonej, dobrze skomunikowanej okolicy. W pobliżu znajduje się wiele sklepów i punktów usługowych, targowisko, szkoła, przedszkole oraz ośrodek zdrowia, a także tereny rekreacyjne. W bezpośrednim sąsiedztwie zlokalizowany jest również przystanek komunikacji miejskiej oraz parking.

Mieszkanie będzie doskonałym wyborem zarówno dla rodzin z dziećmi, jak i par czy osób samotnych. Ze względu na funkcjonalny układ pomieszczeń lokal nadaje się również jako inwestycja pod wynajem.

Cena: 330 tys. zł (do negocjacji).

Zapraszam do zapoznania się ze szczegółami oferty. Wszelkich dodatkowych informacji udzielę telefonicznie. Zapraszam na prezentację.

Ogłoszenie nie stanowi oferty w rozumieniu przepisów Kodeksu Cywilnego, a dane w nim zawarte mają jedynie charakter informacyjny i mogą ulegać zmianie.

  • Na sprzedaż mieszkanie 2-pokojowe o powierzchni 50 m² balkon, piwnica, osobna kuchnia
  • Parter w 4-piętrowym bloku  
  • Legnica ul. Horyzontalna
  • Mieszkanie w stanie do remontu  
  • Odrębna własność z księgą wieczystą  
  • Wyposażenie pralka, lodówka, kuchenka
  • Oferta bezpośrednio od właściciela dodana ponad tydzień temu
Ta nieruchomość może być Twoja od.. sprawdź
66000 zł (20%) Okres spłaty: 30 lat

Podobne mieszkania na sprzedaż

4
Mieszkanie 2-pokojowe Legnica, ul. Jana Kochanowskiego

335 000

45

2 pok.

Sprzedam mieszkanie na parterze, 45 m2, dwupokojowe. (Okolice ul. Głogowskiej) Mieszkanie mieści się blisko centrum, co jest atutem. W pobliżu jest sklep Aldi, Biedronka, stacja paliw, piekarnia, stacja PKP/PKS oraz park. Do centrum miasta (Rynek) jest zaledwie 10 minut pieszo. Mieszkanie jest fun...

Zobacz ogłoszenie
24
Mieszkanie 3-pokojowe Legnica, ul. Dezyderego Chłapowskiego

349 000

64

3 pok.

Jeśli chcesz zamieszkać w topowej dzielnicy Legnicy tuż przy parku i kilka minut spacerkiem do centrum miasta - ta oferta jest dla Ciebie!! Na sprzedaż prezentujemy do własnej aranżacji mieszkanie w kamienicy zlokalizowane w dzielnicy Tarninów Legnicy, jedynie kilka minut od Legnickiego rynku oraz p...

Zobacz ogłoszenie
13
Mieszkanie 3-pokojowe Legnica, ul. Parkowa

325 000

64

3 pok.

Słoneczne mieszkanie z dużym balkonem i wspaniałym widokiem na park. Szukasz mieszkania, które wyróżnia się układem i lokalizacją? Ta nietuzinkowa nieruchomość w sercu legnickiego Starego Miasta, otoczona zielenią, położona zaledwie 200 metrów od parku miejskiego, to idealne miejsce dla osób ceniąc...

Zobacz ogłoszenie
10
Mieszkanie 3-pokojowe Legnica, ul. Złotoryjska

359 000

61

3 pok.

!!!NOWA CENA!!!! Lubisz gwar miasta, restauracje, bary, bycie w samym centrum? Ta oferta jest właśnie dla Ciebie! Na sprzedaż prezentujemy Mieszkanie 3-pokojowe zlokalizowane w samym sercu Legnicy w bezpośredniej bliskości galerii Gwarnej jak i Legnickiego rynku, wokół liczne sklepy, restauracje, ba...

Zobacz ogłoszenie
9
Mieszkanie 3-pokojowe Legnica, ul. Andromedy

325 000

51

3 pok.

Na sprzedaż 3 pokojowe mieszkanie w Legnicy przy ul. Andromedy na osiedlu Kopernika. Mieszkanie o powierzchni 51 m2 znajduje się na 3 piętrze w niskim bloku. Składa się z następujących pomieszczeń: - salonu, - 2 sypialni, - widnej kuchni, - łazienki, - WC, - przedpokoju. Dodatkowo do lokalu przynal...

Zobacz ogłoszenie
7
Mieszkanie 3-pokojowe Legnica, ul. Orbitalna

369 000

50

3 pok.

OFERTA SPRZEDAŻY MIESZKANIA - LEGNICA DOSTĘPNE OD KWIETNIA Na sprzedaż mieszkanie o powierzchni użytkowej 50,60 m², położone na czwartym piętrze budynku przy ul. Orbitalnej w Legnicy. Opis mieszkania: Mieszkanie składa się z: - 3 pokoi - kuchni - przedpokoju - łazienki z WC Lokal jest mieszkaniem...

Zobacz ogłoszenie