Mieszkanie na sprzedaż bez pośredników
ul. Słoneczna Kielce

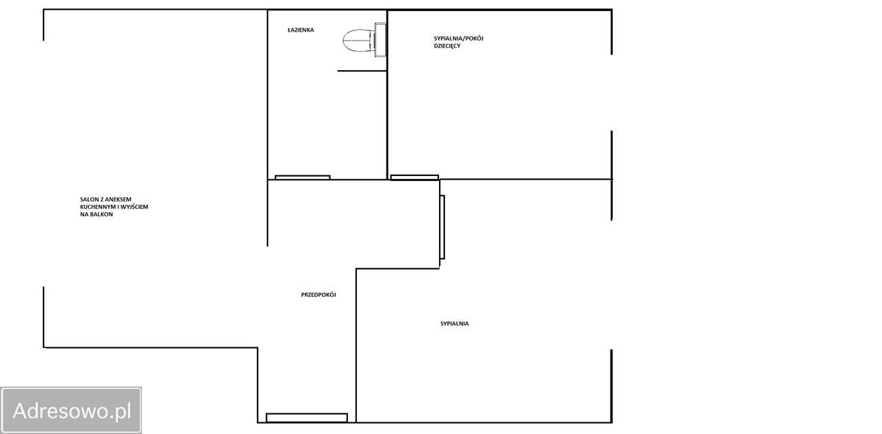
Mieszkanie 3-pokojowe Kielce, ul. Słoneczna. Zdjęcie 1

Mieszkanie na sprzedaż bez pośredników Kielce ul. Słoneczna · 5 piętro

435 000
8 951 zł/m²
48
3 pok.
Kielce, Słoneczna - lokalizacja przybliżona
Bezpośrednio od właściciela

Jeśli nie potrzebujesz pośrednika, zaoszczędzisz około 13 100 zł. Potrzebujesz wsparcia? Skorzystaj z pomocy agenta.

Mieszkanie o powierzchni 48,6 m² znajduje się na 5. piętrze w 10 piętrowym bloku z windą (mechanizm windy wymieniony w roku 2025, klatka schodowa odmalowana w roku 2024).
Mieszkanie posiada księgę wieczystą.

W mieszkaniu znajduje się salon z aneksem kuchennym i wyspą oraz wyjściem na balkon typu loggia długi na całą szerokość salonu (widok na stare miasto i telegraf).
W mieszkaniu znajdują się 2 sypialnie (widok na Karczówkę), większa wyposażona w dużą trzy-drzwiową w szafę w zabudowie.
Pokoje ustawne, nie przechodnie, w przedpokoju trzy-drzwiowa szafa w zabudowie oraz zabudowane liczniki mediów z miejscem na szafkę narzędziową.
Lokal jest w stanie do odświeżenia, generalny remont wraz z wymianą wszystkich instalacji wykonano w roku 2018.
Mieszkanie dwustronne, środkowe, dobrze doświetlone, ciepłe (okna plastikowe).
Blok w 3/4 docieplony w roku 2025.

Dodatkowo do mieszkania przynależy piwnica.
Przed blokiem dostępny duży parking, dodatkowo dostępny pilot umożliwiający wjazd na 3 zamykane parkingi osiedlowe, w tym jeden w bezpośrednim sąsiedztwie bloku.

Dogodna lokalizacja, dobry dojazd do centrum, szkoła i przedszkole w odległości 300 m od bloku, sklepy z punktami usługowo-handlowymi 400m.

Ogłoszenie bezpośrednio od właściciela. Biurom nieruchomości i pośrednikom dziękujemy.

  • Na sprzedaż mieszkanie 3-pokojowe o powierzchni 48,60 m² balkon, piwnica, aneks kuchenny
  • 5 piętro w 10-piętrowym bloku z windą
  • Kielce ul. Słoneczna
  • Mieszkanie w stanie do zamieszkania okna plastikowe
  • Oferta bezpośrednio od właściciela dodana ponad tydzień temu
Ta nieruchomość może być Twoja od.. sprawdź
87000 zł (20%) Okres spłaty: 30 lat

Podobne mieszkania na sprzedaż

9
Mieszkanie 3-pokojowe Kielce, ul. Jana Nowaka Jeziorańskiego

449 000

59

3 pok.

TYLKO U NAS! Biuro Nieruchomości TWOJE M Prezentuje na sprzedaż 3 pokojowe mieszkanie z balkonem bez piecyka, osiedle Świętokrzyskie Prezentujemy Państwu na sprzedaż przestronne, dwustronne, 3 p...

Zobacz ogłoszenie
10
Mieszkanie 3-pokojowe Kielce, ul. Florentyny Malskiej

455 000

60

3 pok.

Do sprzedaży 3-pokojowe mieszkanie o pow. 60 m2. Nieruchomość zlokalizowana jest na Osiedlu Słoneczne Wzgórze przy ul. Malskiej. Położone na 3 piętrze w bloku 4 piętrowym. W skład mieszkania wchodzą: - Salon o pow. 18,4 m2 z wyjściem na balkon typu loggia o powierzchni 5,2m2 - 2 sypialnie o pow. 10,...

Zobacz ogłoszenie
8
Mieszkanie 3-pokojowe Kielce, ul. Czarnowska

430 000

52

3 pok.

Witam, posiadam mieszkanie 51.40m², 3-pokojowe na sprzedaż po remoncie. Wymieniona instalacja elektryczna, drzwi, podłogi w salonie oraz meble kuchenne. Mieszkanie bardzo przytulne, z widną kuchnią, balkonem i piwnicą. Częściowo też umeblowane. Polecam, gdyż znajduje się w samym centrum: 2 min. do d...

Zobacz ogłoszenie
8
Mieszkanie 3-pokojowe Kielce, ul. Grunwaldzka

445 000

46

3 pok.

Na sprzedaż jasne i funkcjonalne mieszkanie o powierzchni 46m², położone w spokojnej, a jednocześnie bardzo dobrze skomunikowanej części Kielc. Idealna propozycja dla pary, rodziny z dzieckiem, singla lub jako inwestycja pod wynajem. Opis mieszkania: Ul: Grunwaldzka 24 Powierzchnia: 46 m² Piętro: ...

Zobacz ogłoszenie
18
Mieszkanie 3-pokojowe Kielce

439 000

48

3 pok.

TYLKO U NAS ! BIURO NIERUCHOMOŚCI TWOJE M prezentuje ofertę sprzedaży mieszkania 3-pokojowego, po generalnym remoncie. BARDZO DOBRA LOKALIZACJA PO REMONCIE PIĘTRO 1. Oferujemy Państwu mieszkanie po generalnym remoncie, 3-pokojowe, o powierzchni 48,9m2, usytuowane na 1. piętrze w...

Zobacz ogłoszenie
16
Mieszkanie 3-pokojowe Kielce, ul. Elizy Orzeszkowej

449 000

59

3 pok.

TYLKO U NAS! Biuro Nieruchomości TWOJE M Prezentuje ofertę sprzedaży Komfortowego 3 pokojowego mieszkania z balkonem Doskonała lokalizacja dla rodziny lub pod wynajem Prezentujemy Państwu 3 pokojowe mieszkanie z widną, oddzielną kuchnią, o powierzchni 59,30 m 2 . Lokal u...

Zobacz ogłoszenie