Mieszkanie na sprzedaż bez pośredników
Kęszyca Leśna  

Mieszkanie 5-pokojowe Kęszyca Leśna. Zdjęcie 1

Mieszkanie na sprzedaż bez pośredników Kęszyca Leśna brak adresu · 1 piętro

385 000
3 615 zł/m²
106
5 pok.
Kęszyca Leśna - lokalizacja przybliżona
Bezpośrednio od właściciela

Jeśli nie potrzebujesz pośrednika, zaoszczędzisz około 11 600 zł. Potrzebujesz wsparcia? Skorzystaj z pomocy agenta.

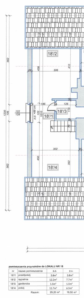
Na sprzedaż: dwupoziomowe mieszkanie 5-pokojowe o powierzchni 106,5 m².
Poziom 1:
salon - 21,8 m2
pokój - 18,5 m2
pokój - 11,8 m2
kuchnia - 11 m2
łazienka - 11,8 m2
przedpokoje - 12,1 m2

Poziom 2 (w nawiasie powierzchnie podłogi):
pokój - 7,7 (12,2) m2
pokój - 6,5 (11,7) m2
przedpokój - 6,3 m2
garderoba - 1,5 m2

Piwnica - 30,5 m2

Mieszkanie jest dwupoziomowe.
Posiada wodne ogrzewanie elektryczne oraz wolnostojący kominek na drewno.
Budynek znajduje się w leśnym otoczeniu, 700m od jeziora.
Przy budynku znajduje się miejsce z ławką do wypoczynku i grillowania. Przed budynkiem znajduje się duży plac parkingowy.

Brak możliwości zakupu na kredyt hipoteczny.

  • Na sprzedaż dwupoziomowe mieszkanie 5-pokojowe o powierzchni 106,50 m² piwnica, osobna kuchnia
  • 1 piętro w 2-piętrowym domu wielorodzinnym bez windy, rok budowy 1935
  • Kęszyca Leśna  
  • Mieszkanie w dobrym stanie okna plastikowe
  • Ogłoszenie dotyczy udziału w nieruchomości  
  • Wyposażenie internet, kuchenka, lodówka, mikrofalówka, piekarnik
  • Świadectwo Energetyczne SCHE/****/***/2024  
  • Oferta bezpośrednio od właściciela dodana ponad miesiąc temu i zaktualizowana ponad tydzień temu
Ta nieruchomość może być Twoja od.. sprawdź
77000 zł (20%) Okres spłaty: 30 lat

Podobne mieszkania na sprzedaż

7
Mieszkanie 7-pokojowe Przytoczna, ul. Pocztowa

380 000

145

7 pok.

Na sprzedaż Mieszkanie + lokal usługowy mieszczące się w centrum Przytoczonej Ul.Pocztowa 30 Mieszkanie ( osobne wejście od podwórka ) wyremontowane w 2022r : Parter: Pokój + korytarz- 26m2 Piętro: Sypialnia -23m2 Łazienka-15m2 Salon-24m2 Ogrzewanie : - kominek na pellet -2xklimatyzacja z funkcją...

Zobacz ogłoszenie
12
Mieszkanie 3-pokojowe Międzyrzecz, ul. Piastowska

395 000

66

3 pok.

Mieszkanie 3 pokojowe + kuchnia + łazienka + osobne WC. Ładne, dobrze oświetlone mieszkanie dla rodziny na 4 piętrze. Od strony północno-wschodniej: duża kuchnia 11m2 + pokój 12,5m2. Od strony południowo-zachodniej: salon 17m2 + pokój balkonowy 11m2, balkon o pow. ok 3,5 m2. Łazienka ok. 3 m2, osobn...

Zobacz ogłoszenie
8
Mieszkanie 3-pokojowe Międzyrzecz, ul. Piastowska

399 000

64

3 pok.

Na sprzedaż mieszkanie o powierzchni 64m² w Międzyrzeczu, na ul. Piastowskiej. Składa się z trzech pokoi, kuchni, łazienki oraz toalety. W przypadku pytań proszę o kontakt telefoniczny.

Zobacz ogłoszenie
17
Mieszkanie 3-pokojowe Skwierzyna, ul. Konopnickiej

385 000

70

3 pok.

Na sprzedaż umeblowane mieszkanie o powierzchni 70 m², położone na parterze kamienicy przy ulicy Konopnickiej w centrum Skwierzyny. Cena do negocjacji. Układ pomieszczeń: Przedpokój Salon z wydzieloną, oddzielną strefą – mały pokój Osobna sypialnia Kuchnia z jadalnią Łazienka z prysznicem Do...

Zobacz ogłoszenie
7
Mieszkanie 4-pokojowe Kęszyca Leśna

420 000

98

4 pok.

Sprzedam bezpośrednio- mieszkania 98.90m2, lokalizacja Kęszyca Leśna /jak w nazwie miejsce otoczone lasami/, bezczynszowe, pełna własność, KW, -73,60m - 3 pokoje z aneksem kuchennym, 1 piętro, łazienka z wc , ogrzewanie kominek /drewno kominkowe/ lub elektryczne; jest przygotowane przyłącze gazow...

Zobacz ogłoszenie
8
Mieszkanie 6-pokojowe Międzyrzecz Centrum, ul. 30 Stycznia

300 000

95

6 pok.

Na sprzedaż mieszkanie 6-pokojowe o powierzchni 95 m². Parter w bloku. ul. 30-go Stycznia 66/1A, 66-300 Międzyrzecz, Centrum. Sprzedam ciepłe, słoneczne mieszkanie przy ulicy 30-go Stycznia na parterze. W skład mieszkania wchodzą: - 6 przestronnych pokoi do własnej aranżacji. - Duża kuchnia, możli...

Zobacz ogłoszenie