Mieszkanie na sprzedaż bez pośredników
ul. Marmurowa Jabłonna

Mieszkanie 2-pokojowe Jabłonna, ul. Marmurowa. Zdjęcie 1

Mieszkanie na sprzedaż bez pośredników Jabłonna ul. Marmurowa · 3 piętro

610 000
12 979 zł/m²
47
2 pok.
Jabłonna, Marmurowa - lokalizacja przybliżona
Bezpośrednio od właściciela

Jeśli nie potrzebujesz pośrednika, zaoszczędzisz około 18 300 zł. Potrzebujesz wsparcia? Skorzystaj z pomocy agenta.

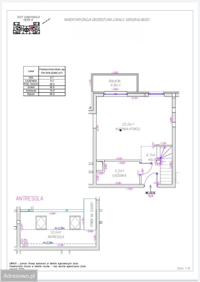
Na sprzedaż mieszkanie o powierzchni użytkowej 46,9 m2 z antresolą i balkonem, położone w Jabłonnie przy ul. Marmurowej. Lokal znajduje się na trzecim piętrze w kameralnym trzypiętrowym budynku z windą, rok budowy 2021. Mieszkanie jest w pełni umeblowane, z klimatyzacją, gotowe do wprowadzenia. Do mieszkania przynależy miejsce postojowe na parkingu zewnętrznym oraz komórka lokatorska o powierzchni 2,1 m2. W budynku znajduje się także rowerownia i wózkownia.
Bardzo dobra lokalizacja w bezpośrednim sąsiedztwie Warszawy, na pograniczu Białołęki i Jabłonny. Miejsce otoczone zielenią ogromnego kompleksu Lasu Legionowskiego. W najbliższej okolicy znajdują się liczne ścieżki rowerowe, stadnina koni, a także szeroko rozwinięta infrastruktura usługowa i handlowa (m.in. Lidl, Biedronka, Kaufland, Dealz, Pepco, Leroy Merlin, OBI). Przy wjeździe na osiedle przystanek autobusowy (linia L49, 731). 7 minut samochodem do stacji PKP Choszczówka.

Układ mieszkania:
- hol 6,7 m2
- łazienka 5,2 m2
- salon z aneksem kuchennym 25 m2
- antresola 10 m2
- balkon 4,8 m2

Cena (do negocjacji):
Mieszkanie 610 000 zł
Miejsce postojowe 20 000 zł
Komórka lokatorska 10 000 zł

Pełna własność z księgą wieczystą. Sprzedaż bezpośrednia.

  • Na sprzedaż dwupoziomowe mieszkanie 2-pokojowe o powierzchni 47 m² balkon, piwnica, zewnętrzne miejsce parkingowe, aneks kuchenny
  • 3 piętro w 3-piętrowym bloku z windą, rok budowy 2021
  • Jabłonna ul. Marmurowa
  • Mieszkanie w wysokim standardzie  
  • Odrębna własność z księgą wieczystą  
  • Wyposażenie internet, klimatyzacja, kuchenka, lodówka, mikrofalówka, piekarnik, pralka, zmywarka
  • Oferta bezpośrednio od właściciela dodana ponad tydzień temu
Ta nieruchomość może być Twoja od.. sprawdź
122000 zł (20%) Okres spłaty: 30 lat

Podobne mieszkania na sprzedaż

12
Mieszkanie 2-pokojowe Jabłonna, ul. Marmurowa

584 116

49

2 pok.

Dzień dobry. Do sprzedania mam odnowione (2023 r.), komfortowe, dwupokojowe mieszkanie z balkonem o powierzchni 49 m² na parterze, na cichym i spokojnym osiedlu "Bukowy Dworek" w Jabłonnie. MIESZKANIE: * Lokalizacja: bardzo dobra, dla osób ceniących bliskość lasu, ciszę i spokój, 150 m od granicy...

Zobacz ogłoszenie
8
Mieszkanie 2-pokojowe Jabłonna

595 000

47

2 pok.

Witam. Sprzedam mieszkanie dwupokojowe na os. Rajska Jabłoń w Jabłonnie. Mieszkanie dwupokojowe z oddzielną kuchnią, łazienką i balkonem. Ekspozycja dwustronna na stronę wschodnią i zachodnią. Mieszkanie świeżo malowane w całości. Do mieszkania przynależy komórka lokatorska 4,5 m². We wspólnym uż...

Zobacz ogłoszenie
4
Mieszkanie 2-pokojowe Jabłonna, ul. Złotej Renety

571 454

45

2 pok.

Na sprzedaż funkcjonalne, 2-pokojowe mieszkanie o powierzchni 45,72 m², położone na 2 piętrze nowoczesnej inwestycji Złota Jabłonna przy ul. Złotej Renety. Idealne dla pary, singla, młodej rodziny lub jako bezpieczna inwestycja pod wynajem. UKŁAD MIESZKANIA – 45,72 m² • Hol – 3,85 m² • Aneks kuch...

Zobacz ogłoszenie
8
Mieszkanie 2-pokojowe Jabłonna

599 000

57

2 pok.

Oferuję na sprzedaż mieszkanie o powierzchni 57 m², znajdujące się na drugim piętrze bloku. Wnętrze jest jasne i przestronne, z wysokimi sufitami oraz drewnianą podłogą. Mieszkanie nie jest umeblowane, co daje Ci swobodę w aranżacji przestrzeni. Posiada 2 balkony, z których rozpościera się widok na...

Zobacz ogłoszenie
4
Mieszkanie 3-pokojowe Jabłonna, ul. Marmurowa

645 000

58

3 pok.

Sosnowy Zakątek - nowe mieszkania przy granicy Białołęki ul. Marmurowa, Jabłonna Szukasz mieszkania w stanie deweloperskim, ale nie chcesz martwić się remontem i szukaniem ekip? Tu masz gotowe rozwiązanie. Do oferty dołączona jest wizualizacja mieszkania, która pokazuje realne możliwości aranżacyjn...

Zobacz ogłoszenie
9
Mieszkanie 3-pokojowe Jabłonna, ul. Graniczna

550 000

61

3 pok.

POŚREDNIKOM DZIĘKUJEMY Cena: 550 000 zł Rynek: wtórny Forma własności: spółdzielcze własnościowe z księgą wieczystą Czynsz: 900 zł (za 2 osoby) Mieszkanie usytuowane na ostatnim, 4. piętrze, zlokalizowane w cichej i spokojnej okolicy - Jabłonna, ul. Graniczna. Charakterystyka mieszkania: 61,31 m²,...

Zobacz ogłoszenie