Mieszkanie na sprzedaż bez pośredników
Hel  

Mieszkanie 3-pokojowe Hel. Zdjęcie 1

Mieszkanie na sprzedaż bez pośredników Hel brak adresu · parter

947 000
13 529 zł/m²
70
3 pok.
Hel - lokalizacja przybliżona
Bezpośrednio od właściciela

Jeśli nie potrzebujesz pośrednika, zaoszczędzisz około 28 400 zł. Potrzebujesz wsparcia? Skorzystaj z pomocy agenta.

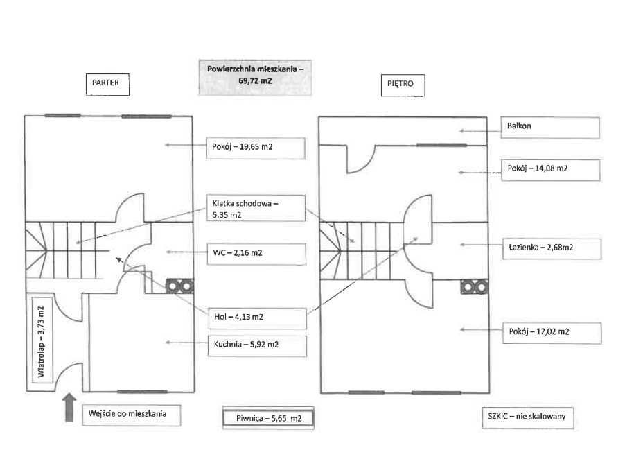
Na sprzedaż mieszkanie własnościowe o pow. 70 m2, położone w atrakcyjnej lokalizacji w miejscowości Hel, zaledwie ok. 500 metrów do plaży.

Lokal znajduje się w kameralnej wspólnocie mieszkaniowej liczącej 14 mieszkań, ze sklepem w parterze budynku.

Mieszkanie dwupoziomowe o funkcjonalnym układzie, z samodzielnym wejściem od strony parkingu:
- Poziom dolny: salon, kuchnia, toaleta, wiatrołap
- Poziom górny: pokój, sypialnia, łazienka, balkon

Dodatkowo: piwnica 7 m2, miejsce postojowe przed wejściem, możliwość zagospodarowania terenu przed budynkiem.

Mieszkanie posiada duży potencjał - idealne zarówno do zamieszkania całorocznego dla rodziny, jak i pod wynajem sezonowy (atrakcyjna lokalizacja nadmorska, bliskość plaży, sklepy i podstawowa infrastruktura).

Informacja techniczna: ogrzewanie i gaz z instalacji zbiorczej (zbiornik przy budynku).

Czynsz: ok. 1350 zł zimą, 700 zł latem (dla 2 osób), w tym fundusz remontowy, ogrzewanie, wywóz odpadów.

Mieszkanie wymaga remontu - ostatnie większe prace były wykonane ok. 15 lat temu, co daje nowemu właścicielowi możliwość aranżacji wg własnych potrzeb i standardu.

Cena: 947.000 zł

Oferta skierowana zarówno do osób szukających nieruchomości nad morzem dla siebie, jak i inwestorów zainteresowanych wynajmem sezonowym.

Termin wydania mieszkania: przełom styczeń 2027 (do uzgodnienia).

Zapraszam do kontaktu.

Uprzejmie proszę o kontakt wyłącznie osoby prywatne - oferty współpracy ze strony pośredników nieruchomości nie będą rozpatrywane.

  • Na sprzedaż dwupoziomowe mieszkanie 3-pokojowe o powierzchni 70 m² balkon, piwnica, zewnętrzne miejsce parkingowe
  • Parter w bloku  
  • Hel  
  • Oferta bezpośrednio od właściciela dodana ponad miesiąc temu i zaktualizowana ponad tydzień temu
Ta nieruchomość może być Twoja od.. sprawdź
189000 zł (20%) Okres spłaty: 30 lat

Podobne mieszkania na sprzedaż

5
Mieszkanie 2-pokojowe Hel, ul. Kaszubska

759 000

43

2 pok.

Kupujący nie płaci prowizji! Nadmorski apartament w sercu Helu. Apartament o powierzchni 43,08 m2, składa się z salonu z aneksem kuchennym, sypialni, łazienki i przedpokoju.  Apartamentowiec wybudowany z zastosowaniem wysokiej jakości materiałów przy użyciu nowoczesnych technologii. Apartament mieśc...

Zobacz ogłoszenie
19
Mieszkanie 3-pokojowe Hel, ul. kmdr. Przybyszewskiego

1 239 000

58

3 pok.

Oferuję na sprzedaż bezpośrednio przez właściciela: NOWOCZESNY, PRZESTRONNY APARTAMENT O WAKACYJNYM CHARAKTERZE. Apartament 58,4 m². Wykończony na wysokim poziomie i bardzo dobrej jakości materiałach. Meble Kler, podłogi drewniane, płytki ceramiczne. Duża kuchnia z salonem, sypialnia z podwójnym łó...

Zobacz ogłoszenie
31
Mieszkanie 3-pokojowe Hel, ul. kmdr. Przybyszewskiego

999 000

86

3 pok.

Nie ma drugiej podobnej oferty w Helu. Komfortowe mieszkanie w pięknej, modernistycznej kamienicy.  Mamy przyjemność zaprezentować mieszkanie z duszą zlokalizowane w sercu Helu. Mieszkanie idealne dla dużej rodziny.  Ma powierzchnię 86,6 m2 składa się z trzech dużych pokoi, kuchni, łazienki z oknem...

Zobacz ogłoszenie
4
Mieszkanie 2-pokojowe Hel, ul. Wydmowa

1 200 000

43

2 pok.

Prezentujemy nowy nadmorski apartament zlokalizowany w Helu. Apartament o powierzchni użytkowej 43,15 m2, Apartament składa się z salonu z aneksem kuchennym, sypialni, łazienki i przedpokoju. Do lokalu przylega balkon o powierzchni 12 m2. Do mieszkania przynależy miejsce postojowe zewnętrzne.  Apa...

Zobacz ogłoszenie
8
Mieszkanie 2-pokojowe Hel, ul. adm. Steyera

660 000

39

2 pok.

Na sprzedaż mieszkanie 2-pokojowe w Hel -39.20m Oferuję na sprzedaż funkcjonalne mieszkanie o powierzchni 39.20m położone na parterze budynku w Helu. Lokal składa się z: -Dwóch pokoi , -kuchni, -łazienki , -garderoby, Mieszkanie znajduje się w atrakcyjnej lokalizacji-idealnie zarówno do zamieszkan...

Zobacz ogłoszenie
6
Mieszkanie 3-pokojowe Hel, ul. Kaszubska

1 299 000

70

3 pok.

Kupujący nie płaci prowizji! Prezentujemy nadmorski apartament w sercu Helu z dużym tarasem - 70 m2.  Apartament o powierzchni 70,16 m2, składa się z salonu z aneksem kuchennym, dwóch sypialni, łazienki i przedpokoju i tarasu, z którego widać morze.  Apartamentowiec wybudowany z zastosowaniem wysoki...

Zobacz ogłoszenie