Mieszkanie na sprzedaż bez pośredników
os. Jasne Dzierżoniów

Mieszkanie 3-pokojowe Dzierżoniów, os. Jasne. Zdjęcie 1

Mieszkanie na sprzedaż bez pośredników Dzierżoniów os. Jasne · 1 piętro

386 000
8 058 zł/m²
47
3 pok.
Dzierżoniów, os. Jasne - lokalizacja przybliżona
Bezpośrednio od właściciela

Jeśli nie potrzebujesz pośrednika, zaoszczędzisz około 11 600 zł. Potrzebujesz wsparcia? Skorzystaj z pomocy agenta.

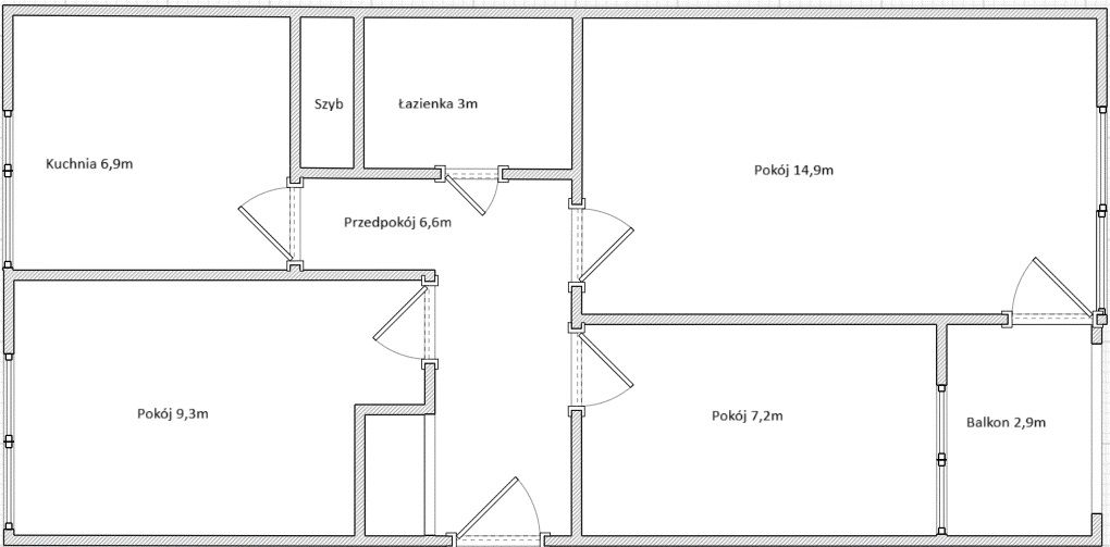
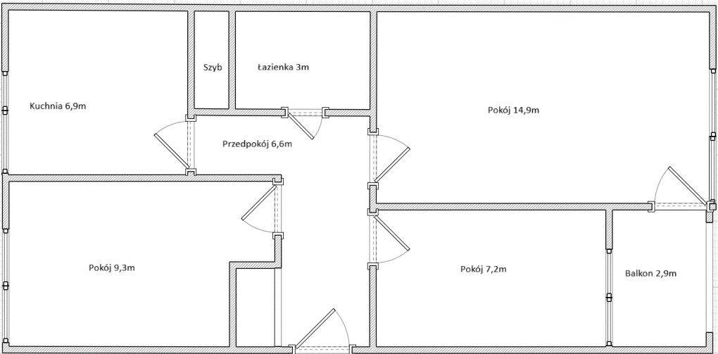
Na sprzedaż gotowe do wprowadzenia, 3-pokojowe, słoneczne mieszkanie o powierzchni 47,9 m2, usytuowane na pierwszym piętrze w ocieplonym bloku na Osiedlu Jasnym 17 w Dzierżoniowie.

Składa się z:
- Trzech pokoi,
- Kuchni,
- Łazienki z WC,
- Przedpokoju.

Mieszkanie posiada balkon, piwnicę oraz własne miejsce parkingowe.

Stan techniczny:
Mieszkanie całkowicie odnowione, po generalnym remoncie obejmującym instalację elektryczną i hydrauliczną. Nowe okna PCV, drzwi wewnętrzne, panele na podłodze oraz odnowione ściany i sufity.

Wyposażenie:
- Nowa, wyposażona łazienka (prysznic, umywalka, toaleta, meble wiszące),
- Nowe meble kuchenne z wbudowanym okapem,
- Nowa płyta indukcyjna,
- Nowa szafa wnękowa,
- Drewniane drzwi wejściowe.

Dodatkowe udogodnienia:
- Salon południowo-zachodni, nasłoneczniony w ciągu dnia i dzięki temu odczuwalnie cieplejszy,
- Nowy balkon z oświetleniem,
- Własne miejsce parkingowe przypisane do mieszkania,
- Do mieszkania przynależy piwnica.

Ogrzewanie oraz ciepła woda z sieci miejskiej.
Możliwość samodzielnego umeblowania mieszkania.

Lokalizacja:
W bezpośrednim sąsiedztwie znajdują się:
- Spokojny, zielony park,
- Wesoły i bezpieczny plac zabaw,
- Szkoła,
- Przedszkole,
- Centrum handlowe,
- Przychodnia,
- Komunikacja miejska.
Jest to miejsce łączące spokój, bezpieczeństwo i wygodę.

Idealne dla rodziny, par lub jako inwestycja. Brak prowizji od kupującego.

Serdecznie zapraszam - zadzwoń lub napisz i umów się na oglądanie mieszkania.

  • Na sprzedaż mieszkanie 3-pokojowe o powierzchni 47,90 m² balkon, piwnica, osobna kuchnia
  • 1 piętro w 10-piętrowym bloku z windą, rok budowy 1970
  • Dzierżoniów os. Jasne
  • Mieszkanie w wysokim standardzie okna plastikowe
  • Odrębna własność z księgą wieczystą  
  • Wyposażenie kuchenka
  • Świadectwo Energetyczne  
  • Oferta bezpośrednio od właściciela dodana ponad miesiąc temu i zaktualizowana 3 dni temu
Ta nieruchomość może być Twoja od.. sprawdź
77000 zł (20%) Okres spłaty: 30 lat

Podobne mieszkania na sprzedaż

12
Mieszkanie 3-pokojowe Dzierżoniów, os. Tęczowe

369 000

64

3 pok.

Do sprzedania duże, przestronne mieszkanie w ocieplonym bloku na IV piętrze o powierzchni 64,86 m². Lokal składa się z dużego salonu z wyjściem na balkon, dwóch przestronnych sypialni, łazienki i osobnej WC, w pełni rozkładowe. Ogrzewanie i ciepła woda: miejskie; okna plastikowe na ścianach gładź na...

Zobacz ogłoszenie
8
Mieszkanie 2-pokojowe Dzierżoniów

400 000

48

2 pok.

Na sprzedaż przytulne i funkcjonalne mieszkanie o powierzchni 48m2, położone w nowo wyremontowanej kamienicy tuż przy Rynku - idealna lokalizacja w centrum miasta, a jednocześnie z własną przestrzenią na zewnątrz. Najważniejsze atuty nieruchomości: - 48m2 - komfortowy, dobrze rozplanowany metraż - ...

Zobacz ogłoszenie
14
Mieszkanie 3-pokojowe Dzierżoniów, os. Jasne

350 000

49

3 pok.

Piękne, słoneczne mieszkanie po kapitalny remoncie. Składa sie z: . 3 pokoje . Przedpokój .Kuchnia .Łazienka z WC .Balkon (loggia) Czynsz 820 zł Do mieszkania nalezy piwnica. Urządzone w prostym, minimalistyczny stylu, wraz ze wszystkimi niezbednymi meblami i sprzetami.gotowe do wprowadzenia sie...

Zobacz ogłoszenie
12
Mieszkanie 3-pokojowe Dzierżoniów, os. Błękitne

335 000

57

3 pok.

Sprzedam mieszkanie do remontu, na osiedlu Błękitnym na 3 piętrze. W skład mieszkania wchodzą 3 pokoje, kuchnia, łazienka i osobno WC. Do mieszkania przynależy piwnica. Mieszkanie posiada balkon z widokiem na góry. Cena do negocjacji, zapraszam osoby zainteresowane do obejrzenia na żywo.

Zobacz ogłoszenie
8
Mieszkanie 2-pokojowe Dzierżoniów, os. Różane

345 000

45

2 pok.

Na sprzedaż mieszkanie BEZPOŚREDNIO - Dzierżoniów, os. Różane. Szczegóły: - Powierzchnia: 45,55 m² - Liczba pokoi: 2 (oddzielna kuchnia) - Dwustronne, słoneczne, otoczone zielenią, co zapewnia dużo prywatności mimo rozbudowanego osiedla. - Po generalnym remoncie: wymienione wszystkie instalacje, w ...

Zobacz ogłoszenie
8
Mieszkanie 2-pokojowe Dzierżoniów, ul. Janusza Korczaka

385 000

47

2 pok.

Do zaoferowania mam nowe mieszkanie w stanie deweloperskim, zlokalizowane przy ulicy Korczaka w Dzierżoniowie, na czwartym piętrze. Rozkład mieszkania: salon, kuchnia, sypialnia, przedpokój oraz łazienka. Budynek oddany do użytku w 2024 roku, wyposażony w: - windę, - rowerownię, - miejsca parkingo...

Zobacz ogłoszenie