Nieruchomość komercyjna do wynajęcia bez pośredników
ul. Nowowiejska 31 Wrocław Śródmieście

Lokal Wrocław Śródmieście, ul. Nowowiejska. Zdjęcie 1

Nieruchomość komercyjna do wynajęcia bez pośredników Wrocław Śródmieście ul. Nowowiejska 31

4 800
86 zł/m²
56
Wrocław Śródmieście, Nowowiejska 31 - lokalizacja dokładna
Bezpośrednio od właściciela

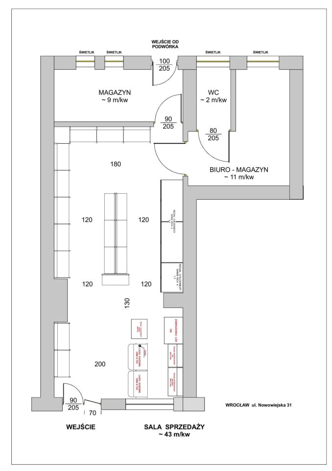
Do wynajęcia, bezpośrednio przez właściciela, lokal użytkowy o powierzchni 56,5 m², położony przy ulicy Nowowiejskiej 31 (Śródmieście).

Obecnie w lokalu, od ponad 20 lat, działa sklep sieci Kolporter, oferujący głównie prasę, papierosy, kolekturę Lotto, przekąski oraz napoje alkoholowe.

Lokal położony jest na parterze budynku mieszkalno-usługowego, w ciągu wielu lokali usługowych i handlowych. Lokal jest dwustronny. Posiada główne wejście i witrynę od ulicy Nowowiejskiej oraz dodatkowe wejście od podwórza. Łatwy dojazd na podwórze umożliwia wygodne dokonywanie dostaw.

Na ulicy Nowowiejskiej odbywa się duży ruch zarówno pieszy, jak i samochodowo-tramwajowy. Lokal jest dobrze widoczny z ulicy. Ponadto istnieje możliwość umieszczenia reklamy na elewacji budynku.

Układ lokalu pozwala na jego łatwe zaaranżowanie na potrzeby dowolnej działalności usługowej, handlowej lub biurowej. W skład lokalu wchodzi sala o powierzchni około 35 m², magazyn, pomieszczenia zaplecza oraz toaleta. Lokal posiada dużą witrynę i jest dobrze doświetlony.

Lokal wolny od kwietnia 2026 roku.

Czynsz w wysokości 4800 PLN netto. Ponadto najemcę obciążają tylko koszty dostawy mediów do lokalu (C.O., ciepła i zimna woda) na podstawie odczytów liczników.

  • ul. Nowowiejska 31, Wrocław Śródmieście  
  • Do wynajęcia lokal o powierzchni 56 m²  
  • Dostępne do wynajęcia od zaraz
  • Opłaty 1100 zł/miesiąc
  • Oferta bezpośrednio od właściciela dodana ponad miesiąc temu

Podobne nieruchomości komercyjne na wynajem

7
Lokal Wrocław Śródmieście

3 850

31

Gabinet dla stomatologa, lekarza, fizjoterapeuty lub profesji pokrewnych (ewentualnie na biuro). Wysoki standard wykończenia i wyposażenia. Wejście od ulicy z poziomu chodnika. Podana cena nie obejmuje jedynie kosztów energii elektrycznej. Miejsca parkingowe przy ulicy (jeszcze bezpłatne). Wyna...

Zobacz ogłoszenie
14
Lokal Wrocław Śródmieście, ul. Jedności Narodowej

3 500

37

Oferuję na wynajem lokal usługowy o powierzchni 37 m². Mieści się on na parterze w odnowionej kamienicy. Lokal jest gotowy do użytku z wysokiej jakości wykończeniem. Posiada witrynę, ogrzewanie oraz dostęp do parkingu. W obiekcie są wszystkie media: woda, energia, gaz, internet oraz telewizja kabl...

Zobacz ogłoszenie
1
Hotel/pensjonat Wrocław Śródmieście

5 500

124

Sprzedam hostel we Wrocławiu - Śródmieście. Odstępne 60 000 zł. Na sprzedaż, w pełni zautomatyzowany hostel położony w ścisłym centrum Wrocławia (Stare Miasto). Idealna propozycja dla inwestora szukającego gotowego biznesu z niskimi kosztami obsługi. Kluczowe informacje: • Lokalizacja Premium: Ser...

Zobacz ogłoszenie
3
Lokal Wrocław Śródmieście, ul. Robotnicza

3 500

39

OPIS NIERUCHOMOŚCI: Do wynajęcia atrakcyjny lokal użytkowy o powierzchni 39 m², zlokalizowany w dynamicznie rozwijającej się okolicy, w ścisłym centrum Wrocławia przy ul. Robotniczej. Oferta skierowana jest do firm i przedsiębiorców poszukujących komfortowej przestrzeni do pracy, z transparentnymi ...

Zobacz ogłoszenie
11
Lokal Wrocław Śródmieście, ul. kard. Stefana Wyszyńskiego

3 500

92

Do wynajęcia duży lokal użytkowy na parterze kamienicy przy ul. Wyszyńskiego, z dużą witryną i wejściem bezpośrednio z ulicy. Lokal dostępny od 01.04.2026 r. Lokal ma powierzchnię 92 m2 i składa się z dużej sali sprzedażowej, dwóch dużych pokoi (biur) w tym jeden z aneksem kuchennym, pomieszczenia g...

Zobacz ogłoszenie
10
Lokal Wrocław Śródmieście, ul. Mikołaja Sępa-Szarzyńskiego

4 115

150

Odstąpię w pełni wyposażony lokal gastronomiczny pod pizzerię. LOKALIZACJA: ul. Sępa-Szarzyńskiego 71 POWIERZCHNIA: ok. 150 m² INFORMACJE O LOKALU: Lokal jest umeblowany. Odremontowana elewacja lokalu. CENA ODSTĘPNEGO: 90 000 zł netto (do negocjacji w przypadku przejęcia od listopada). WYPOSAŻE...

Zobacz ogłoszenie