Nieruchomość komercyjna do wynajęcia
ul. Puławska 435A Warszawa Ursynów

Lokal Warszawa Ursynów, ul. Puławska. Zdjęcie 1
Lokal Warszawa Ursynów, ul. Puławska. Zdjęcie 2
Lokal Warszawa Ursynów, ul. Puławska. Zdjęcie 3
Lokal Warszawa Ursynów, ul. Puławska. Zdjęcie 4

Nieruchomość komercyjna do wynajęcia Warszawa Ursynów ul. Puławska 435A

25 000
50 zł/m²
495
Warszawa Ursynów, Puławska 435A - lokalizacja przybliżona

Właściciel powierzył wynajem nieruchomości pośrednikowi. Możesz zadzwonić lub napisać do agenta za darmo.

Z przyjemnością zapraszam do zapoznania się z ofertą wynajmu blisko 500 m2 przestrzeni biurowej znajdującej się na warszawskim Ursynowie.
Biuro znajduje się w budynku Light House wybudowanym w 2001 roku przy ulicy Puławskiej 435a.
Lokalizacja:
Light House może poszczycić się dogodnym dojazdem, zarówno z lotniska, jak i z różnych części miasta, dzięki bliskości obwodnicy Warszawy.
Nieruchomość jest przykładem tego, jak powinien funkcjonować budynek biurowy, o czym świadczy wysoki poziom obłożenia. To samo dotyczy całego jego otoczenia, gdzie nie brakuje zainteresowania powierzchniami biurowymi.
Do nieruchomości można łatwo dojechać z obwodnicy Warszawy S2, przebiegającej tuż obok, co znacznie ułatwia dojazd samochodem. Dojazd do nieruchomości możliwy jest od ulicy Puławskiej lub Gruchacza. Dla osób preferujących komunikację miejską, przystanek autobusowy znajduje się bezpośrednio przed nieruchomością (obsługuje liczne linie, takie jak [numer], [numer], 809, 815 i N83). Dojazd samochodem na lotnisko Chopina zajmuje zaledwie 12 minut, co jest znacznie wygodniejsze w porównaniu z czasem dojazdu do centrum miasta.
Lokal:
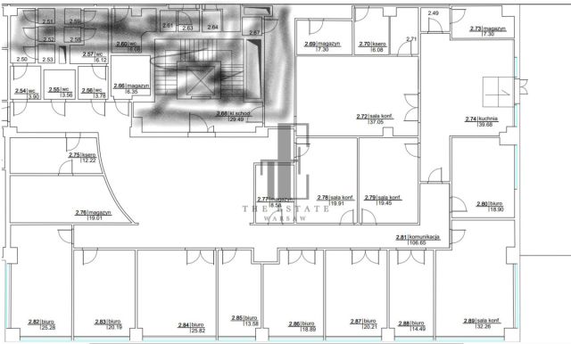
Biuro zlokalizowane na II piętrze składa się z:
- 8 pomieszczeń biurowych,
- 4 sal konferencyjnych
- 5 pomieszczeń magazynowych
- 2 ksero oraz 2 schowków
- przestronnej kuchni
- 3 WC
- komunikacji
Wysokość sufitu wynosi aż 3,2 m, daje to poczucie dużej przestrzeni wpływającej pozytywnie na pracowników biurowych.
Biuro zostało wyremontowane, ale są możliwości jego dodatkowej adaptacji na potrzeby klienta. Budynek jest klimatyzowany oraz przystosowany dla osób niepełnosprawnych. Na poszczególne biurowe piętra prowadzi nas reprezentatywna przestrzeń recepcyjna.

Więcej informacji udzielę telefonicznie!
Zapraszam do kontaktu:
[numer]
Jan Mikołajczuk
The Estate Warsaw

  • ul. Puławska 435A, Warszawa Ursynów  
  • Do wynajęcia lokal o powierzchni 495,64 m²  
  • Ogłoszenie biura nieruchomości  
  • Oferta dodana ponad tydzień temu

Podobne nieruchomości komercyjne na wynajem

3
Nieruchomość komercyjna Warszawa Włochy

25 000

120

Wynajmę warsztat na terenach przemysłowych. Kazdy rodzaj napraw, brak uciążliwego sąsiedztwa. Hala z kontenerów, więc dodatkowo są magazyny. Nadaje się do napraw samochodów ciężarowych lub sprzętu ciężkiego. Biuro kontenerowe ok. 200 m2. Dodatkowe kontenery do zaadoptowania na magazyny lub hotel dla...

Zobacz ogłoszenie
7
Lokal Warszawa Ochota

25 000

198

Szukasz przestrzeni, która ma "to coś"? Do wynajęcia lokal o powierzchni 200 m² na warszawskiej Starej Ochocie. To nie jest typowy "open space" w szklanym biurowcu. To miejsce z charakterem, historią i infrastrukturą, która idealnie sprawdzi się dla agencji kreatywnej, studia produkcyjnego, firmy I...

Zobacz ogłoszenie
7
Hala/magazyn Warszawa Ursynów

22 900

573

Do wynajęcia powierzchnia magazynowa 573m2 z biurem zlokalizowana Warszawa Ursynów STANDARD: konstrukcja murowana ocieplona posadzka niepylna brama mini rampa 3/3m wysokość 4-5 m pomieszczenia socjalne wentylacja ogrzewanie prąd doświetlenie światłem dziennym w ścianach bocznych ATUTY: doskonała ...

Zobacz ogłoszenie
1
Lokal Warszawa Targówek, ul. Chodecka

24 600

250

Wielopoziomowy budynek po gastronomii. 3 minuty piechotą pętla autobusowa Bródno-Podgrodzie. 10 minut piechotą stacja metra Kondratowicza. Wiele budynków mieszkalnych w okolicy. Lokal znajduje się przy samej głównej ulicy. Pod lokalem parking ogólnodostępny. Przeznaczenie: każde. W razie konkretnych...

Zobacz ogłoszenie
9
Lokal Warszawa Mokotów, ul. Augustówka

24 500

350

Do wynajęcia bezpośrednio od właściciela powierzchnia z przeznaczeniem na działalność handlową, usługową lub biurową od 100m2 do 350m2. Powierzchnia Open Space z możliwością dostosowania aranżacyjnego wg potrzeb Najemcy. Duże witryny z dostępem światła dziennego to dodatkowy atut tej oferty. Obecnie...

Zobacz ogłoszenie
3
Hala/magazyn Warszawa Ursus, ul. Posag 7 Panien

25 363

870

Do wynajęcia moduł magazynowy o powierzchni 870m2 usytuowany na Warszawskim Ursusie. Możliwość wynajęcia biur do 1500m2. STANARD: wysokość 10m2 posadzka bezpyłowa nośność 6t/m2 odporność ogniowa 4000MJ oświetlenie led szerokość 12m , długość 72 2 doki , w tym jeden z rampą dojazd do autostra...

Zobacz ogłoszenie