Ogłoszenie usunięte

Nieruchomość komercyjna do wynajęcia
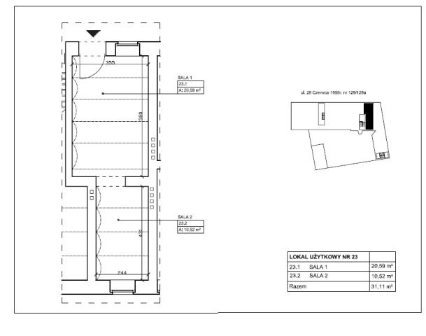
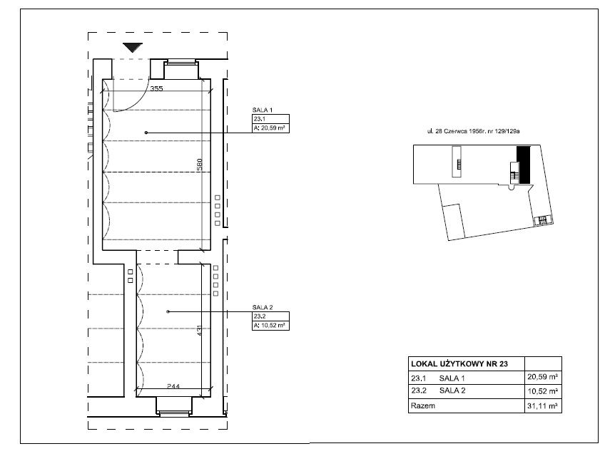
ul. 28 Czerwca 1956 r. 129 Poznań Wilda

Lokal Poznań Wilda, ul. 28 Czerwca 1956 r.. Zdjęcie 1

Nieruchomość komercyjna do wynajęcia Poznań Wilda ul. 28 Czerwca 1956 r. 129

-
-
31

Właściciel powierzył wynajem nieruchomości pośrednikowi. Możesz zadzwonić lub napisać do agenta za darmo.

Do wynajęcia parterowy lokal usługowo-handlowy położony w Poznaniu przy ul. 28 czerwca 1956 r. nr 129, 150m od Rynku Wildeckiego.

Lokal dostępny styczeń/luty 2026 r.

Lokal o pow. 31,11m2:
Sala obsługi: 20,59m2
Pomieszczenie socjalne (aneks kuchenny + WC: 10,52m2)

Informacje dodatkowe:
- wejście bezpośrednio z ulicy
- miejsce na reklamę na elewacji
- witryna
- lokal po remoncie w 2023 roku (na podłodze duże płytki,
- ściany pomalowane na biało, instalacja elektryczna miedziana, okna PCV)
- Gotowy do wynajęcia
- ogrzewanie klimatyzacją GREE - zainstalowana w październiku 2023
- wysokość lokalu 245-250cm
- kamienica po termomodernizacji, odnowiona elewacja

Przeznaczenie:
- usługowe
- handlowe
- biurowe

Media:
- woda,
- kanalizacja,
- prąd,
- ogrzewanie elektryczne
- możliwość doprowadzenia światłowodu

Czynsz:
- 2200 zł netto + VAT 23%
- opłaty do wspólnoty 280 zł (zaliczki na wodę, ścieki, śmieci)
- prąd według licznika

Lokalizacja:
Poznań ul. 28 czerwca 1956 r. Blisko Rynek Wildecki, sklepy usługowo-handlowe. Tereny zielone i rekreacyjne.
W pobliżu przystanki tramwajowe i autobusowe.

Zapraszam na prezentację!

Powyższy opis ma charakter informacyjny i nie stanowi oferty handlowej w rozumieniu art. 66 1 Kodeksu Cywilnego.

  • ul. 28 Czerwca 1956 r. 129, Poznań Wilda  
  • Do wynajęcia lokal o powierzchni 31,11 m²  
  • Opłaty 280 zł/miesiąc
  • Money Wallet 1 Streamline Icon: https://streamlinehq.com
    Kaucja 4400 zł
  • Ogłoszenie biura nieruchomości  

Aktualne nieruchomości komercyjne na wynajem

3
Nieruchomość komercyjna Poznań Podolany, ul. Strzeszyńska

2 300

25

Nowoczesny, stylowo wykonczony gabinet lekarski - do wynajecia bezposrednio od wtasciciela. Potozony w Poznaniu na Podolanach. Gabinet klimatyzowany, z recepcja, poczekalnia i toaleta. Duze witryny sa idealne do reklamowania gabinetu.

Zobacz ogłoszenie
6
Lokal Poznań Grunwald, ul. Grunwaldzka

2 640

80

Wynajmę lokal na różną działalność Cena 33zł za m2 na 24 mce 6 mcy wakacji czynszowych na zrobienie remontu Do wynajęcia lokal lokale , o powierzchni od 20 do 230 m2 ,lokale są w tej chwili podzielone na segmenty po 30 m2 Lokale znajdują się na parterze pasażu handlowo-usługowego o powierzchni całk...

Zobacz ogłoszenie
15
Biuro Poznań Nowe Miasto, ul. Warszawska

2 850

71

Poznań, ul. Warszawska  powierzchnia biurowa : 71,26 m2 - II piętro  najem : 40 zł / m2 plus 21 eksploatacja plus energia  2X kaucja zwrotna  Do wynajęcia lokale biurowe o zróżnicowanej powierzchni użytkowej, lokale znajdują się w pięcio-kondygnacyjnym biurowcu w świetnej lokalizacji w sąsiedzt...

Zobacz ogłoszenie
9
Biuro Poznań Ogrody, ul. Samuela Lindego

1 800

43

Polecam do wynajęcia lokale biurowe lub na gabinet o powierzchni 43m2 i 39m2 na parterze w biurowcu. Bez mebli widocznych na zdjęciach. Blisko komunikacja miejska - tramwaj, autobus, dogodne warunki parkowania, a za dodatkową opłatą możliwość parkingu za bramą z pilotem (200zł msc.). Obiekt przysto...

Zobacz ogłoszenie
11
Lokal Poznań Winogrady, ul. Ksawerego Zakrzewskiego

2 799

100

Wynajmę atrakcyjny lokal handlowo-biurowo-usługowy-wystawienniczy (Showroom) w przyziemiu domu jednorodzinnego o pow. ok. 100m2 przy Plazie-175m, Niku-250m, Makro-495m, Pestce-515m, Sądzie Apelacyjnym-450m i wielu innych punktach handlowych i usługowych. Zakrzewskiego 14 jest w samym centrum Winogra...

Zobacz ogłoszenie
6
Lokal Poznań, ul. Jana Henryka Dąbrowskiego

2 583

33

Wynajmę bezpośrednio lokal pod handel / usługi / biuro: Poznań, Dąbrowskiego 181 Powierzchnia: 30m2 biuro + 3m2 zaplecze (wc+mały aneks kuch.) Super lokal, o wszechstronnych możliwościach zastosowania: pod wyspecjalizowany handel lub usługi (np. serwis rowerów), czy też biuro (np. rachunkowe lub u...

Zobacz ogłoszenie