Nieruchomość komercyjna na sprzedaż bez pośredników
ul. Stefczyka Wejherowo

Lokal Wejherowo, ul. Stefczyka. Zdjęcie 1

Nieruchomość komercyjna na sprzedaż bez pośredników Wejherowo ul. Stefczyka

449 000
6 908 zł/m²
65
Wejherowo, Stefczyka - lokalizacja przybliżona
Bezpośrednio od właściciela

Jeśli nie potrzebujesz pośrednika, zaoszczędzisz około 13 500 zł. Potrzebujesz wsparcia? Skorzystaj z pomocy agenta.

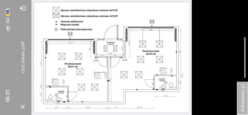
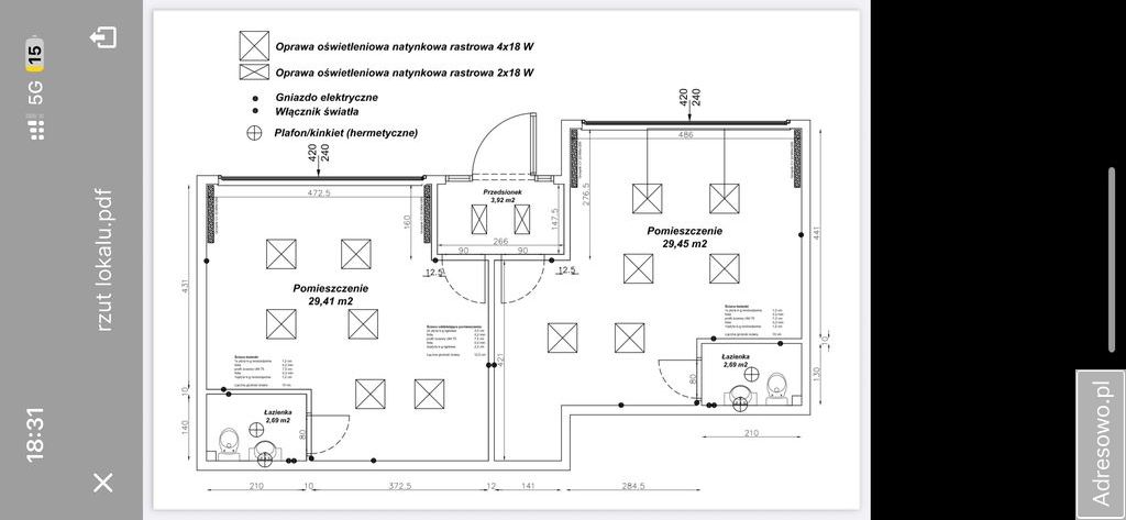
OFERTA INWESTYCYJNA - 2 NIEZALEŻNE LOKALE USŁUGOWE Z DŁUGOTERMINOWYMI NAJEMCAMI
WEJHEROWO, UL. STEFCZYKA

Na sprzedaż dwa niezależne lokale usługowe o powierzchni ok. 30 m² każdy + 4 m² przedsionka, położone w atrakcyjnej części Wejherowa przy ul. Stefczyka.

Atuty inwestycji:

• Dwa odrębne, niezależne lokale.
• Oba wyposażone w klimatyzację.
• W pełni wynajęte.
• Stabilni, sprawdzeni najemcy: w jednym działa salon urody, w drugim barber.
• Obowiązujące umowy najmu zawarte są do 2028 roku.
• Gwarancja pewnego i długoterminowego przychodu pasywnego.
• Możliwość zakupu w całości (2 lokale) lub osobno.

To idealna propozycja dla osób szukających bezpiecznej lokaty kapitału oraz stałego źródła dochodu.

Więcej informacji pod numerem telefonu.

  • ul. Stefczyka, Wejherowo, powiat wejherowski  
  • Na sprzedaż lokal o powierzchni 65 m²  
  • Oferta bezpośrednio od właściciela dodana ponad miesiąc temu
Ta nieruchomość może być Twoja od.. sprawdź
90000 zł (20%) Okres spłaty: 30 lat

Podobne nieruchomości komercyjne na sprzedaż

4
Nieruchomość komercyjna Rumia

500 000

1200

Do sprzedania myjnia samoobsługowa zlokalizowana w Rumi przy drodze 6 Szczecin - Gdynia. Myjnia wykonana w bardzo dobrej technologii, postawiona na wynajętym gruncie. 4 zadaszone stanowiska w tym jedno podwyższone na ciężarowe, Obiekt użytkowany 5 lat. Myjnia proszkowa, 5 programów mycia, Szczotka, ...

Zobacz ogłoszenie
10
Lokal Rumia Janowo, ul. Błoń Janowskich

280 260

31

Osiedle Janowo Park III – Twoje miejsce do życia. Osiedle Janowo Park III to nowoczesny, 4-kondygnacyjny budynek z 115 komfortowymi mieszkaniami o zróżnicowanych metrażach – idealnymi zarówno dla singli, par, jak i rodzin. Wszystkie kondygnacje obsługują cichobieżne windy, które gwarantują wygodę...

Zobacz ogłoszenie
14
Lokal Wejherowo, ul. Jana III Sobieskiego

350 000

38

Sprzedam lokal usługowo-mieszkalny 38 m2 na 1. piętrze z przynależną komórką lokatorską (pomieszczeniem gospodarczym - murowaną piwniczką) na parterze 4 m2 + garaż 16 m2 w bryle budynku z bramą na pilot - za dodatkowe 90 tys. Wejherowo, ul. Sobieskiego 352. Mieszkanie można szybko adaptować na 2-...

Zobacz ogłoszenie
7
Biuro Wejherowo Centrum, ul. Jana III Sobieskiego

zapytaj

23

Przestronny, świeżo odnowiony lokal o powierzchni 23 m² z nową stolarką okienną i ekologicznym systemem ogrzewania. Jasne, energooszczędne wnętrze idealne na biuro, salon usługowy, gabinet lub pracownię. Możliwość łatwej adaptacji układu i wykończenia pod potrzeby Twojej branży. Doskonała lokalizacj...

Zobacz ogłoszenie
8
Lokal Wejherowo

285 000

36

Szukałeś biura, lokalu usługowego? Ta nieruchomość świetnie się do tego nadaje. Lokal ma dwa pomieszczenia, 36 m² na parterze, dużą witrynę i wejście z chodnika. Jest zadbany, czysty, gotowy do użytku od zaraz. Doskonały wybór dla każdej działalności usługowej lub biura. W razie potrzeby pomieszk...

Zobacz ogłoszenie
12
Lokal Rumia Centrum

290 000

110

Prezentujemy przestronny lokal w centrum Rumii o powierzchni 110 m², oferujący niezwykłą elastyczność i potencjał adaptacyjny dzięki dwóm niezależnym wejściom . Dogodny dojazd zapewnia dostępność ogólnodostępnych miejsc parkingowych bezpośrednio przed budynkiem. Na dzień dzisiejszy lokal stanowi jed...

Zobacz ogłoszenie